
|
不知道大家有沒有關注過全國各地的豪華別墅,最近我是見識了不少,要說不羨慕是不可能的,感覺都要把自己的眼珠瞪出來了。接下來給大家推薦6套農村四層別墅,每一套都是那么的豪華大氣,隨便挑一套建成就是村里的土豪啊! 第一套
正面效果圖
鳥瞰圖
背面效果圖 占地面積:12.4m*11.6m,143平方米左右; 建筑高度:16.15米(含屋頂); 設計功能: 一層戶型:門廳、客廳、餐廳、廚房、主臥(帶衛生間)、臥室、衛生間、儲藏間; 二層戶型:客廳上空、主臥(帶衛生間)、臥室、書房、衛生間(可以做公衛或主衛)、露臺; 三層戶型:臥室x4(其中2個帶衛生間)、書房、衛生間、陽臺x3; 四層戶型:家庭影院、健身房、衛生間、陽光房、露臺、換衣間(儲藏間);
一層平面圖
二層平面圖
三層平面圖
四層平面圖 第二套
正面效果圖
鳥瞰圖
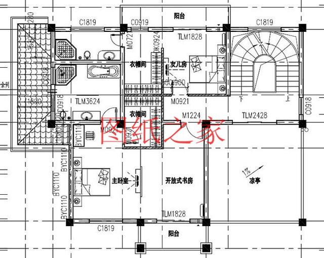
背面效果圖 占地面積:13.84m*12.24m,170平方米左右; 建筑高度:14.763米(含屋頂); 設計功能: 一層戶型:玄關、客廳、餐廳、廚房、老人房、衛生間、車庫; 二層戶型:客房X2、陽臺X2、衛生間、兒童房(帶衛生間)、娛樂廳; 三層戶型:主臥(帶衛生間、衣帽間)、女兒房(帶衛生間、衣帽間)、開放式書房、涼亭; 四層戶型:活動大廳、雜物間、露臺X2;
一層平面圖
二層平面圖
三層平面圖
四層平面圖 第三套
正面效果圖
鳥瞰圖
背面效果圖 占地面積:12.6m*13.0m,160平方米左右; 建筑高度:14.6米(含屋頂); 設計功能: 一層戶型:庫房(可根據自己需求自行隔斷,自定義功能); 二層戶型:玄關、客廳、廚房、餐廳、棋牌室、主臥(帶衛生間)、衛生間; 三層戶型:客廳上空、客廳、休閑區、主臥(帶衛生間)、臥室x2、衛生間、陽臺; 四層戶型:客廳、主臥(帶衛生間)、臥室x2、衛生間、大露臺;
一層平面圖
二層平面圖
三層平面圖
四層平面圖 第四套
正面效果圖
鳥瞰圖
背面效果圖 占地面積:10.2*10.4m,100平方米左右; 建筑高度:16.4米(含屋頂); 設計功能: 一層戶型:客廳、餐廳、廚房、臥室、衛生間; 二層戶型:臥室(帶衣帽間)、臥室×3、書房、衛生間、陽臺; 三層戶型:同二層一樣; 四層戶型:臥室×2、書房、棋牌室、公衛、露臺;
一層平面圖
二、三層平面圖
四層平面圖 第五套
別墅效果圖 占地面積:30.00m*15.10m,300平方米左右; 建筑高度:17.10米(含屋頂); 設計功能: 一層戶型:大廳、會客廳、餐廳、廚房、主臥(帶書房、衣帽間、衛生間)、臥室x2、衛生間; 二層戶型:客廳、臥室x4(帶衣帽間和衛生間)、露臺; 三層戶型:客廳、臥室x4(帶衣帽間和衛生間)、陽臺x2; 四層戶型:臥室(帶衣帽間和衛生間)、衛生間、娛樂室、大露臺;
一層平面圖
二層平面圖
三層平面圖
四層平面圖 第六套
別墅效果圖 占地面積:帶車庫18.00m*15.00m,270平方米左右;不帶車庫14.50m*15.00m,220平方米左右; 建筑高度:15.57米(含屋頂); 設計功能: 一層戶型:玄關、客廳、餐廳、廚房、主臥(帶衛生間)、臥室、衛生間、車庫(可以不建); 二層戶型:客廳上空、小客廳、主臥(帶衛生間)、臥室、書房、衛生間、露臺; 三層戶型:臥室x4(其中1個帶衛生間、1個帶書房、1個帶衣帽間)、書房、衛生間; 四層戶型:臥室(帶衛生間)、娛樂室(帶衛生間)、大露臺、小露臺;
一層平面圖
二層平面圖
三層平面圖
四層平面圖 這幾套別墅的設計圖,你最喜歡哪一套? 我們提供數千套自建別墅設計圖,讓您建房無憂。需要查看詳情或更多圖紙請關注【圖紙之家】或點擊下面圖片。 圖紙之家-專注農村別墅/自建房設計18年,集合國內200余位經驗豐富的設計師,被評為口碑最好的農村建筑設計公司! |

最新農村三層樓房設計圖紙,客廳中空,采用暖黃色為主色
占地:160平方米
農村120平米三間三層樓房設計圖紙,農村理想住房設計圖
占地:120平方米
農村現代新中式三合院設計圖及效果圖片,外觀好看極了
占地:多戶型可選
農村自建四層百萬豪宅別墅設計圖,客廳中空
占地:170平方米
160平方米歐式一層半別墅施工設計圖紙13X13米
占地:160平方米
超漂亮的二層別墅設計圖,外觀對稱設計,建好很大氣
占地:255平方米
新農村二層歐式別墅設計圖,外觀漂亮,主體18萬起建
占地:115.2平方米
農村25萬元二層小樓圖,經典大氣建成20年不過時
占地:150平方米
新農村私人別墅建筑設計施工圖,全套別墅設計圖紙
占地:多種戶型
農村四間二層半雙拼樓設計圖,住三帶人都沒有問題!
占地:270平方米
兩戶190平方米新農村雙拼別墅全套設計方案及效果圖
占地:191平方米
120平方米農村漂亮實用的兩層別墅設計圖紙,含外觀圖片
占地:120平方米
140平方米三層豪華新中式別墅設計圖紙帶外觀效果圖
占地:141.35平方米
帶閣樓的二層半別墅設計圖和效果圖,外飾簡單但不失奢華
占地:210平方米
新款農村三拼三戶別墅設計圖及效果圖三層戶型,外觀靚麗新穎
占地:360平方米
農村二層仿古尖屋頂別墅設計圖,外觀古樸耐看
占地:87平方米左右
14×12米二層自建房蓋別墅設計圖,簡單對稱也很漂亮
占地:157.868平方米
新中式三層樓房設計圖,外觀精致布局也是相當的樸實
占地:140平方米
闊氣高端的三層別墅設計圖,亮得恰到好處,永遠也住不膩
占地:160平方米
私家二層農村自建房設計圖及效果圖,造價20萬左右
占地:125平方米
推薦:10套新農村自建房設計圖,2026年最新設計
閱讀次數:4825737次
100套鄉村別墅圖片大全,2026年最新設計
閱讀次數:2492203次
6款農村蓋一層平房的設計圖,10萬元就能建起來
閱讀次數:1852637次
這11個一層農村自建房別墅火爆了朋友圈!我最喜歡戶型十!你呢
閱讀次數:750268次
農村6萬元建一層小別墅圖,你敢相信嗎
閱讀次數:567686次
農村5萬塊就能自建房,6套普通房子設計圖分享,你沒看錯!
閱讀次數:419410次
8套農村漂亮三間平房圖片,非常適合在農村修建!
閱讀次數:411197次
農村自建房化糞池怎么做?附方案及施工過程
閱讀次數:391783次
農村一層三間平房設計圖,告別土氣養老房,讓人忍不住點贊
閱讀次數:350581次
新農村二層樓房圖片造價12萬,挑一套回家建房吧!
閱讀次數:349126次
