
|
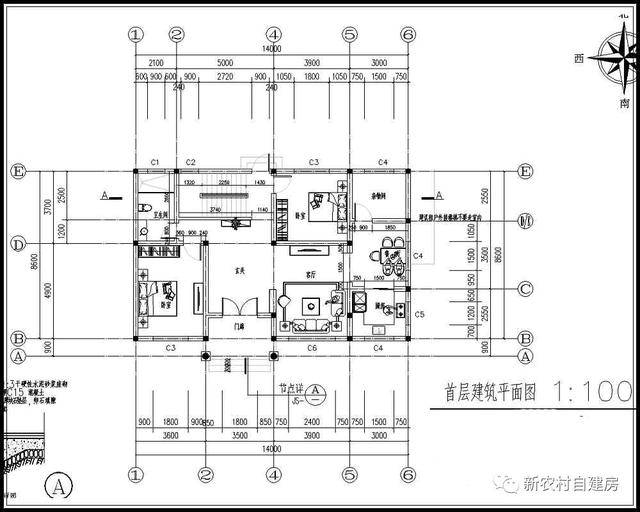
這款私人別墅圖紙全套,適合浙江等南方農村,外觀簡單大氣,層次分明,周邊是山水,稻田一望無際,藍天白云,交相輝映,好一幅山村田園風光。
這款戶型開間14米,進深8.6米,占地面積121.9平方米,建筑面積224.2平方米,總層高為8.4米,采用的是磚混結構,主體造價20萬以內。
平面功能,一層設計有兩間臥室,客廳、廚房、餐廳、雜屋間、衛生間和進門玄關,布局合理又實用,空間利用率高。
二層設計有三間臥室一個衛生間,一個書房兼衣帽間,右側有出租房和露臺。 圖紙之家-專注農村別墅/自建房設計18年,集合國內200余位經驗豐富的設計師,被評為口碑最好的農村建筑設計公司! |

帶車庫三間復式三層樓房設計圖,外觀精致、大方
占地:150平方米
農村二層中式小三合院別墅全套設計圖,民族特色風格
占地:122平方米
農村四間二層別墅設計方案圖,外觀精致、時尚
占地:152平方米
外觀高檔大氣的三層別墅房屋設計圖,高端別墅設計展示
占地:147平方米
新中式三層別墅設計圖紙(含效果圖),110平農村自建房施工圖推
占地:110平方米
造價30萬多的三層簡歐新農村別墅設計施工圖紙及效果圖
占地:133平方米左右
簡歐風格三層別墅設計圖,外觀看起來很高端、上檔次
占地:139平方米
回老家蓋房就選這款新中式一層設計,16乘8米大小正合適
占地:130.1平方米
氣派的帶旋轉樓梯三層別墅房屋設計圖,戶型很好
占地:150平方米
簡簡單單一層農村自建別墅方案,布局緊湊又不擁擠
占地:133.55平方米
150平米二層鄉村小別墅圖,戶型合理,外觀清新淡雅
占地:150平方米
110平左右三間兩層農村別墅房屋設計圖,含外觀效果圖
占地:107平方米
小戶型三層別墅房屋設計圖紙,占地80多平米,麻雀雖小五臟俱全
占地:80平方米
小型中式一層三合院別墅設計圖,小宅基地照樣建合院
占地:119.73平方米
簡易農村別墅房子設計圖,好看實惠,施工也簡單
占地:200平方米
農村四間三層豪華別墅設計方案圖,造型輕奢雅致
占地:200平方米
二層農村自建小別墅設計圖,歐式風格,占地160平方米
占地:160平方米
240平農村二層自建別墅設計圖紙,帶你體驗家的溫馨
占地:240平方米
三層帶車庫樓中樓建房別墅圖紙,占地130平米左右,戶型室內布局
占地:130平方米
歐式豪華三層別墅設計圖,占地面積170平米,高端大氣帶露臺
占地:170平方米
推薦:10套新農村自建房設計圖,2026年最新設計
閱讀次數:4825737次
100套鄉村別墅圖片大全,2026年最新設計
閱讀次數:2492203次
6款農村蓋一層平房的設計圖,10萬元就能建起來
閱讀次數:1852637次
這11個一層農村自建房別墅火爆了朋友圈!我最喜歡戶型十!你呢
閱讀次數:750268次
農村6萬元建一層小別墅圖,你敢相信嗎
閱讀次數:567686次
農村5萬塊就能自建房,6套普通房子設計圖分享,你沒看錯!
閱讀次數:419410次
8套農村漂亮三間平房圖片,非常適合在農村修建!
閱讀次數:411197次
農村自建房化糞池怎么做?附方案及施工過程
閱讀次數:391783次
農村一層三間平房設計圖,告別土氣養老房,讓人忍不住點贊
閱讀次數:350581次
新農村二層樓房圖片造價12萬,挑一套回家建房吧!
閱讀次數:349126次
