
|
現在農村建房一般很多人都比較注重外觀,也有更多的人也更注重實用性,但是今天小編給大家介紹一款外觀大方,也非常實用的免費新農村住宅設計圖給大家參考,希望能夠幫到建房的朋友【文末有別墅詳情介紹】
這款戶型外觀,細膩潤滑的麥牙色搭配清爽純凈的亮藍色,傳遞出明媚盎然的格調,呈現出富足閑適的生活狀態,將家的溫暖與堅實完美融合。
平面圖介紹
一層平面圖:設有玄關,客廳,2臥室,1餐廳,1廚房,1衛生間
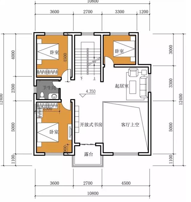
二層平面圖:設有1書房,3臥室,1衛生間,1衛生間,1起居室
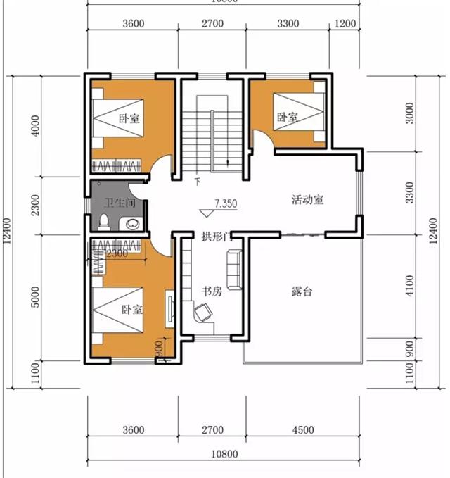
三層平面圖:設有3臥室,1書房,1衛生間,1活動室(可設麻將房) 占地尺寸:10.8m*11.9m 占地面積:126㎡ 建筑面積:336㎡ 總 高 度:12.6m 建筑情況:8室2廳3衛1玄關2書房1廚房1起居室1活動室2大露臺 看完這套小別墅,是否符合你家的需求呢?如果合適可以私信小編哦! 圖紙之家-專注農村別墅/自建房設計18年,集合國內200余位經驗豐富的設計師,被評為口碑最好的農村建筑設計公司! |

面寬不到10米的小戶型自建房戶型圖,全套設計圖紙可施工
占地:123.2平方米左右
高端歐式四層別墅房屋施工圖紙及效果圖,圓弧大窗
占地:170平方米
面寬13米二層鄉村自建別墅戶型圖,帶堂屋和露臺
占地:135.47平方米
經濟實用二層樓房設計圖紙,功能布局多,12×11米
占地:130平方米
一層帶商鋪的四層樓房別墅設計圖紙和效果圖,房屋戶型圖
占地:133平方米
10×12米三層別墅戶型,挑空大客廳設計,圈粉無數的爆款方案
占地:120平方米
七字形農村自建房二層設計圖,“L”型別墅設計,簡約時尚!
占地:209平米左右
鄉村三層別墅CAD建筑設計圖,110平方米戶型,帶效果圖和全套施工
占地:110平方米
二層農村兄弟雙拼別墅設計圖,一墻之隔互不干擾,鄰居看了都喜
占地:164.24平方米
150平左右新農村自建房設計圖,含外觀效果圖
占地:150平方米
110平預算20萬內三層別墅設計圖,含效果圖
占地:110平方米
農村一層雙拼別墅設計方案,豐富的室內空間配置,滿足您的生活
占地:358.46平方米
農村三間三層半別墅設計圖,舒適寬敞時尚經濟,居住生活方便舒
占地:168.29平方米
農村自建房三間設計圖,花錢少效果好12米乘9米,經濟適用性價比
占地:108.9平方米
農村三層半別墅設計圖及外觀效果圖,三層半樓房設計方案推薦
占地:100平方米
面寬11米現代風二層小別墅,平屋頂設計,緊跟潮流時尚前衛
占地:94.43平方米
雙拼小別墅設計圖紙(含效果圖),二層別墅設計方案精選
占地:130平方米
2026二層農村新款別墅戶型圖,占地不到110平米
占地:110平方米
簡約實用農村自建房戶型圖,美觀經濟又通透,南北通透住得爽!
占地:160.6平方米
經典三層歐式造型別墅圖紙,功能房豐富,挑空客廳
占地:180平方米
推薦:10套新農村自建房設計圖,2026年最新設計
閱讀次數:4825737次
100套鄉村別墅圖片大全,2026年最新設計
閱讀次數:2492203次
6款農村蓋一層平房的設計圖,10萬元就能建起來
閱讀次數:1852637次
這11個一層農村自建房別墅火爆了朋友圈!我最喜歡戶型十!你呢
閱讀次數:750268次
農村6萬元建一層小別墅圖,你敢相信嗎
閱讀次數:567686次
農村5萬塊就能自建房,6套普通房子設計圖分享,你沒看錯!
閱讀次數:419410次
8套農村漂亮三間平房圖片,非常適合在農村修建!
閱讀次數:411197次
農村自建房化糞池怎么做?附方案及施工過程
閱讀次數:391783次
農村一層三間平房設計圖,告別土氣養老房,讓人忍不住點贊
閱讀次數:350581次
新農村二層樓房圖片造價12萬,挑一套回家建房吧!
閱讀次數:349126次
