
|
現在是網絡時代,我們接收的很多信息都是通過網絡傳播,生活中很多需要的物品我們也會從網上購買,建房的時候,大部分建房者會在網上參照別人設計的戶型,當然也有現成的施工設計圖可以直接購買,今天小編給大家分享一款11×12米帶挑空客廳三層鄉村別墅設計圖。
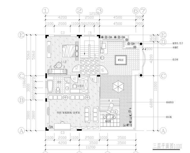
這款三層鄉村別墅設計圖時尚又充滿設計感,結構設計上富有層次感,看似有些復雜,施工上難度卻不高,室內布局滿足現代人對住房的要求,布局空間合理,一樓客廳中空設計,每層樓都設有帶衛生間的臥室,使用起來十分方便,屋頂有露臺和曬衣區,曬衣區可以乘涼。 這款鄉村別墅設計圖開間11.2米,進深11.86米,采用磚混結構,主體造價大概38萬。一層設有3廳1臥2衛1廚,二層設有2臥2衛1書房,三層設有1臥1廳1露臺1衛1曬衣區。 建筑平面圖展示
一層:前廳、挑空大廳、廚房、餐廳、臥室(帶衛生間)、衛生間、廚房、
二層:臥室(帶衛生間)、臥室、書房、衛生間
三層:露臺、曬衣區、臥室(帶衣帽間、衛生間)、書房/會客室 圖紙之家-專注農村別墅/自建房設計18年,集合國內200余位經驗豐富的設計師,被評為口碑最好的農村建筑設計公司! |

帶車庫二層農村豪華別墅設計圖,主體25萬左右
占地:170平方米左右
經濟型實用歐式一層小樓房別墅平房設計圖,11X10米
占地:103平方米
16米乘12米農村二層別墅設計圖,布局舒適寬敞、客廳挑空
占地:188.18平方米
奢華歐式二層樓房設計圖,入戶設有玄關,一層大窗設計
占地:190平方米
面寬10米左右的三層農村別墅設計案例,低調又奢華
占地:120平方米
農村三層樓房設計圖紙及效果圖,經典自建圖紙
占地:201平方米
仿古中式四合院別墅設計戶型圖,外觀圖古典風格
占地:524平方米
農村兄弟雙拼平房別墅設計圖,獨門獨戶,一層也能建雙拼
占地:274.18平方米
18×15米新中式高檔農村三層別墅設計圖,低調奢華又實用
占地:195.91平方米
中式復古四層別墅房屋設計圖紙,含外觀效果圖
占地:90平方米
新款的農村自建房子中式二層四合院別墅設計圖,占地300平左右
占地:304平方米
鄉村仿古一層別墅圖片及設計圖,經典實用,占地170平
占地:170平方米
新農村自建二層小樓圖,時尚大方,外型精美,室內布局也很贊
占地:137平方米
簡單農村二層平屋頂房屋設計圖,外觀簡潔、大方
占地:200平方米
二層自建房屋設計圖,帶小院,帶地下室,外觀現代、時尚,內部
占地:200平米
豪華大氣三層農村房屋設計圖,對稱的主體設計大氣恢宏
占地:240平方米
120平方房子設計圖及外觀圖片,12x10經典設計
占地:120平方米
農村四間兩層樓房設計圖,外觀時尚,戶型實用
占地:180平方米
造價30萬左右的三層樓房設計圖,占地120平米左右
占地:120平方米
新中式二層農村別墅設計圖紙及外觀圖,面寬15米左右
占地:148.86平方米
推薦:10套新農村自建房設計圖,2026年最新設計
閱讀次數:4825737次
100套鄉村別墅圖片大全,2026年最新設計
閱讀次數:2492203次
6款農村蓋一層平房的設計圖,10萬元就能建起來
閱讀次數:1852637次
這11個一層農村自建房別墅火爆了朋友圈!我最喜歡戶型十!你呢
閱讀次數:750268次
農村6萬元建一層小別墅圖,你敢相信嗎
閱讀次數:567686次
農村5萬塊就能自建房,6套普通房子設計圖分享,你沒看錯!
閱讀次數:419410次
8套農村漂亮三間平房圖片,非常適合在農村修建!
閱讀次數:411197次
農村自建房化糞池怎么做?附方案及施工過程
閱讀次數:391783次
農村一層三間平房設計圖,告別土氣養老房,讓人忍不住點贊
閱讀次數:350581次
新農村二層樓房圖片造價12萬,挑一套回家建房吧!
閱讀次數:349126次
