
|
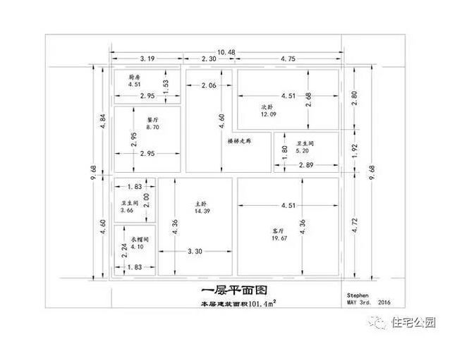
這座房子2016年5月初開工,10月初內裝完成,歷時近半年。房子是承包出去建造的,包工包料1100元每平方米,鋼材一共用了8噸,水泥用的是商品混凝土,毛坯房共花費20萬元,裝修約25萬元。 平面布局圖: 房子坐北朝南,客廳和主臥在陽面,主臥還設計了獨立的衛生間和衣帽間;北側是廚房、餐廳和次臥。二層閣樓因為高度局限,利用空間有限,前面做兩個臥室,后面一側放個木榻做起居會客室,一側做櫥柜、鞋柜做儲物室,放置衣物被褥等雜物。
建造過程實拍: 一、基礎處理: ▼老房子被拆完后的現場
▼將宅基地清理干凈
▼根據設計好的圖紙,在宅基地上進行測量放線。
▼地基整平壓實
▼碎石加三合土墊層
▼對墊層進行第二次找平,鏟除多余的碎石和三合土,以確保綁扎條形基礎鋼筋時墊層平整。
▼擴大條形基礎完成
二、主體施工: ▼一層主體結構施工,做墻體砌壘。
▼一層主體結構已完成,安裝樓面模板支撐。
▼綁扎圈梁樓板鋼筋
▼樓板混凝土現澆。
▼閣樓主體結構施工 這里的紅磚不是普通的紅磚,而是一種多孔磚,多孔磚的使用有助于減少和杜絕燒結粘土磚的生產使用,對于改善環境,保護土地資源和推進墻體材料革新與建筑節能,以及"禁實"工作的深入開展具有十分重要的社會和經濟意義。
▼進展很快,主體結構已經建起來了!
▼屋面樓板以及屋面梁施工
▼屋面現澆樓板
▼門窗安裝
▼屋檐局部
▼外墻抹灰。
▼屋頂施工,鋪設具有當地特色的青瓦。
▼化糞池施工
三、室外美化施工:
▼用真石漆一體板對外墻進行裝飾美化
▼房子外裝完成
四、室內裝修 ▼室內管道安裝
▼斜吊頂施工現場。 這種吊頂方法田園、舒適,還可以起到一定的隔熱作用。
▼給內墻黏貼瓷磚。
▼木地板木龍骨安裝
▼樸質木地板
▼打制壁櫥
▼安裝洗漱池
▼安裝馬桶
▼淋浴室裝修
▼室內一撇
閣樓美觀有韻味,木質的欄桿,具有藝術裝飾的吊燈,將小屋裝點的舒適、溫馨。
五、庭院美化 ▼綁扎鋼筋,現澆混凝土
▼將庭院的混凝土振動、整平
六、房屋完工,典雅別墅
“大屋檐多裝雁齒,小航船亦畫龍頭。”從這個角度看屋檐,是不是充滿了詩意?
坡屋頂、小房子,生活寧靜、田園而美麗。
曹先生這座房子怎么樣?在你的家鄉需要多少錢呢? 圖紙之家-專注農村別墅/自建房設計18年,集合國內200余位經驗豐富的設計師,被評為口碑最好的農村建筑設計公司! |

130平方米別墅設計圖紙(含外觀效果圖,)三層別墅設計方案
占地:135平方米
實用型二層別墅設計圖,簡單大方最耐看,16.5米乘11米
占地:150.94平方米
二層樓房圖片及施工圖紙,占地160平米左右,帶車庫
占地:160平方米
新農村三層房屋cad建筑設計圖紙,磚混結構
占地:138平方米
面寬20米農村自建房設計圖一層設計圖,五開間養老戶型
占地:194平方米
小平米四層自建房屋設計圖紙,戶型簡單實用,占地80平方米
占地:80平方米
預算20萬左右三層別墅設計圖紙,新農村自建房推薦
占地:118平方米
170平方米農村二層小別墅設計圖及效果圖
占地:170平方米
120平農村三層房屋設計圖,含外觀圖片
占地:120平方米
適合農村建造的二層房屋設計圖紙及效果圖,帶悶頂層,占地15
占地:150平方米
經典三層別墅設計圖,時尚典雅美觀大氣,新農村自建的理想之選
占地:119.45平方米
100平內的三層豪華歐式別墅房屋設計圖紙 ,簡歐風格
占地:94平方米左右
230平米歐式帶地下室三層自建別墅設計施工圖紙及效果圖
占地:230平米
一層帶閣樓的自建別墅設計圖,省錢又實用
占地:166平方米
一層半復式帶閣樓別墅設計圖,含外觀圖片
占地:150平方米
開間8米的小戶型二層別墅設計圖,2開間占地不到60平
占地:56平方米左右
農村二層樓房設計圖帶外觀圖片,造價20多萬,13.3x11
占地:146平方米
130多平方米新農村三層別墅建筑設計圖及效果圖
占地:133平方米左右
新中式復式三層別墅設計圖紙,最美的新中式別墅
占地:130平方米
80平方米農村四層房屋設計圖紙及效果圖
占地:80平方米
推薦:10套新農村自建房設計圖,2026年最新設計
閱讀次數:4825737次
100套鄉村別墅圖片大全,2026年最新設計
閱讀次數:2492203次
6款農村蓋一層平房的設計圖,10萬元就能建起來
閱讀次數:1852637次
這11個一層農村自建房別墅火爆了朋友圈!我最喜歡戶型十!你呢
閱讀次數:750268次
農村6萬元建一層小別墅圖,你敢相信嗎
閱讀次數:567686次
農村5萬塊就能自建房,6套普通房子設計圖分享,你沒看錯!
閱讀次數:419410次
8套農村漂亮三間平房圖片,非常適合在農村修建!
閱讀次數:411197次
農村自建房化糞池怎么做?附方案及施工過程
閱讀次數:391783次
農村一層三間平房設計圖,告別土氣養老房,讓人忍不住點贊
閱讀次數:350581次
新農村二層樓房圖片造價12萬,挑一套回家建房吧!
閱讀次數:349126次
