
|
在農村建房,最重要的是要實用,但是外觀也同樣重要,在我村里,村長房子是最漂亮的,但是我覺得這套別墅可以把村長都比下去,不僅外觀大方時尚,內部布局也是非常好的,很適合農村建房的需要,如果你現在打算建房可以收藏起來哦!小編今天就給大家分享一下我們村長的農村小別墅設計圖,看看哪套更好看。
村長家的小別墅,看看怎么樣,確實還是不錯的,但是就是缺了點什么。
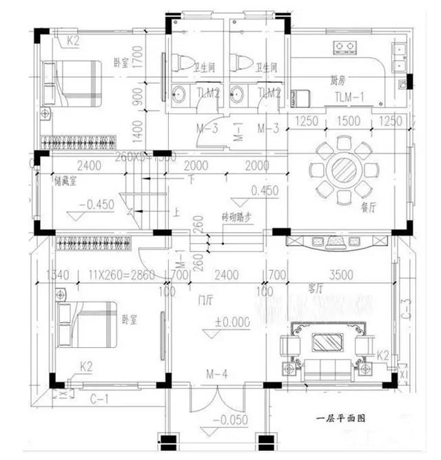
該戶型開間12.2m×進深14m,造價不高,建筑總面積410㎡做成磚混別墅的話,加門窗水電32萬也夠了。
一層平面圖:設有門廳,1客廳,2臥室,1儲藏室,2衛生間,1廚房,1餐廳
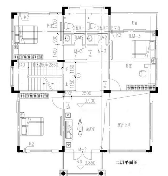
二層平面圖:設有3臥室,1起居室,2衛生間,2陽臺。
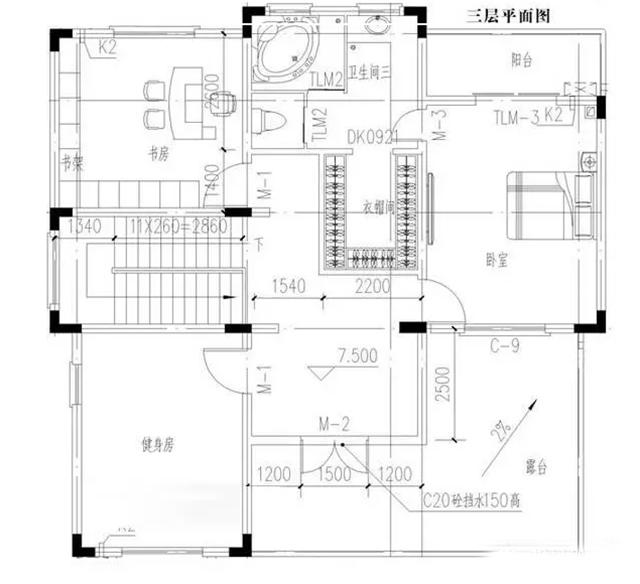
三層平面圖:設有1衣帽間,1健身房(可改成娛樂室),1書房,1陽臺。 圖紙之家-專注農村別墅/自建房設計18年,集合國內200余位經驗豐富的設計師,被評為口碑最好的農村建筑設計公司! |

125平兩層別墅房屋設計圖,帶普通和復式兩個戶型
占地:125平方米
農村三層樓房設計圖及效果圖,復式磚混結構
占地:148平方米
高端大氣三層別墅設計圖,建好就是村里最靚的
占地:120平方米
歐式三層小洋樓設計圖,外觀氣派,典雅、高貴
占地:145平方米
中式徽派二層農村別墅設計圖,白墻黛瓦馬頭墻,永不過時
占地:171平方米
大氣的三層鄉村別墅設計方案圖,小面積建出豪宅感
占地:104.9平方米
農村二層住宅樓房設計圖紙,全套方案(施工圖+效果圖)
占地:113平方米
2026年新款一層住宅別墅設計圖紙,中式風格漂亮極了
占地:207平方米
帶閣樓二層別墅設計圖,帶外觀效果圖片
占地:160平方米
120平農村三層房屋設計圖,含外觀圖片
占地:120平方米
造型新穎漂亮的農村二層現代風別墅設計圖,老少皆宜的外觀
占地:144.54平方米
農村四層樓房設計圖,復式結構、客廳中空,外觀效果圖+全套圖
占地:130平方米
新中式三層別墅設計圖紙(含效果圖),110平農村自建房施工圖推
占地:110平方米
新農村四層房屋設計圖紙,高端大氣,占地150平方米
占地:150平方米
四層(三層半)復式別墅設計圖片大全,歐式風格
占地:174平方米
二間二層小型別墅設計圖,美觀、經濟、實用!
占地:96平方米
面寬14.5米三層獨棟別墅設計圖,經典設計,大氣之作
占地:123.85平方米
農村小別墅一層設計圖紙,外觀漂亮極了,130和160兩個戶型
占地:多種戶型可選
新古典中式風格別墅設計圖,全套施工圖+效果圖
占地:188平方米
110平左右二層小洋樓設計圖,含效果圖片
占地:108平方米
推薦:10套新農村自建房設計圖,2026年最新設計
閱讀次數:4825737次
100套鄉村別墅圖片大全,2026年最新設計
閱讀次數:2492203次
6款農村蓋一層平房的設計圖,10萬元就能建起來
閱讀次數:1852637次
這11個一層農村自建房別墅火爆了朋友圈!我最喜歡戶型十!你呢
閱讀次數:750268次
農村6萬元建一層小別墅圖,你敢相信嗎
閱讀次數:567686次
農村5萬塊就能自建房,6套普通房子設計圖分享,你沒看錯!
閱讀次數:419410次
8套農村漂亮三間平房圖片,非常適合在農村修建!
閱讀次數:411197次
農村自建房化糞池怎么做?附方案及施工過程
閱讀次數:391783次
農村一層三間平房設計圖,告別土氣養老房,讓人忍不住點贊
閱讀次數:350581次
新農村二層樓房圖片造價12萬,挑一套回家建房吧!
閱讀次數:349126次
