
|
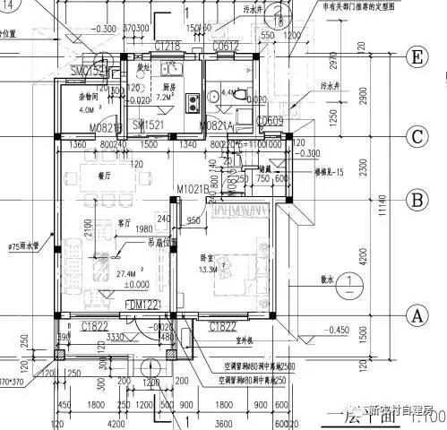
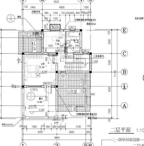
想回農村套小別墅養老,不需要太大,80平方就能建的很實用,又非常的經濟,20萬就能建出來,而且建出來的效果很是清新脫俗,比想城里的商品房實惠太多了,看的小編也想來建一打。
開間:8.64米; 進深:11.14米; 占地面積:75.1平方米; 建筑面積:119.7平方米; 建筑層數:二層獨院式住宅; 結構形式:磚混結構;
面積雖小,但是功能齊全,一層設計有客廳、臥室、廚房、餐廳、衛生間、雜屋間、儲藏間;二層設計有臥室、書房、衛生間和露臺。
建好后的案例,是不是很清新脫俗,雖然很小但是溫馨實用,建來養老度假足夠了。 圖紙之家-專注農村別墅/自建房設計18年,集合國內200余位經驗豐富的設計師,被評為口碑最好的農村建筑設計公司! |

農村三層別墅設計圖紙,造價50萬左右,中式風格,沉穩內斂
占地:160平方米
時尚創意型二層小別墅設計圖,占地面積110平方米,外觀清新典雅
占地:110平方米
2026年新款一層住宅別墅設計圖紙,中式風格漂亮極了
占地:207平方米
帶獨立堂屋的農村自建房設計,二層別墅設計方案圖
占地:109平方米左右
四開間一層自建房設計圖,四臥二廳+棋牌室+書房
占地:181.29平方米
135平三層農村樓房設計圖及效果圖,造價20萬左右
占地:135平方米
農村四間二層別墅設計方案圖,外觀精致、時尚
占地:152平方米
150平米經典二層中式別墅設計圖 ,現代中式相結合
占地:154平方米左右
L字型自建房屋設計圖,一層別墅類型,外觀效果圖漂亮
占地:188.62平方米
實用型二層別墅設計方案,占地120平米簡單大方最耐看
占地:120平方米
20萬左右普通農村房子設計圖,二層簡約小別墅
占地:140平方米
160平方米二層平屋頂房屋設計圖紙及效果圖17x11米
占地:164平方米
16x14米三層雙拼別墅設計圖,外觀精致大氣內里實用,兄弟建房上
占地:217.28平方米
三間三層樓房設計圖紙,復試的設計,漂亮的一塌糊涂
占地:175平方米
背面不開窗二層別墅設計圖,對稱設計簡單好看,眾多建房者的選
占地:183.79平方米
農村15萬元二層小樓設計圖,15萬農村兩層小別墅圖片
占地:120平方米
80平方米農村四層房屋設計圖紙及效果圖
占地:80平方米
新農村四合院別墅圖片及戶型方案圖,全套圖紙可施工
占地:154平方米左右
160平方米二層自建別墅設計施工建筑圖紙及效果圖,15x11米
占地:163平方米
兄弟雙拼三層小戶型別墅設計圖紙,160平方米(單戶80平)
占地:163平方米
推薦:10套新農村自建房設計圖,2026年最新設計
閱讀次數:4825737次
100套鄉村別墅圖片大全,2026年最新設計
閱讀次數:2492203次
6款農村蓋一層平房的設計圖,10萬元就能建起來
閱讀次數:1852637次
這11個一層農村自建房別墅火爆了朋友圈!我最喜歡戶型十!你呢
閱讀次數:750268次
農村6萬元建一層小別墅圖,你敢相信嗎
閱讀次數:567686次
農村5萬塊就能自建房,6套普通房子設計圖分享,你沒看錯!
閱讀次數:419410次
8套農村漂亮三間平房圖片,非常適合在農村修建!
閱讀次數:411197次
農村自建房化糞池怎么做?附方案及施工過程
閱讀次數:391783次
農村一層三間平房設計圖,告別土氣養老房,讓人忍不住點贊
閱讀次數:350581次
新農村二層樓房圖片造價12萬,挑一套回家建房吧!
閱讀次數:349126次
