
|
農村宅基地有大有小,常見的大多一百平上下,小的幾十平的也有,這些規格的面積建房子找圖紙是非常容易的。比較難的就是大房子,戶型少,實用好看的更是寥寥無幾。若想找到適合自己的大戶型,實在是難上再加。為了更好的滿足有建房需求的朋友,特別推薦5套大開間的農村別墅戶型,一起來看看吧! 戶型一 農村常用的磚混結構戶型,外觀簡約大氣,多用弧形采光窗,保證室內采光充足,房子更顯通透美感。
平面布局圖: 入戶門廳設有茶室,方便招待客人,設計很周到;另有2臥室與生活區分離,居住環境相對獨立安靜。
二層設多個閣樓間,可以根據個人需求開發空間,非常靈活;設有書房,方便在家學習辦公。
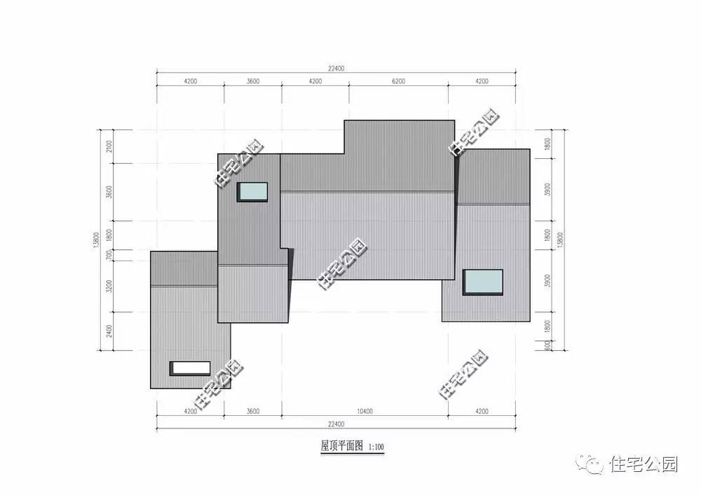
戶型二 非常經典的農村別墅戶型設計圖,較少見采用的全二層結構,房子更顯恢宏大氣。
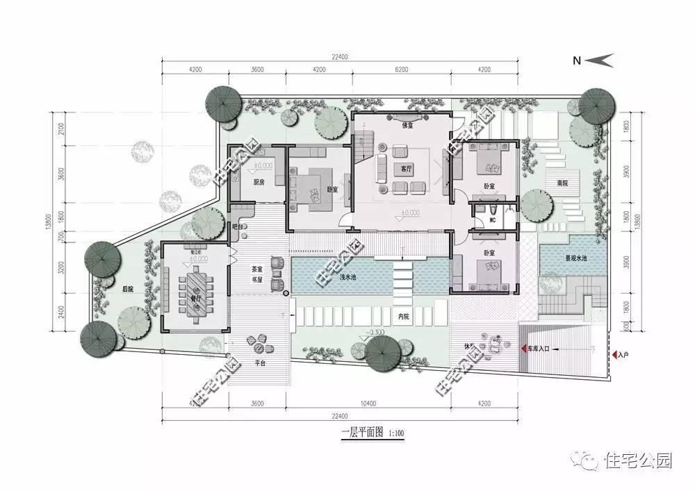
平面布局圖: 用功能性區域和庭院隔離出相對安靜的居住環境,學習辦公環境良好,辦公室、書房一應俱全;設有娛樂室、KTV室,豐富日常的居家生活。
二層多臥室,更有配置豪華的套房,3個臥室自帶廚房餐廳,獨立性較強,居家生活更加舒適便捷;另有會議室和茶水間,滿足家庭小型辦公的需求。
戶型三 極具現代感,構造流暢整潔,外觀簡樸自然,建造工藝相對簡易,非常適合自建。
平面布局圖: 設有采光井,增加空間的自然光照射,保證采光充足;將儲藏室、酒窖設在地下室,儲藏條件更好,儲存周期更長。
正門入戶即堂屋,符合農村人的風俗習慣;一層老人房空間足夠大,另有側門方便進出,老人的居家生活更加方便。
二層居住區,根據不同功能需求,大臥室設有陽光房,在家就能充分享受日光,親近自然,3臥室都有陽臺,室內采光非常充足,光線好。
三樓主臥自帶獨立書房,提供安靜的環境,方便在家學習辦公。
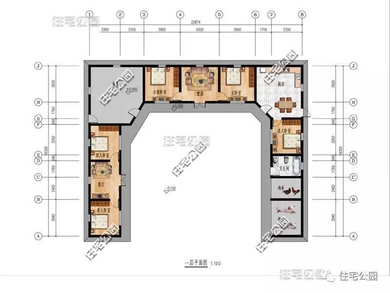
戶型四 北方常見的平層三合院也是典型的農村大戶型,古樸大方的外觀,白墻黛瓦搭配溫暖堅實的木結構,傳統的中國風令人贊嘆!
平面布局圖: 最中間的堂屋,兩旁分設主臥和兒童房,方便照顧;另有2客臥,方便招待客人;雞舍豬圈與生活區有隔離,既能滿足日常的生產,又能提供舒適的生活。
戶型五 園林式的別墅戶型,綠化面積非常充盈,提供高品質居家生活的同時,打造良好的生態環境。
平面布局圖: 將車庫和儲藏室設在地下室,充分開發空間,提供空間利用率。
綠化區與生活區交融,完美展現純天然的居家生活,在家享受現代化的生活,也能親近自然。
二層居住區設有4臥室1起居室,滿足多人口大家庭的居住需求,更有陽光房滿足家庭成員不同的居住需求。
看完這幾套大戶型,大家覺得哪一套更好看呢?是大氣的歐式還是傳統的中式呢? 圖紙之家-專注農村別墅/自建房設計18年,集合國內200余位經驗豐富的設計師,被評為口碑最好的農村建筑設計公司! |

經典小戶型新農村房屋住宅設計圖,10萬左右
占地:80平方米
120平方房子設計圖,農村120平建房設計圖推薦
占地:122平方米
雙拼小別墅設計圖紙(含效果圖),二層別墅設計方案精選
占地:130平方米
120平方米帶地下室三層復式別墅戶型圖,現代風格
占地:120.78平方米左
簡約實用農村自建房戶型圖,美觀經濟又通透,南北通透住得爽!
占地:160.6平方米
150平米田園風格二層別墅設計圖紙,沉穩大氣有內涵
占地:150平方米
120平米農村房屋設計圖,造價20萬左右,別墅造型結構精致
占地:120平方米
新中式農村三層樓房設計圖紙,全套圖紙設計,線條錯落有致
占地:130平方米
200平方米別墅設計圖紙(含效果圖),農村別墅方案精選
占地:200.26平方米
三層歐式自建房別墅設計方案,11x11米洋氣實用,飽受大家好評
占地:127平方米
二層農村自建小別墅設計圖,歐式風格,占地160平方米
占地:160平方米
新農村現代簡約別墅建筑設計圖紙(含外觀效果圖),28萬左右
占地:107平方米
七字形農村自建房二層設計圖,“L”型別墅設計,簡約時尚!
占地:209平米左右
13.5米乘11米兩層半別墅設計圖,中式與現代相融合
占地:148.5平方米
時尚創意型二層小別墅設計圖,占地面積110平方米,外觀清新典雅
占地:110平方米
共用樓梯二層雙拼自建別墅設計圖,簡單大氣方正
占地:153.88平方米,
美式風格鄉村兩層小別墅自建房設計圖,外觀圖好看
占地:150平方米
高端三層新中式農村別墅設計圖,仿合院布局,外觀霸氣
占地:133.64平方米
新中式二層農村住宅設計圖,戶型方正,主體造價21萬
占地:135.81平方米
網紅中式一層三合院別墅設計圖,白墻黛瓦古典大氣,讓人心曠神
占地:248.82平方米
推薦:10套新農村自建房設計圖,2026年最新設計
閱讀次數:4825737次
100套鄉村別墅圖片大全,2026年最新設計
閱讀次數:2492203次
6款農村蓋一層平房的設計圖,10萬元就能建起來
閱讀次數:1852637次
這11個一層農村自建房別墅火爆了朋友圈!我最喜歡戶型十!你呢
閱讀次數:750268次
農村6萬元建一層小別墅圖,你敢相信嗎
閱讀次數:567686次
農村5萬塊就能自建房,6套普通房子設計圖分享,你沒看錯!
閱讀次數:419410次
8套農村漂亮三間平房圖片,非常適合在農村修建!
閱讀次數:411197次
農村自建房化糞池怎么做?附方案及施工過程
閱讀次數:391783次
農村一層三間平房設計圖,告別土氣養老房,讓人忍不住點贊
閱讀次數:350581次
新農村二層樓房圖片造價12萬,挑一套回家建房吧!
閱讀次數:349126次
