
|
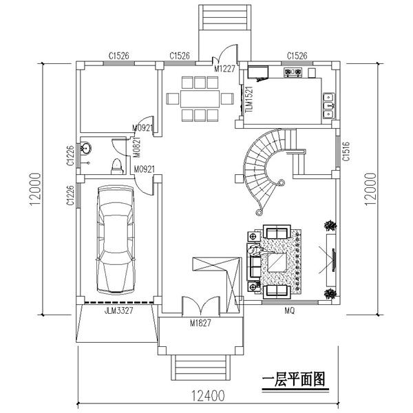
咱們農村朋友建房要的就是省錢不省料,在保證房子質量和安全系數達標的前提下,做到最大的經濟效益化,將性價比發揮到最大值!最好還要美觀,畢竟是自己住嘛,那么基于這些,我推薦3套戶型,包括選材方面的妙招! 我們先看第一套別墅:
再看看第二套別墅:
附上一張網友建好的實景圖:
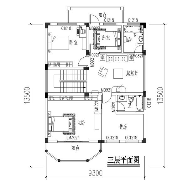
再看看第三套別墅:
這里也附上一張建造實景圖:還沒有裝修完。
對于三層的農村別墅,像土層較硬的情況下,建議使用條形基礎,除非是淤泥質土,盡量避免使用樁基礎。 這都是在保證房屋安全的情況下給予的省錢小妙招哦。 圖紙之家-專注農村別墅/自建房設計18年,集合國內200余位經驗豐富的設計師,被評為口碑最好的農村建筑設計公司! |

125平方米新中式農村自建三層別墅建筑設計圖紙及效果圖
占地:124平方米
農村四間兩層樓房設計圖,外觀時尚,戶型實用
占地:180平方米
180平方米新農村三層別墅設計圖紙,效果圖+全套cad施工圖
占地:180平方米
140平四層復式別墅房屋設計圖,帶外觀效果圖
占地:140平方米
兩層半新農村別墅設計圖紙,CAD設計圖+高清效果圖
占地:90平方米
簡簡單單的二層樓房的設計圖,24萬就能搞定
占地:120平方米
歐式三層豪宅樓設計圖紙及外觀效果圖,占地180平左右
占地:177.82平方米
鄉下復式三層房子設計圖,帶堂屋,客廳中空,輕奢風格
占地:190平方米
140平三層復式別墅設計圖及外觀效果圖
占地:140平方米
農村大氣四層樓房圖片及全套設計圖紙,復式客廳旋轉樓梯
占地:143平方米
歐式三層雙拼別墅設計圖,精致大氣布局實用,兄弟建房上上之選
占地:234平方米
三層新農村住宅房屋設計圖,溫馨美觀的戶型
占地:180平方米
一層半房屋別墅設計圖,帶閣樓圖、帶露臺,外觀新穎時尚
占地:130平方米
農村最漂亮平頂三層別墅設計圖,10.5乘11.5米
占地:119.35平方米
獨棟別墅設計戶型圖帶外觀效果圖,雙向樓梯設計
占地:155平方米
復式樓房二層農村別墅圖,村里建一棟絕對人人都羨慕
占地:130.2平方米
二層平頂別墅設計圖,漂亮經濟實用二層農村小別墅最新房屋設計
占地:多種戶型
120平方米新農村四層房屋設計圖紙和效果圖
占地:120平方米
農村三間兩層樓房設計圖,帶外觀效果圖
占地:140平方米
農村中式二層雙拼四合院別墅設計圖,兄弟父母三戶典雅大氣
占地:360平方米
推薦:10套新農村自建房設計圖,2026年最新設計
閱讀次數:4825737次
100套鄉村別墅圖片大全,2026年最新設計
閱讀次數:2492203次
6款農村蓋一層平房的設計圖,10萬元就能建起來
閱讀次數:1852637次
這11個一層農村自建房別墅火爆了朋友圈!我最喜歡戶型十!你呢
閱讀次數:750268次
農村6萬元建一層小別墅圖,你敢相信嗎
閱讀次數:567686次
農村5萬塊就能自建房,6套普通房子設計圖分享,你沒看錯!
閱讀次數:419410次
8套農村漂亮三間平房圖片,非常適合在農村修建!
閱讀次數:411197次
農村自建房化糞池怎么做?附方案及施工過程
閱讀次數:391783次
農村一層三間平房設計圖,告別土氣養老房,讓人忍不住點贊
閱讀次數:350581次
新農村二層樓房圖片造價12萬,挑一套回家建房吧!
閱讀次數:349126次
