
|
俗話說“一年之計在于春”,在暖洋洋的三月很多朋友開始如火如荼地給家里蓋新房了。隨著農村發展越來越紅火,大家對房屋的外觀、品質的要求也越來越高。更多的農村朋友開始選擇請專業的房屋設計師來設計戶型、效果圖,以建成自己夢寐以求的那棟別墅。 小編總結了新鮮出爐的7款最搶手的豪華小別墅,性價比極高,快看看你最想擁有的是哪一棟別墅! 01.編號:j-420-2層數: 2層 結構形式: 磚混 主體造價: 22-30萬 開間: 12.84米 進深: 13.42米 占地面積: 137平方米 建筑面積: 273.7平方米
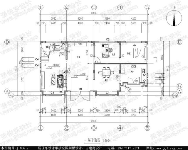
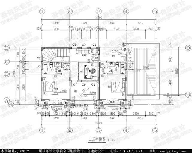
一 層:客廳、餐廳、廚房、衛生間、沖涼房、儲物間、臥室 二層:客廳、餐廳、廚房、衛生間、沖涼房、儲物間、臥室2間、陽臺 02.編號:j-006-2層數: 2層 結構形式: 框架 主體造價: 22-32萬 開間: 16.6米 進深: 8.4米 占地面積: 140平方米 建筑面積: 236平方米
一層:一層設堂屋、客廳、餐廳、廚房、臥室帶書房、衛生間1間、儲藏室。 二層:二層設有臥室2間、衛生間2間、書房、1個大陽臺和露臺。 03.編號:j-404-2
一層:客廳、餐廳、廚房、衛生間、臥室帶衛生間、儲物間、車庫 二層:4個臥室、陽臺、一個臥室帶衛生間、衛生間
04.編號:J-425-2層數: 2層 結構形式: 磚混結構 主體造價: 18-24萬 開間: 11.7米 進深: 12.03米 占地面積: 115平方米 建筑面積: 227.75平方米
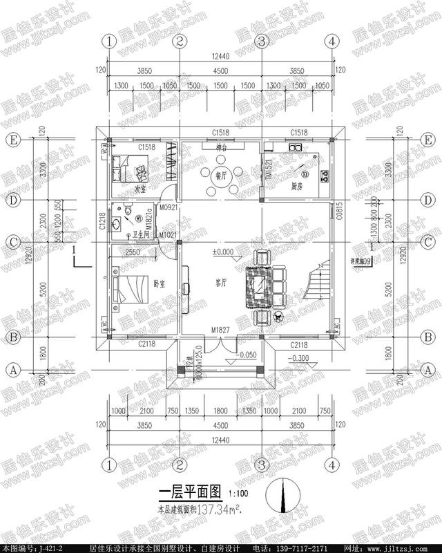
一層:客廳、堂屋、廚房、餐廳、臥室、衛生間 二層:四間臥室、露臺、客廳、衛生間 05.編號:j-421-2層數: 2層 結構形式: 磚混 主體造價: 20-28萬 開間: 12.44米 進深: 12.92米 占地面積: 137平方米 建筑面積: 261.97平方米
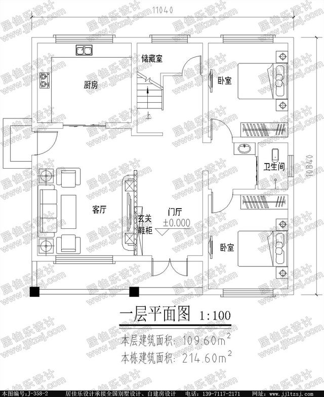
一層:廚房,客廳,餐廳,衛生間,臥室2間 二層:三間臥室,衛生間,書房,露臺,陽臺 06.編號:J-358-2層數: 2層 結構形式: 磚混結構 主體造價: 17-23萬 開間: 11.04米 進深: 10.84米 占地面積: 110平方米 建筑面積: 214.6平方米
一層:客廳、廚房、門廳、2間臥室、衛生間、儲物間 二層:三間臥室、棋牌室、小客廳、衛生間,露臺 07.編號:j-091-3層數: 3層 結構形式: 磚混結構 主體造價: 21-29萬 開間: 11.4米 進深: 9米 占地面積: 109平方米 建筑面積: 266平方米
一層:一個臥室、一個客廳、 一個餐廳和廚房、一個衛生間 二層:3個臥室、一個衛生間、一個起居室、一個陽臺 三層:2個臥室、一個衛生間、一個起居室、一個陽臺、一個露臺 圖紙之家-專注農村別墅/自建房設計18年,集合國內200余位經驗豐富的設計師,被評為口碑最好的農村建筑設計公司! |

帶堂屋二層小別墅設計圖紙帶外觀圖,13.6米x9米
占地:122.4平方米
開間14米!農村養老一層別墅神戶型,爸媽住得安心,施工隊狂贊太
占地:160.86平方米
兄弟三層雙拼房屋設計圖,帶效果圖,戶型好
占地:256平方米
帶開放式車庫二層農村自建別墅設計方案,造價僅15萬
占地:89.412平方米
一層半小別墅設計圖帶效果圖,農村自建帶閣樓一層半方案
占地:155平方米
占地200平米時尚現代三層農村別墅設計圖,簡簡單單百看不厭
占地:202.95平方米
漂亮時尚二層樓房設計圖紙,經濟實用,戶型通透
占地:150平方米
12.8x10米二層自建房別墅設計圖,大氣美觀實用,建造無憂
占地:128平方米
農村最好看18萬左右兩層小樓圖,外觀、造型簡潔大方
占地:120平方米
占地百平三層歐式別墅設計圖,回到家鄉建一棟,大氣美觀有內涵
占地:99.94平方米
造價40萬三層大氣自建房設計圖紙,鄉村別墅建造圖
占地:159.609平方
超實用的農村一層別墅設計圖,經濟實惠養老自住都不錯,
占地:128.35平方米
50萬左右農村豪華二層別墅設計圖 ,大廳中空,外觀精美
占地:210平方米
歐式三層小洋樓設計圖,歐式最美三層別墅外觀效果圖
占地:124.28平方米
130平四間二層小洋樓設計圖,含外觀圖片
占地:130平方米
農村二層住宅設計圖,大窗戶客廳,一起享受大面積采光的溫暖
占地:220平方米
農村四間二層半雙拼樓設計圖,住三帶人都沒有問題!
占地:270平方米
廚房在前,簡約歐式二層農村自建別墅設計圖,戶型個性
占地:143.69平方米
2026二層農村新款別墅新式二層樓房設計圖,非常時尚
占地:多種戶型
155平方米二層別墅房屋設計圖,帶獨立車庫
占地:155平方米
推薦:10套新農村自建房設計圖,2026年最新設計
閱讀次數:4825737次
100套鄉村別墅圖片大全,2026年最新設計
閱讀次數:2492203次
6款農村蓋一層平房的設計圖,10萬元就能建起來
閱讀次數:1852637次
這11個一層農村自建房別墅火爆了朋友圈!我最喜歡戶型十!你呢
閱讀次數:750268次
農村6萬元建一層小別墅圖,你敢相信嗎
閱讀次數:567686次
農村5萬塊就能自建房,6套普通房子設計圖分享,你沒看錯!
閱讀次數:419410次
8套農村漂亮三間平房圖片,非常適合在農村修建!
閱讀次數:411197次
農村自建房化糞池怎么做?附方案及施工過程
閱讀次數:391783次
農村一層三間平房設計圖,告別土氣養老房,讓人忍不住點贊
閱讀次數:350581次
新農村二層樓房圖片造價12萬,挑一套回家建房吧!
閱讀次數:349126次
