
|
在小編那個年代,誰在城里買了房,那在村里走起來都是飄飄的,一陣艷羨的眼神,然而,今時不同往日,現在村里茶閑飯后的話題只有誰在村里蓋房了?多大?多少錢?這些話題了,現在回農村蓋房完全是大勢啊! 下面小編就告訴大家,農村別墅靠的不僅僅是顏值,實力那也是桿桿的! 款式一:
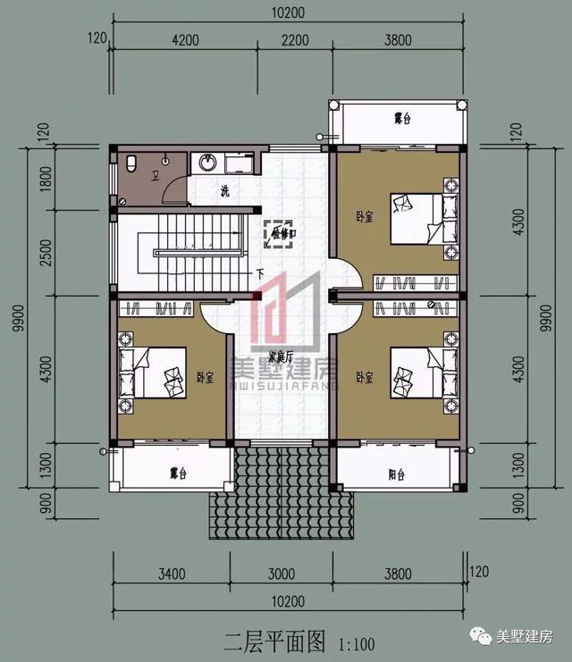
這款別墅開間11.2米,進深12.22米,占地面積106平方米,這個面積大多數農村人口都是有的,建筑面積206平方米,因為結構采用磚混結構,所以這個造價只要18萬左右,讓我們一起看下內部結構。 平面圖:
一層進門處可以根據自己的需要改為玄關,門廳,堂屋都可,右手邊是一個主臥室,內有衛生間,私密性好也很方便,餐廳的位置相當獨立,不是處于客廳中,公共衛生間干濕分離,通風干燥。
二層設有三個臥室,而且都帶有露臺陽臺,雖然二樓只有一個衛生間,但是干濕分離的結構,而且空間很大,一個很大的家庭廳,休閑娛樂最佳場地, 這棟房屋一個最大的特點就是有一個檢修口,環保便利。 款式二:
這款別墅地基墊高了一點,做上扶梯,高端大氣,外觀色調搭配獨具一幟,大型露臺可以合理利用,開間13米,進深13.8米,占地面積162平方米,建筑面積421.8平方米,結構采用磚混結構,造價在35萬左右,這種低調的奢華,你值得擁有。 平面圖:
進門處設有玄關,左手邊是主臥室,內嵌獨立衛生間,干濕分離,方便,餐廳與廚房棋牌室相通,很符合現在農村的生活方式,側臥離衛生間也很近,樓梯下方的位置利用成為儲藏間。
二層有三間臥室,一主臥室內有衛生間,一主臥室內有衣帽間,獨立式書房,學習看書的最佳場所,起居室空間大,與陽臺相通,陽光空氣都很好。
三層內還設有兩臥室,其中一臥室內有陽臺,早起在陽臺上看看陽光,很有感覺,如果東西沒有那么多的話,這三樓的儲藏間就夠用了,一層樓梯下方可以放些山水景觀,有風水的講究在里面,大型露臺的好處就不用小編多說了吧。 款式三:
這款戶型采用框架結構,占地面積182平方米,建筑面積366.4平方米,造價在36萬左右,外觀天藍色波型瓦別墅致大方。
入口處的玄關,餐廳在整個房型的正中心,風水上說過這樣好像很好,現在農村的經濟發展的也很快,每家每戶都有車,這時候車庫就變的很重要了,畢竟現在的車保養也很貴,放進車庫不經歷雨打風吹,這是非常好的。
二層旋轉樓梯和挑空客廳的設計搭配起來,很時尚,陽臺和露臺挺多,空氣很好,三間臥室也合理利用了空間。
三層除了三間臥室和大露臺陽臺外,還有一個大的活動室,可作為休閑場所。 農村的別墅看起來絲毫不比城里差呢,你有錢有地要蓋房,就一定要蓋棟好點的房,自己蓋了一棟好房,還能留給下一代,造福幾代人,和樂而不為呢。 圖紙之家-專注農村別墅/自建房設計18年,集合國內200余位經驗豐富的設計師,被評為口碑最好的農村建筑設計公司! |

三層樓房設計圖紙含效果圖,外觀造型高低錯落,別致大方
占地:152.4平方米
140平方米新農村復式自建房子,三層別墅建筑圖紙及效果圖
占地:138平方米
180平方米新農村三層別墅設計圖紙,效果圖+全套cad施工圖
占地:180平方米
150平米經典二層中式別墅設計圖 ,現代中式相結合
占地:154平方米左右
時尚的農村二層別墅圖紙設計,現代風格,簡約的外觀
占地:152平方米左右
二層農村小別墅自建房設計圖,布局實用,占地150平
占地:149.05平方米
一層農村自建房設計,背面不開窗,15乘10米,內部布局實用
占地:多戶型可選
三層兄弟雙拼別墅設計方案,外觀大氣布局實用,住的舒服
占地:197.67平方米
兩戶190平方米新農村雙拼別墅全套設計方案及效果圖
占地:191平方米
仿古建筑中式祠堂設計圖紙及外觀效果圖
占地:546平方米
農村二層帶閣樓四間別墅設計圖,外觀美觀,戶型實用
占地:175平方米
預算10萬的簡單二層半別墅房屋設計圖,外觀簡單,造價低
占地:90平方米
三層獨棟帶露臺房屋設計圖,含外觀圖片大全
占地:110平方米
最新高端四層別墅外觀效果圖及全套設計圖,真土豪就這樣建
占地:174.08平方米
簡單大氣農村兄弟三層雙拼別墅住宅設計圖,13X8米
占地:110平方米左右
二層復式小洋樓設計圖,外觀精致,戶型合理
占地:115平方米
造型新穎漂亮的農村二層現代風別墅設計圖,老少皆宜的外觀
占地:144.54平方米
七字型設計新中式一層別墅設計圖,類合院風格
占地:267.3平方米
架空層設計的農村自建房別墅設計圖,既做車庫又做儲物間,太實
占地:230.62平方米
130平新農村二層住宅設計圖,外觀精致、漂亮
占地:130平方米
推薦:10套新農村自建房設計圖,2026年最新設計
閱讀次數:4825737次
100套鄉村別墅圖片大全,2026年最新設計
閱讀次數:2492203次
6款農村蓋一層平房的設計圖,10萬元就能建起來
閱讀次數:1852637次
這11個一層農村自建房別墅火爆了朋友圈!我最喜歡戶型十!你呢
閱讀次數:750268次
農村6萬元建一層小別墅圖,你敢相信嗎
閱讀次數:567686次
農村5萬塊就能自建房,6套普通房子設計圖分享,你沒看錯!
閱讀次數:419410次
8套農村漂亮三間平房圖片,非常適合在農村修建!
閱讀次數:411197次
農村自建房化糞池怎么做?附方案及施工過程
閱讀次數:391783次
農村一層三間平房設計圖,告別土氣養老房,讓人忍不住點贊
閱讀次數:350581次
新農村二層樓房圖片造價12萬,挑一套回家建房吧!
閱讀次數:349126次
