
|
對于游子來說,在外奮斗了大半輩子,不就是為了創造更好的生活條件。在他們的內心深處,渴望回到那個養育他們成長的地方。有了豐厚的物質條件,為何不回鄉下建造一所屬于自己的別墅。遠離城市的空氣污染,感受大自然的氣息;坐擁一片山林,看日出日落。體會到采菊東籬下,悠然見南山的悠然自得。下面跟小編一起去看看今天的案例吧。 一、簡介 這是一套二層磚混結構的歐式風格別墅。根據客戶的需求,建筑形式還是以舒適性和功能性為主;同時也考慮到三代人的不同人群需求,進行戶型設計。
效果圖
效果圖
效果圖
未拆之前的老屋
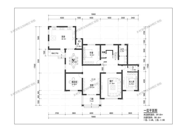
未拆之前的老屋 二、圖紙設計 這是拆除老宅重建的項目,位置上整體往左邊移了2m。別墅前面需要填平,用來種植果樹裝飾庭院。一樓我們可以看到,走進門就是堂屋,旁邊就是客廳、娛樂室、臥室、衛生間等;考慮到老人年紀大了不方便上樓,于是在一樓設置了老人房,旁邊就有衛生間方便老人使用。廚房的位置遠離臥室、客廳這些地方,一是用地限時,二是考慮到油煙問題。為了方便使用,廚房還設置了單獨的出入口。餐廳和廚房是相鄰的,這樣比較方便。樓梯那設置了儲藏空間,這樣方便放置雜物,也不影響其他功能區。
一層平面圖 二樓走廊設置還是比較寬敞的,有4間臥室,一間書房,二個陽臺,公共衛生間還有臥室單獨配置的衛生間。
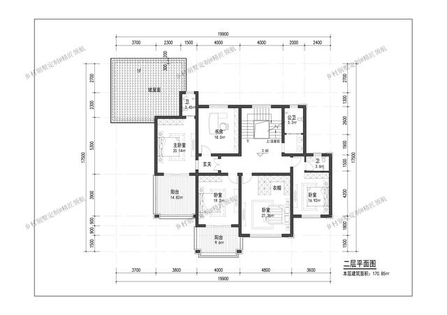
二層平面圖 三、施工現場 施工現場照片五牌一圖,按規范施工。
工人做事要求必須帶安全帽,保證施工安全。
后期小編還會繼續更新。感興趣的話也可以申請去現場考察哦! 圖紙之家-專注農村別墅/自建房設計18年,集合國內200余位經驗豐富的設計師,被評為口碑最好的農村建筑設計公司! |

全套三層農村房屋設計圖紙,客廳中空,大大的窗戶,采光極好,
占地:160平米
新農村140平米樓房圖四層獨棟別墅設計圖,簡歐外觀風格設計
占地:141平方米
面寬16米三層法式別墅設計圖,設計新穎別致,建成后美不勝收
占地:162.07平方米
100平復式三層別墅房屋設計圖,客廳挑高,采光好,臥室多
占地:100平方米
農村四間兩層樓房設計圖,帶車庫,時尚經濟,最適合農村施工的
占地:180平方米
簡單實用的二層雙拼別墅設計圖,總占地150平米左右,雙拼房屋
占地:150平方米MB
鄉村中式四合院二層別墅設計圖,中式韻味十足
占地:223平方米左右
面寬13米二層新農村別墅自建房設計圖,功能實用,外觀大氣
占地:168.96平方米
最美中式農村別墅二層三間的房子圖,帶土灶房,娛樂室,大露臺
占地:180平方米
鄉村兩層半別墅設計圖,一層160平,主體30萬左右
占地:168平方米左右
新中式三層雙拼別墅設計圖及效果圖,中式大氣風格
占地:235.26平方米
挑空客廳戶型歐式二層別墅設計圖紙,高端大氣帶車庫
占地:236.09平方米
簡歐風格三層別墅設計圖,外觀看起來很高端、上檔次
占地:139平方米
二層歐式小別墅設計方案,全套建筑設計圖紙+外觀效果圖
占地:146平方米
不帶廚房餐廳的二層別墅設計圖,農村建房很多人都這樣做
占地:124平方米左右
農村四層復式樓房設計圖,外觀效果圖+全套圖紙
占地:108平方米
新農村三層別墅設計圖紙及效果圖,全套cad建筑圖
占地:119平方米
現代風平屋頂一層自建房設計,經濟時尚
占地:147.17平方米
鄉下建房一層戶型圖及全套圖紙,養老房,還是一層好
占地:210平方米
小開間三層新中式小別墅設計圖,外觀圖優雅大氣,讓人心動!
占地:103.18平方米
推薦:10套新農村自建房設計圖,2026年最新設計
閱讀次數:4825737次
100套鄉村別墅圖片大全,2026年最新設計
閱讀次數:2492203次
6款農村蓋一層平房的設計圖,10萬元就能建起來
閱讀次數:1852637次
這11個一層農村自建房別墅火爆了朋友圈!我最喜歡戶型十!你呢
閱讀次數:750268次
農村6萬元建一層小別墅圖,你敢相信嗎
閱讀次數:567686次
農村5萬塊就能自建房,6套普通房子設計圖分享,你沒看錯!
閱讀次數:419410次
8套農村漂亮三間平房圖片,非常適合在農村修建!
閱讀次數:411197次
農村自建房化糞池怎么做?附方案及施工過程
閱讀次數:391783次
農村一層三間平房設計圖,告別土氣養老房,讓人忍不住點贊
閱讀次數:350581次
新農村二層樓房圖片造價12萬,挑一套回家建房吧!
閱讀次數:349126次
