
|
農村建房子宅基地尺寸我理解寬就是面寬,長就是進深,也就是您需要面寬8.6米,進深12米的三層半戶型對么?農村別墅戶型除了定制設計,很難找到完全符合的,我這里有一套8.5米X11.7米的二層半戶型,尺寸算是非常接近,主臥是帶衛生間的套間,也就是雙衛生間,供您參考。二層當做標準層,也就是二層三層一樣,您可以改為三層半,但9米左右的進深,再高可能影響外型美觀效果。 這個尺寸宅基地應該兩邊都能開窗,如果不能開窗的,宅基地面積一般會再深一點,如果不能開窗,要考慮天井的位置,一般縱向居中比較好。15米進深兩側無窗最少要一個天井,20米左右要兩個天井比較適合。
下圖為二層平面圖,改三層半的話,可以當做二層、三層平面圖。我覺得這套戶型比較工整,衛生間數量也合適,確實適合農村建造。 更多農村別墅圖紙,歡迎右上關注。
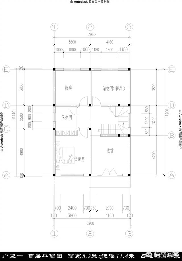
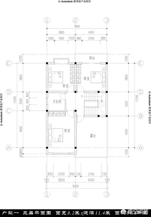
============================================================ 宅基地面寬8.6米,進深12米,考慮建幾層?具體朝向呢? 提供一個參考 宅基地面寬8.2米x11.4米 建筑占地,93.8平方米 磚混結構 效果圖
一層平面圖 堂屋,樓梯,廚房,餐廳,衛生間,父母房
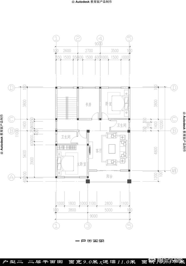
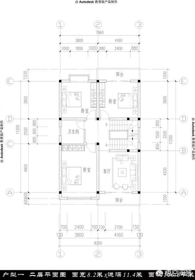
三室一廳,公衛,樓梯間,陽臺
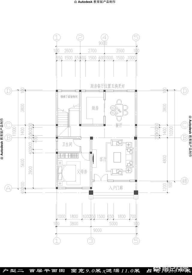
三層平面圖 三室,公衛,樓梯,露臺,陽臺 還有他套接近的戶型 面寬9米,進深11米 磚混結構 效果圖
了解更多作品,可點擊右上角,在咨詢此類問題同時,最好結合圖文表達,圖為:宅基地尺寸大小,四周環境描述,以及宅基地現場照片,喜歡的造型風格圖片,文字說明為:結合自己宅基地情況以及家庭居住情況分別提供地址構想,如建房層數,計劃尺寸面積,每層房間功能布局要求,層高要求,結構要求!等 =====================================================
借的設計圖,只是本人喜歡這一套,打算今年在魚塘上蓋一個~到時候嗮圖! 圖紙之家-專注農村別墅/自建房設計18年,集合國內200余位經驗豐富的設計師,被評為口碑最好的農村建筑設計公司! |

新農村二層雙拼小別墅設計圖,開間22米的現代房屋圖紙設計
占地:230平方米
15×10米農村二層四合院自建房戶型圖,小型四合院設計圖
占地:150平方米
農村一層平房設計圖,人字坡戶型簡單大方,養老自住都不錯
占地:139.2平方米
20萬左右普通農村房子設計圖,二層簡約小別墅
占地:140平方米
2026年經典新中式三層別墅設計圖紙,新款自建房戶型圖
占地:158.19平方米
兄弟四間三層雙拼別墅設計圖,造價40萬左右
占地:210平方米
150平歐式別墅房屋設計圖,外觀精美、氣派
占地:150平方米
12.8x10米二層自建房別墅設計圖,大氣美觀實用,建造無憂
占地:128平方米
農村三間三層半別墅設計圖,舒適寬敞時尚經濟,居住生活方便舒
占地:168.29平方米
帶車庫二層165平別墅房屋設計圖,含效果圖
占地:165平方米
最新小別墅設計圖,復式三層,外觀非常漂亮
占地:158平方米
農村三層蓋房設計圖大全,最新的設計,最新的戶型
占地:150平方米
農村三層別墅設計圖紙,造價50萬左右,中式風格,沉穩內斂
占地:160平方米
三層歐式豪華別墅設計方案,全套圖紙+效果圖
占地:168平方米
新中式農村自建房三層設計圖,外觀布局均滿分
占地:142.18平方米
最美建筑四合院別墅設計方案,大氣經典,開間19米
占地:168.61平方米
經典中式三合院設計,一層空間實用大氣,輕松實現理想家園!
占地:160.53平方米
二間二層小型別墅設計圖,美觀、經濟、實用!
占地:96平方米
帶地下室KTV三層農村自建別墅設計圖,12米乘12.5米
占地:131.7平方米
二層復式小別墅設計圖,樓中樓結構,外觀漂亮,簡單
占地:120平方米
推薦:10套新農村自建房設計圖,2026年最新設計
閱讀次數:4825737次
100套鄉村別墅圖片大全,2026年最新設計
閱讀次數:2492203次
6款農村蓋一層平房的設計圖,10萬元就能建起來
閱讀次數:1852637次
這11個一層農村自建房別墅火爆了朋友圈!我最喜歡戶型十!你呢
閱讀次數:750268次
農村6萬元建一層小別墅圖,你敢相信嗎
閱讀次數:567686次
農村5萬塊就能自建房,6套普通房子設計圖分享,你沒看錯!
閱讀次數:419410次
8套農村漂亮三間平房圖片,非常適合在農村修建!
閱讀次數:411197次
農村自建房化糞池怎么做?附方案及施工過程
閱讀次數:391783次
農村一層三間平房設計圖,告別土氣養老房,讓人忍不住點贊
閱讀次數:350581次
新農村二層樓房圖片造價12萬,挑一套回家建房吧!
閱讀次數:349126次
