
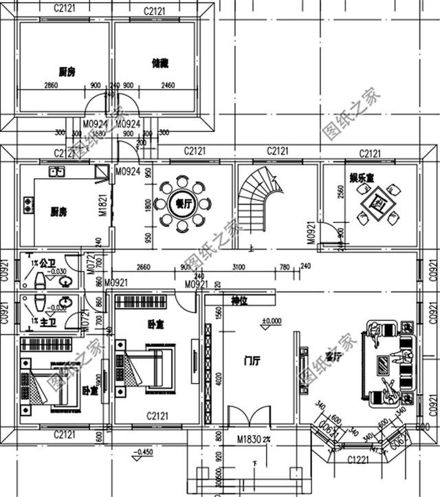
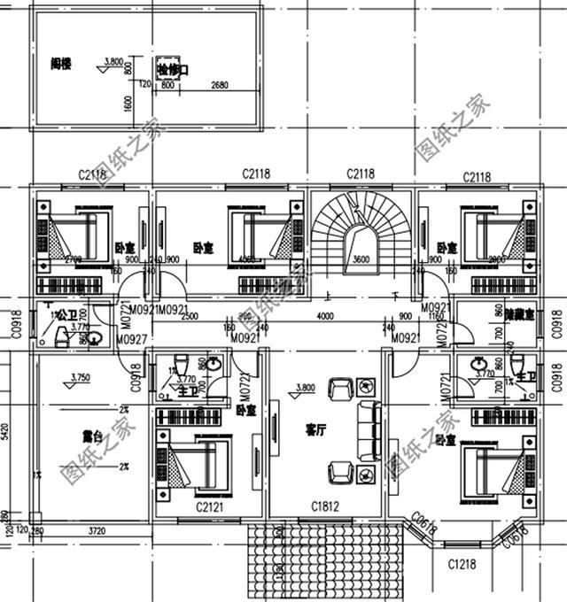
自建房一:鄉下建房一層戶型圖及全套圖紙鄉下建房一層戶型圖及全套圖紙,養老房,還是一層好,建給農村的父母。房子戶型方正,前設羅馬柱,前后四窗通透,便于采陽通風。 ![]() 占地面積:18.1m*12.1m,210平方米左右; 建筑層高:一層; 建筑高度:6.6米(含屋頂); 設計功能:客廳、餐廳、廚房、臥室×2、老人房×2、衛生間×2、洗衣房、棋牌室; ![]() 自建房二:帶獨立廚房的二層自建房設計圖帶露臺歐式二層自建房設計圖,整棟房子看起來很大氣,屋頂采用坡面設計,外墻用黃色為主色,有文化石點綴,美感十足。 ![]() 占地面積:17m*18m,233平方米; 建筑層高:二層; 建筑高度:10.3米(含屋頂); 設計功能: 一層戶型:廚房X2,儲藏間,餐廳,娛樂室,公衛,臥室(帶主衛),臥室,門廳,神位,客廳; 二層戶型:閣樓,檢修口,臥室X3,公衛,露臺,客廳,儲藏室,臥室(帶主衛)X2 ; ![]() ![]() 自建房三:帶地下室設計三層自建房別墅設計圖一層氣派的中空客廳非常符合別墅的整體氣質。二層設置了3間臥室,設置緊湊,方正合理,開窗采光良好,居住舒適度佳!三層布局與二層一樣,多了一個大露臺,很好的滿足日常晾曬的需求,也是和親友一起觀看風景,乘涼納暑的好地方。 ![]() 占地面積:16m*13.5m,192平方米左右; 建筑層高:三層; 建筑高度:13.444米(含屋頂); 設計功能: 一層戶型:玄關、客廳、茶室+書房、廚房、餐廳、臥室、衛生間; 二層戶型:客廳上空、起居室、臥室(帶衣帽間、衛生間)、臥室(帶衛生間)、臥室、衛生間、陽臺x2; 三層戶型:臥室(帶衣帽間、衛生間)、臥室(帶衛生間)x2、陽臺、露臺; ![]() ![]() ![]() 以上就是農村自建房設計圖紙,小編今天分享的這幾款大家覺得怎么樣?選好圖紙一定要慎重慎重再慎重。
圖紙之家-專注農村別墅/自建房設計18年,集合國內200余位經驗豐富的設計師,被評為口碑最好的農村建筑設計公司! |

外觀高檔大氣的三層別墅房屋設計圖,高端別墅設計展示
占地:147平方米
165平方米三層雙拼農村房屋設計圖大全14x12
占地:168平方米
農村新款二層中式別墅設計圖效果圖,帶堂屋設計
占地:144平方米
45萬新中式二層雙拼自建房別墅設計圖,平屋頂設計
占地:210平方米
帶車庫二層165平別墅房屋設計圖,含效果圖
占地:165平方米
三層農村自建別墅設計圖紙及效果圖,占地110平米,外觀精致又大
占地:110平方米
五間兩層農村自建房設計圖,大門居中真氣派,空間寬敞生活質量
占地:219.94平方米
100平方米實用二層半小別墅設計圖紙(帶閣樓層),住著安逸
占地:100平方米左右
鄉村房屋改建三層房屋設計圖紙,農村樓房設計圖推薦
占地:90平方米
35萬內三層自建別墅設計圖,外觀美觀,戶型舒適
占地:135平方米
二層雙拼別墅外觀效果圖及施工圖,帶露臺,14乘12米
占地:168平方米
簡單農村自建二層樓房設計圖,南北通透
占地:140平方米
180平方農村二層別墅施工設計圖紙,15.8x11.7米
占地:180平方米
一層中式三合院農村自建別墅圖,面寬18米帶堂屋設計
占地:165.72平方米
帶地下室+挑空客廳,農村三層洋樓別墅誰家圖在
占地:97.74平方米
新中式二層雙拼別墅農村自建房子設計圖紙,面寬19米
占地:240平方米左右,單
歐式三層別墅設計圖,低調奢華,實用布局,好設計不容錯過
占地:134.1平方米
兄弟三層雙拼房屋設計圖,帶效果圖,戶型好
占地:256平方米
占地百平三層歐式別墅設計圖,回到家鄉建一棟,大氣美觀有內涵
占地:99.94平方米
2026新款四層樓房設計圖,占地120平方米左右,客廳中空
占地:120平方米
推薦:10套新農村自建房設計圖,2026年最新設計
閱讀次數:4825737次
100套鄉村別墅圖片大全,2026年最新設計
閱讀次數:2492203次
6款農村蓋一層平房的設計圖,10萬元就能建起來
閱讀次數:1852637次
這11個一層農村自建房別墅火爆了朋友圈!我最喜歡戶型十!你呢
閱讀次數:750268次
農村6萬元建一層小別墅圖,你敢相信嗎
閱讀次數:567686次
農村5萬塊就能自建房,6套普通房子設計圖分享,你沒看錯!
閱讀次數:419410次
8套農村漂亮三間平房圖片,非常適合在農村修建!
閱讀次數:411197次
農村自建房化糞池怎么做?附方案及施工過程
閱讀次數:391783次
農村一層三間平房設計圖,告別土氣養老房,讓人忍不住點贊
閱讀次數:350581次
新農村二層樓房圖片造價12萬,挑一套回家建房吧!
閱讀次數:349126次
