
|
看多了歐式風格濃郁的洋樓別墅,再漂亮也會出現審美疲勞!倒不如來看看屬于咱們中國人自己的三合院,既有流行現代感,又不失中式典雅風情!雖然建不起恢弘大氣的四合院,現代風格的三合院倒是可以有。今天的這套三合院戶型占地20.8X20.7米,一種戶型三種外觀設計,確能滿足不同人的需求!
開放式三合院的布局讓這棟房屋既靈動又別致,功能上滿足五房兩廳一廚三衛,一個車庫。首層層高3.6米。;相較于城里沉悶的居住環境,這棟別墅以親近自然感明顯勝出。
總圖布局: 單層三合院坐北朝南,左側西向預留菜地,西南小角設置休閑涼亭、金魚池,東南小角種植大顆喬木,圍墻周邊均種植果木,三合院中心設置假山荷花池。 平面布局: 平面布局經過多次和業主溝通定制設計:三合院正面入戶門廳為客廳,往東向為餐廳、廚房;客廳往東西為臥室;主臥、書房在西北向。
立面設計: 正立面簡潔典雅,中西結合,以現代建筑手法闡釋中式三合院。正立面外墻貼磚,側立面及背立面防水隔熱層后,水泥砂漿摸光,減少不必要的浪費。
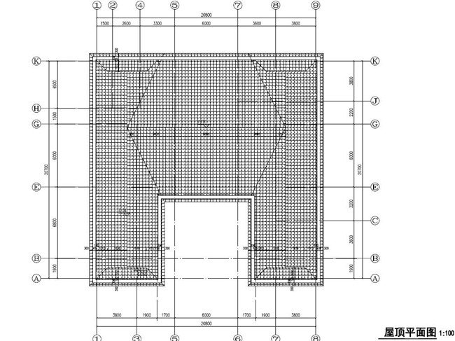
屋面說明: 屋頂均采用防水隔熱現澆樓板再蓋西瓦;西北角廚房屋頂預留空間上人屋面,以及后期屋頂做光伏發電、太陽能熱水器預留空間。
剖面圖:
圖紙之家-專注農村別墅/自建房設計18年,集合國內200余位經驗豐富的設計師,被評為口碑最好的農村建筑設計公司! |

新農村二層房屋建筑施工圖紙,廚房獨立在配房
占地:107平方米
三層農村小別墅設計圖,一層帶商鋪,占地110平米,經濟實用
占地:110平方米
全套三層農村房屋設計圖紙,客廳中空,大大的窗戶,采光極好,
占地:160平米
13x13米簡單二層帶閣樓最新別墅設計圖,精致美觀
占地:158.5平方米
三層小別墅40萬造價,大氣農村三層新中式自建房設計圖紙
占地:171.656平方米
造價65萬左右的三層歐式別墅房屋設計施工CAD圖紙及效果圖
占地:178平方米
帶地下室設計三層自建房別墅設計圖,復式挑空客廳
占地:192平方米
帶地下室的農村自建三層半歐式別墅設計圖,看著真豪氣!
占地:142.45平方米
帶車庫帶露臺二層農村小別墅設計圖,宅基地大小適中,外觀造型
占地:180平方米
30萬農村小別墅設計圖片,30萬別墅設計戶型推薦
占地:130平方米
農村15萬元二層小樓設計圖,造價低,簡潔、好看
占地:90平方米
農村中式二層雙拼四合院別墅設計圖,兄弟父母三戶典雅大氣
占地:360平方米
五間兩層農村自建房設計圖,大門居中真氣派,空間寬敞生活質量
占地:219.94平方米
30萬以下的經典二層新農村別墅設計圖紙及效果圖,簡單大氣
占地:170平方米
人氣最旺的二層半別墅設計圖紙,復式挑空二層半自建房
占地:122.679平方米
帶堂屋設計一層三合院設計圖,白墻黛瓦古韻悠悠,比高層舒服接
占地:179.37平方米
農村二層小洋樓設計圖,帶外觀效果圖,外觀新穎,漂亮
占地:130平方米
帶車庫的農村四合院別墅設計圖,富貴人家的象征,日子越過越興
占地:219.24平方米
13X13米新農村中式風三層別墅設計方案,內部布局緊湊溫馨
占地:168.43平方米
帶車位的鄉村二層別墅建筑結構設計圖,全套施工圖140平
占地:139.85平方米
推薦:10套新農村自建房設計圖,2026年最新設計
閱讀次數:4825737次
100套鄉村別墅圖片大全,2026年最新設計
閱讀次數:2492203次
6款農村蓋一層平房的設計圖,10萬元就能建起來
閱讀次數:1852637次
這11個一層農村自建房別墅火爆了朋友圈!我最喜歡戶型十!你呢
閱讀次數:750268次
農村6萬元建一層小別墅圖,你敢相信嗎
閱讀次數:567686次
農村5萬塊就能自建房,6套普通房子設計圖分享,你沒看錯!
閱讀次數:419410次
8套農村漂亮三間平房圖片,非常適合在農村修建!
閱讀次數:411197次
農村自建房化糞池怎么做?附方案及施工過程
閱讀次數:391783次
農村一層三間平房設計圖,告別土氣養老房,讓人忍不住點贊
閱讀次數:350581次
新農村二層樓房圖片造價12萬,挑一套回家建房吧!
閱讀次數:349126次
