
|
現在回農村蓋別墅真的很方便,如果經濟允許可以找專業設計師量身定制屬于自己的小別墅,如果沒那個條件,可以在網上多看看,總能找到一套家人滿意的戶型。 像今天,小編給大家帶來5套按我們的戶型建房的案例,哪套建得既好看又實惠呢,趕緊看看吧! 第一套:云南曾先生,30萬自建 30萬建成的效果和原效果圖相比是不是毫不遜色,畢竟這可是咱們的當家戶型!全國建成案例不下白套。
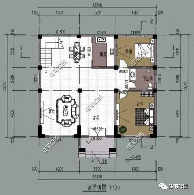
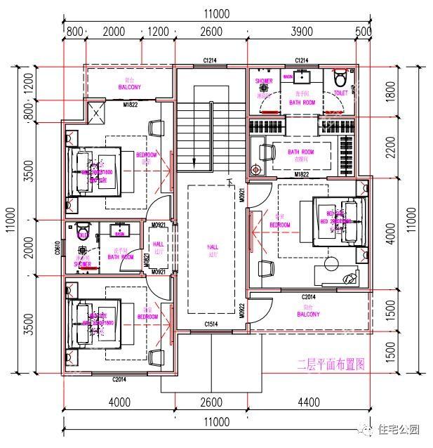
參考戶型:
拆除老房。
基礎施工,振搗混凝土。
開始砌筑主體,在規定位置留構造柱。
300多一平的施工隊還是不錯的,主體已經完工!
外墻美化,文化石+真石漆。
建房時鋼筋3900元/噸,花了4萬多;紅磚0.29元/匹,花了10萬;水泥365元/噸,買了60噸。
二層的小洋樓還有大院子,真是太令人羨慕了!
第二套:四川王先生,14萬自建 這樣一棟小洋樓,毛坯價才14萬?真令人不可思議,到底怎么建的趕緊看看!
參考戶型:
由于王先生本人就是干施工的,自家的房子自然全程監工,能幫上忙的地方也是自己施工,比如全屋的水電和坡屋頂就是自己做的,可省了不少人工費!
外墻抹灰。
外墻美化,貼瓷磚。
建此房鋼筋4200元一噸,購買8噸;紅磚0.35元一塊;商品混凝土420元一立方,一層使用20方,二層使用15方;自拌混凝土310元一立方,基礎使用26方;人工費(除去坡屋面)166元一平。 主體花費14萬,坡屋頂1萬,外墻美化3萬,門窗3萬,再加上3個月停下工作在家里的開銷一共花費24萬不到。
第三套:河北沈先生,29萬自建 這套跟前兩套不同的是,這是一棟輕鋼別墅!新型輕鋼別墅,抗震、保溫,高效,換成你,會建嗎?
參考戶型:
場地平整,基礎施工。
按照圖紙搭建輕鋼龍骨。
輕鋼速度,快不?
屋面衍架與橫梁之間用合頁固定。
外墻安裝歐松板。
填充巖棉。
外墻美化,安裝水泥纖維掛板。
這棟輕鋼別墅建筑面積230平,造價29萬,水電包工不包料,運費跟基礎不含,你覺得如何?
第四套:湖南李先生,30萬自建 這套房屋參考的也是我們一套非常經典的歐式別墅,外觀時尚,布局實用,非常適合咱們老百姓自建!
參考戶型:
大板基礎施工,當地建房習慣用水夯實。
搭建框架柱模板。
綁扎樓板鋼筋。
現澆樓板。
砌筑框架結構圍護墻體。
外墻抹灰。
房主整理好的鋼筋下料表。
房屋建筑面積420平,造價30萬,毛胚花費26.8萬,外墻粉刷花費1.5萬。 基礎鋼筋花費3750元,河沙460元一拖拉機,水泥采用425水泥,價格425元,填泥土30元一車,花費1.08萬。施工隊158元一平,包括木工加造型、泥水工、切磚、上材料、澆混凝土等。
第五套:湖南戴先生,30萬自建 經典的歐式別墅,自身典雅高貴的氣質深入人心,成了農村別墅中最廣泛使用的風格。
參考戶型:
人工挖孔樁,綁扎鋼筋,現澆。
地圈梁養護好后,回填土。
砌筑主體,當地建房不設構造柱。
繼續二三層的砌筑工作。
坡屋頂施工。
安裝藍色屋面瓦。
外墻美化,正面貼瓷磚,其余三面抹灰即可。
安裝好門窗,開始室內的裝修工作。 總造價60萬,主體花費30萬。主體包工不包料238元每平,人工費14萬元;鋼筋花費7萬元左右,地坪花費6萬。紅磚買了8萬匹,0.32元一匹,后來再買4.5萬匹紅磚,0.45元一匹 ,紅磚花費4.58萬元。
看完之后你覺得哪棟建得最值呢? 圖紙之家-專注農村別墅/自建房設計18年,集合國內200余位經驗豐富的設計師,被評為口碑最好的農村建筑設計公司! |

適合農村自建四合院圖片,中式二層四合院別墅設計施工圖紙
占地:232平方米
240平方米新農村漂亮的兄弟雙拼別墅設計圖紙,單戶120平
占地:239平方米
二層中式四合院別墅設計圖,經典、漂亮(全套施工圖)
占地:350平方米
250平方米農村三層別墅設計圖紙及效果圖大全,18.3x15米
占地:247平方米
農村二層帶電梯別墅設計圖,歐式風格,避免老人上下樓的麻煩
占地:179.94平方米
30萬以下的經典二層新農村別墅設計圖紙及效果圖,簡單大氣
占地:170平方米
農村一層四間平房設計圖方案,含外觀圖片,預算10萬
占地:190平方米
農村小別墅一層設計圖紙,全套施工圖兩款戶型可選
占地:多種戶型可選
占地130平方米二層鄉村別墅自建房圖紙設計圖,效果圖好看
占地:131.658平方米
最新潮的90平方米三層房屋設計圖 ,古樸典雅又不失時尚
占地:90平方米
230平方米新農村二層自建別墅設計圖紙帶外觀圖,20X11米
占地:227平方米
農村三層雙拼別墅戶型圖設計圖,整體外觀氣派
占地:220平方米
現代田園風格一層農村別墅設計圖效果圖,帶閣樓設計
占地:220平方米
爆款二層自建房別墅設計圖,不追求奢華,建個溫馨實用的家
占地:100平方米
仿古中式四合院別墅設計戶型圖,外觀圖古典風格
占地:524平方米
面寬14米農村別墅二層別墅戶型設計,經濟實用
占地:107.1平方米
45萬新中式二層雙拼自建房別墅設計圖,平屋頂設計
占地:210平方米
自建房共堂屋雙拼別墅設計圖方案,三層挑空復式戶型
占地:199.5平方米左右
時尚一層別墅圖,一層這樣蓋房最漂亮
占地:160平方米
最漂亮的一層平房圖片,全套設計圖+高清效果圖
占地:145平方米
推薦:10套新農村自建房設計圖,2026年最新設計
閱讀次數:4825737次
100套鄉村別墅圖片大全,2026年最新設計
閱讀次數:2492203次
6款農村蓋一層平房的設計圖,10萬元就能建起來
閱讀次數:1852637次
這11個一層農村自建房別墅火爆了朋友圈!我最喜歡戶型十!你呢
閱讀次數:750268次
農村6萬元建一層小別墅圖,你敢相信嗎
閱讀次數:567686次
農村5萬塊就能自建房,6套普通房子設計圖分享,你沒看錯!
閱讀次數:419410次
8套農村漂亮三間平房圖片,非常適合在農村修建!
閱讀次數:411197次
農村自建房化糞池怎么做?附方案及施工過程
閱讀次數:391783次
農村一層三間平房設計圖,告別土氣養老房,讓人忍不住點贊
閱讀次數:350581次
新農村二層樓房圖片造價12萬,挑一套回家建房吧!
閱讀次數:349126次
