
|
這款三層自建房外觀使用的顏色十分低調,但展現的視覺效果沉穩大方,而且耐看耐臟,占地160㎡,設有3廳8室,帶車庫+涼亭+活動室+套房等特色功能,毛坯房35萬即可建成。
效果圖 戶型簡介 層數:三層 開間:16.5米 進深:11.5米 首層占地面積:160平方米 總建筑面積:421平方米 結構形式:磚混結構 主體造價:35萬 功能設計
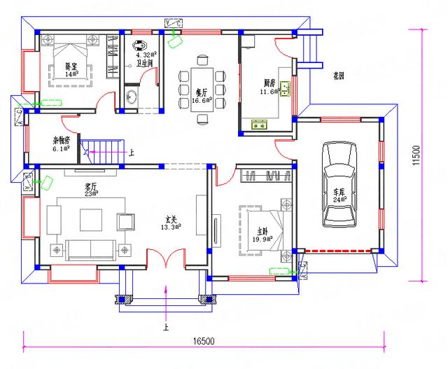
一層平面圖 一層:車庫、玄關、客廳、雜物房、廚房、餐廳、主臥、次臥、公衛
二層平面圖 二層:過廳、客廳(帶陽臺)、主臥(帶陽臺、主衛)、次臥×3、公衛、洗漱區
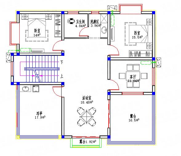
三層平面圖 三層:活動室(帶露臺)、臥室×2、茶廳、公衛、洗漱區、涼亭、露臺 圖紙之家-專注農村別墅/自建房設計18年,集合國內200余位經驗豐富的設計師,被評為口碑最好的農村建筑設計公司! |

經典戶型二層農村小別墅設計圖,造價25萬內
占地:140平方米
四層巴洛克別墅設計圖,旋轉樓梯搭配超大挑空客廳,很有氣勢
占地:146平方米
面寬13米簡簡單單一層農村自建別墅設計圖,方正大氣經濟宜居
占地:126.1平方米
小型四合院二層別墅設計圖方案,對稱設計,頂層大露臺
占地:114平方米
農村兩層帶地下室別墅設計圖,還帶庭院規劃,適合農村建
占地:144.5平方米
大氣自建三層雙拼別墅戶型圖方案,完美的戶型就是它
占地:287平方米
180平方米新農村雙拼戶型別墅房屋設計圖紙帶外觀圖17X11米
占地:180平方米
150平米田園風格二層別墅設計圖紙,沉穩大氣有內涵
占地:150平方米
140平米二層半帶露臺別墅圖片及圖紙,戶型極佳
占地:140平方米
農村新款二層中式別墅設計圖效果圖,帶堂屋設計
占地:144平方米
預算10萬的簡單二層半別墅房屋設計圖,外觀簡單,造價低
占地:90平方米
140平米一層農村自建房設計圖,好看不貴簡約耐看
占地:141.12平方米
二層半大客廳復式別墅房屋設計圖,客廳寬闊明亮
占地:125平方米
歐式豪華三層別墅設計圖,占地面積170平米,高端大氣帶露臺
占地:170平方米
一二層都帶廚房餐廳的獨棟二層別墅設計圖,帶雙廚房
占地:143.68平方米
新款的農村自建房子中式二層四合院別墅設計圖,占地300平左右
占地:304平方米
175平大客廳三層別墅房屋設計圖,含外觀造型現代,美觀
占地:175平方米
新農村一層小別墅設計方案,四臥二廳耐看實用,方便打掃更便捷
占地:153.55平方米
三層帶地下室+旋轉樓梯別墅設計圖紙,復式挑空客廳
占地:多種戶型
三層兩開間小面寬別墅設計圖紙帶外觀效果圖,95平方米
占地:94.61平方米
推薦:10套新農村自建房設計圖,2026年最新設計
閱讀次數:4825737次
100套鄉村別墅圖片大全,2026年最新設計
閱讀次數:2492203次
6款農村蓋一層平房的設計圖,10萬元就能建起來
閱讀次數:1852637次
這11個一層農村自建房別墅火爆了朋友圈!我最喜歡戶型十!你呢
閱讀次數:750268次
農村6萬元建一層小別墅圖,你敢相信嗎
閱讀次數:567686次
農村5萬塊就能自建房,6套普通房子設計圖分享,你沒看錯!
閱讀次數:419410次
8套農村漂亮三間平房圖片,非常適合在農村修建!
閱讀次數:411197次
農村自建房化糞池怎么做?附方案及施工過程
閱讀次數:391783次
農村一層三間平房設計圖,告別土氣養老房,讓人忍不住點贊
閱讀次數:350581次
新農村二層樓房圖片造價12萬,挑一套回家建房吧!
閱讀次數:349126次
