
|
今天要給大家介紹的這款三層農村自建別墅設計圖,是2018較受歡迎的圖紙,25萬3廳5室11×11三層帶鏡像圖,還帶有建成效果圖,戶型設計簡約時尚,主臥帶獨立衛生間,布局流暢合理,一起來看看。 戶型簡介
原設計效果圖 層數:三層 開間:11.06米 進深:10.83米 首層占地面積:108.21平方米 總建筑面積:268.4平方米 結構形式:磚混結構 主體造價:25萬
鏡像圖 建成效果圖
建成效果圖 功能設計
一層平面圖 一層:客廳、臥室、廚房、餐廳、公衛
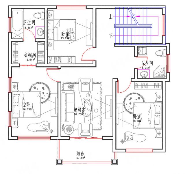
二層平面圖 二層:起居室(帶陽臺)、主臥(帶衣帽間、衛生間)、次臥×2、公衛
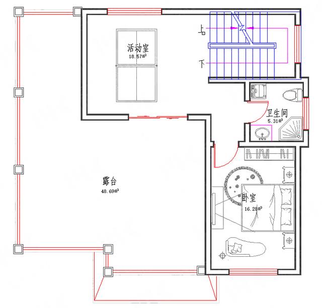
三層平面圖 三層:活動室、臥室、公衛、露臺 圖紙之家-專注農村別墅/自建房設計18年,集合國內200余位經驗豐富的設計師,被評為口碑最好的農村建筑設計公司! |

130平米最新氣派農村四層樓房設計圖,四層樓房圖片
占地:130平方米
鄉村三層別墅施工圖紙帶效果圖,田園別墅設計圖紙推薦
占地:178平方米
四層豪華歐式別墅自建樓房設計圖紙,帶效果圖和全套施工圖
占地:300平方米
預算30萬左右的新農村三層房屋設計圖推薦,含外觀效果圖
占地:117平方米
320平方米高端農村帶車庫四合院別墅設計圖,徽派韻味十足
占地:320.89平方米
大氣的150平方米新中式三層別墅建筑圖及效果圖
占地:150平方米左右
人氣頗高的三層新中式別墅方案,五種戶型,五種尺寸
占地:120-165平方米
農村自建超漂亮中式四合院別墅設計圖,22X25米
占地:473平方米
新中式農村50萬三層別墅款式圖,占地面積160平米左右
占地:150平方米
現代別墅設計圖紙帶效果圖,85平、100平、145平三個戶型方案
占地:多種戶型
140平歐式二層半帶露臺的獨棟別墅圖片,含全套設計圖
占地:140平方米
最美中式農村別墅二層三間的房子圖,帶土灶房,娛樂室,大露臺
占地:180平方米
農村一層四開間自建別墅,美麗住宅如詩如畫里15米乘10米
占地:142平方米
8.5×12米四層歐式房屋設計圖紙,占地100平,落地窗中嵌入了雕花
占地:100平方米
30萬農村小別墅設計圖片,30萬別墅設計戶型推薦
占地:130平方米
七字型一層平房別墅設計圖紙,15X16米
占地:177.9平方米
現代風格建房圖紙二層別墅設計方案,外觀百看不厭
占地:多戶型可選
中式古風別墅設計圖,一層三合院設計,經濟舒適,時尚與傳統的
占地:275.7平方米
大氣自建三層雙拼別墅戶型圖方案,完美的戶型就是它
占地:287平方米
160平方米農村二層四合院別墅設計圖及外觀圖片
占地:158平方米
推薦:10套新農村自建房設計圖,2026年最新設計
閱讀次數:4825737次
100套鄉村別墅圖片大全,2026年最新設計
閱讀次數:2492203次
6款農村蓋一層平房的設計圖,10萬元就能建起來
閱讀次數:1852637次
這11個一層農村自建房別墅火爆了朋友圈!我最喜歡戶型十!你呢
閱讀次數:750268次
農村6萬元建一層小別墅圖,你敢相信嗎
閱讀次數:567686次
農村5萬塊就能自建房,6套普通房子設計圖分享,你沒看錯!
閱讀次數:419410次
8套農村漂亮三間平房圖片,非常適合在農村修建!
閱讀次數:411197次
農村自建房化糞池怎么做?附方案及施工過程
閱讀次數:391783次
農村一層三間平房設計圖,告別土氣養老房,讓人忍不住點贊
閱讀次數:350581次
新農村二層樓房圖片造價12萬,挑一套回家建房吧!
閱讀次數:349126次
