
|
在農村,人人都有自己的宅基地,想怎么建,建什么樣的別墅都可以。就看你自己喜歡什么樣的了,是建一層小別墅,方便一家人生活;還是二層的精致別墅,又或者是三層呢? 風格,樣式自然還是中式優雅更符合我們的審美和宜居了!是雙拼還是獨棟就得看具體的家庭情況了。下面我們就來看看這些房子的戶型匯總吧,看看到底什么才是你真正想要的吧! 一層別墅戶型:挑高門廳加走廊,四間大臥室,兩個衛生間,空間綽綽有余。
別墅編號:MS1701001 占地尺寸:13.5X9.9米 占地面積:143.2平方米 建筑面積:143.2平方米 結構類型:磚混結構 主體造價:12-15萬左右 建筑風格:簡歐風格 一層別墅戶型二:大鐵門,帶院子,三間大臥室,坡屋頂。
別墅編號:MS1801002 占地尺寸:13.64X14.33米 占地面積:125.12平方米 建筑面積:125.12平方米 結構類型:磚混結構 主體造價:12-15萬左右 建筑風格:簡歐風格 二層別墅戶型:進門設有玄關,旋轉樓梯,帶陽臺,優雅的歐式風格別墅!
別墅編號:MS1702034 占地尺寸:10.5X10.7米; 占地面積:107平方米; 建筑面積:214.1平方米; 結構類型:磚混結構; 層高:8.7米; 二層別墅戶型二:新農村別墅,挑高門廳加門廊,帶神位,倉庫,帶兩個露臺
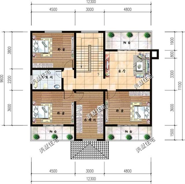
別墅編號:MS1702112 占地尺寸:12.3X11.1米 占地面積:130平方米 建筑面積:295.2平方米 結構類型:框架結構 主體造價:30-36萬左右 三層別墅戶型:大落地窗,大客廳,帶門廳,入戶車庫;衣帽間,大露臺,美式鄉村風格。
雙拼別墅戶型:豪華歐式雙拼,帶倉庫,衣帽間,大陽臺。
獨棟別墅戶型:這是獨棟的4層戶型,挑高門廳走廊,帶入戶車庫,健身房,書房;大陽臺,露臺。
中式別墅戶型:中式經典,帶小院,茶室,書房,陽臺,大露臺。
看完這么多類型的戶型的別墅,你最喜歡哪一款呢?挑一款自己最喜歡就去開工吧! 圖紙之家-專注農村別墅/自建房設計18年,集合國內200余位經驗豐富的設計師,被評為口碑最好的農村建筑設計公司! |

精致典雅的90平和100平方米二層樓房圖紙,藏不住的經典
占地:多種戶型
最新三層農村別墅設計圖紙,推薦農村自建
占地:106平方米
農村160平四間兩層樓房設計圖,全套施工圖+外觀效果圖片
占地:160平方米
造價便宜的二層雙拼自建房設計方圖案,一塊宅基地建兩戶
占地:224平方米
新農村一層小別墅設計方案,四臥二廳耐看實用,方便打掃更便捷
占地:153.55平方米
新農村自建二層樓房戶型設計圖,簡單大氣,外觀漂亮精致
占地:多種戶型
農村小別墅一層設計圖紙,外觀漂亮極了,130和160兩個戶型
占地:多種戶型可選
140平方米新農村復式自建房子,三層別墅建筑圖紙及效果圖
占地:138平方米
農村最好看18萬左右兩層小樓圖,外觀、造型簡潔大方
占地:120平方米
適合7字型宅基地蓋的一層別墅,中式風格設計
占地:163平方米
170平方米新農村現代樓中樓三層別墅設計施工圖紙及效果圖
占地:170平方米
農村二層樓簡單大氣的樓房設計圖紙,帶車庫,帶露臺
占地:150平方米
2026最新款50萬左右農村三層別墅設計圖,客廳中空
占地:160平方米
精致時尚一層雙拼別墅設計圖,造價實惠,起居互不打擾
占地:369.54平方米
五間二層別墅設計圖紙,樓梯設計的無比大氣
占地:300平方米
170平方米農村二層小別墅設計圖及效果圖
占地:170平方米
占地130平三層現代別墅設計圖方案,帶電梯和地下室設計
占地:134.75平方米
80平方米農村四層房屋設計圖紙及效果圖
占地:80平方米
鄉村二層半別墅圖紙設計,歐式風格、錯落有致,150平左右
占地:149.76
簡約L型一層平房自建房設計圖,經濟實用
占地:145.283平方米
推薦:10套新農村自建房設計圖,2026年最新設計
閱讀次數:4825737次
100套鄉村別墅圖片大全,2026年最新設計
閱讀次數:2492203次
6款農村蓋一層平房的設計圖,10萬元就能建起來
閱讀次數:1852637次
這11個一層農村自建房別墅火爆了朋友圈!我最喜歡戶型十!你呢
閱讀次數:750268次
農村6萬元建一層小別墅圖,你敢相信嗎
閱讀次數:567686次
農村5萬塊就能自建房,6套普通房子設計圖分享,你沒看錯!
閱讀次數:419410次
8套農村漂亮三間平房圖片,非常適合在農村修建!
閱讀次數:411197次
農村自建房化糞池怎么做?附方案及施工過程
閱讀次數:391783次
農村一層三間平房設計圖,告別土氣養老房,讓人忍不住點贊
閱讀次數:350581次
新農村二層樓房圖片造價12萬,挑一套回家建房吧!
閱讀次數:349126次
