
|
新農村的自建房是越來越豪華,不只是有福建福清地區的超級別墅群,也有各地的造型別致的農村別墅群,但是我們也不能忘了,畢竟現在的貧富差距還比較大,很多家庭有自建房的打算,但是面對動輒三五十萬的造價,他們還是心有余而不足,這時,就需要我們給出一些相對簡單的農村自建房,雖然說簡單,可一點都不影響他的精巧和別致,讓人在省錢的前提下完成住新房的夢想。 本期,我們就推薦三套簡單施工的農村自建房,錢包不富裕照樣蓋新房 第一套:
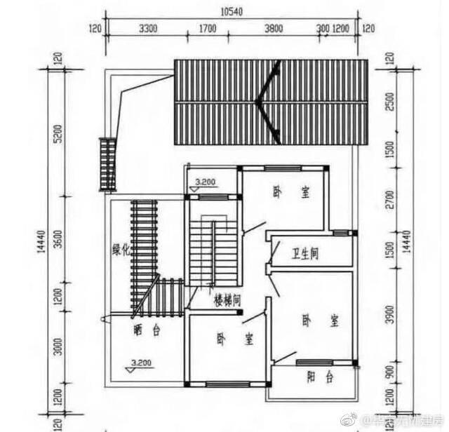
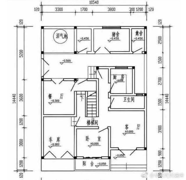
絕對樸實的農村小院,還有現代別墅的陽臺和露臺,設計尺寸:開間10.5米,進深14.4米,設計功能:一層設計有客廳、臥室、廚房、餐廳和車庫;二層設計有三間臥室,陽臺和露臺;
點評:除了基本的生活功能區外,還有后院,后院有沼氣池,非常的節能環保,還有豬舍和雞舍,很多農村都是老人家在居往,他們喜歡養些雞鴨什么,這樣設計非常方便合理;二樓的露臺可以設計涼亭,當曬臺,都非常不錯; 第二套:
北方常見的平屋頂自建房,外觀簡單大氣,外墻采用灰色,結構簡單易施工,設計尺寸:開間12米,進深8米,建筑占地面積90平米,總建筑面積194平米,設計功能:一層:玄關、客廳、廚房、餐廳、臥室、公衛;二層:活動區、臥室×3、陽臺、書房、洗手間、公衛
點評:這款自建房設計圖采用平屋頂,使其擁有足夠大的屋頂空間,喜歡花草的朋友可在屋頂打造一個空中花園,增加生活的樂趣。本戶型一層占地面積僅有90㎡,室內經過優化設計,流暢的布局提高空間利用率; 第三套:
跟第一套類似,同樣設計小院,設計尺寸:開間11.8米,進深13.7米,設計功能:一層設計有前院、后院、堂屋、臥室、廚房和餐廳,而且有多個儲物間、雜物間和農具間,這才是農村真正需要的,二層設計有三個臥室,一個起居室;
點評:堂屋是很多地方必備的,廚房加土灶也非常容易,前院可以種點花草養點魚,后院可以養點雞鴨養點豬,還能種點菜。開放的后門設計寬敞,足夠車輛進出。 這么精致的農村小樓怎么能不讓人喜歡呢。 圖紙之家-專注農村別墅/自建房設計18年,集合國內200余位經驗豐富的設計師,被評為口碑最好的農村建筑設計公司! |

二層精美偏法式風格別墅設計圖,不但顏值高,品質還高
占地:154.17平方米
二層小型簡單四合院設計圖,戶型方正,左右對稱,傳統文化的傳
占地:470平方米
最美建筑四合院別墅設計方案,大氣經典,開間19米
占地:168.61平方米
簡簡單單一層農村自建別墅方案,布局緊湊又不擁擠
占地:133.55平方米
高端三層別墅設計圖紙,客廳中空,帶地下室,設置多個套間
占地:220平方米
新農村一層小別墅設計方案,四臥二廳耐看實用,方便打掃更便捷
占地:153.55平方米
南方新農村三層別墅設計圖紙,含效果圖,帶車庫
占地:120平方米
三層帶車庫樓中樓建房別墅圖紙,占地130平米左右,戶型室內布局
占地:130平方米
140平方米三層豪華新中式別墅設計圖紙帶外觀效果圖
占地:141.35平方米
鄉下一層門面二層別墅設計圖紙,帶門面的自建房方案
占地:198.4平方米
雅致的鄉下二層蓋別墅設計圖紙,造價35萬左右
占地:178平方米
徽派120平新農村住宅設計方案,帶外觀效果圖
占地:120平方米
100平方米新農村住宅二層小別墅設計CAD圖紙及效果圖,10x10米
占地:96平方米
經濟型實用歐式一層小樓房別墅平房設計圖,11X10米
占地:103平方米
雙拼小別墅設計圖紙(含效果圖),二層別墅設計方案精選
占地:130平方米
140平一層平房別墅設計圖,兩客廳兩衛四臥室
占地:140平方米
左右對稱的歐式高端三層別墅設計圖,外觀氣派、豪華
占地:200平方米
簡約精致的二層房子設計圖,農村自建經濟實用
占地:89.76平方米
農村兄弟雙拼二層四合院別墅設計圖,戶型左右對稱
占地:430平方米
小宅基地自建房設計圖,占地不到90平三層別墅圖紙
占地:87平方米左右
推薦:10套新農村自建房設計圖,2026年最新設計
閱讀次數:4825737次
100套鄉村別墅圖片大全,2026年最新設計
閱讀次數:2492203次
6款農村蓋一層平房的設計圖,10萬元就能建起來
閱讀次數:1852637次
這11個一層農村自建房別墅火爆了朋友圈!我最喜歡戶型十!你呢
閱讀次數:750268次
農村6萬元建一層小別墅圖,你敢相信嗎
閱讀次數:567686次
農村5萬塊就能自建房,6套普通房子設計圖分享,你沒看錯!
閱讀次數:419410次
8套農村漂亮三間平房圖片,非常適合在農村修建!
閱讀次數:411197次
農村自建房化糞池怎么做?附方案及施工過程
閱讀次數:391783次
農村一層三間平房設計圖,告別土氣養老房,讓人忍不住點贊
閱讀次數:350581次
新農村二層樓房圖片造價12萬,挑一套回家建房吧!
閱讀次數:349126次
