
|
現在是越來越流行回農村老家自己建別墅了,這主要還是因為這些農村出身的朋友普遍有個“留根”情結。回老家蓋房不僅是為父母養老,等到以后自己老了也能作為自己的養老房。生命既然是從這里開始的,那么就從這里結束,你說呢? 這不,有位網友的新房剛建好就來投稿給大家曬曬了,這套農村小別墅,建得如何呢?
外觀是簡歐式風格的小洋樓,剛建好就有很多村民上門參觀,都參考了這套外觀來自建。 這種風格在農村很是流行,簡約的外觀,加上歐式構件裝飾,容易施工,造價也不高,體現出農村富足閑適的生活狀態。
外墻沒有采用現在流行的真石漆,而是小規格的瓷磚裝飾,淺色的瓷磚搭配橙黃色的屋面瓦,明媚靚麗的色調,又給人一種的明朗的好印象。
其實最讓人羨慕的不是這三層的小別墅,而是這大院子,庭院水泥硬化,兩邊栽種綠植,院旁還有一個大菜園子。這樣的生活,難道你不羨慕嗎? 一層入戶處設置了神龕,方便農村祭祀所用。主臥連接衛生間,可以作為老人房實用,方便起夜。廚房考慮廣大農村地區的使用習慣,特別設有柴火廚房。
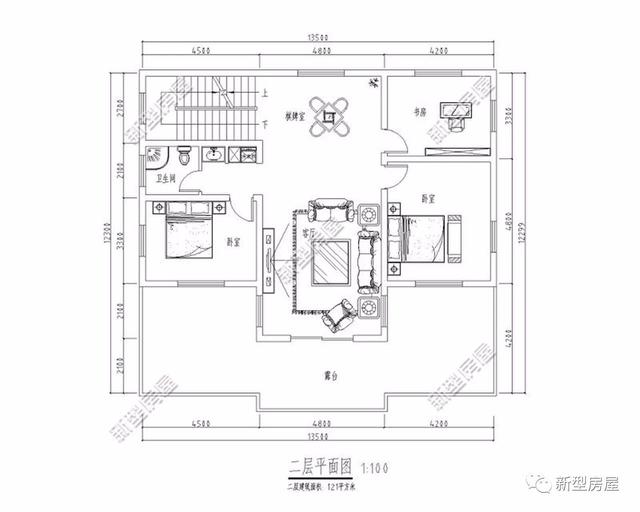
二三層布局相同,設置客廳、棋牌室、2個臥室、公衛,能滿足大部分農村家庭的所需。
此房建筑面積450平,毛坯花費40萬,加上庭院的綠化和其他雜項一共花費50萬。室內裝修就不說了,沒有太大的參考意義。 這樣的房子很簡單,也許根本稱不上“別墅”。但每當你放眼望去,沒有了城市的高樓和大廈,沒有了熙攘的人群,只有一片的綠意,擁抱自然,生活在這里,也許也是一種幸福,你說呢? 圖紙之家-專注農村別墅/自建房設計18年,集合國內200余位經驗豐富的設計師,被評為口碑最好的農村建筑設計公司! |

氣派的帶旋轉樓梯三層別墅房屋設計圖,戶型很好
占地:150平方米
120平方房子設計圖帶效果圖,農村自建房戶型推薦
占地:120平方米
小戶型兄弟雙拼別墅房屋設計圖,帶外觀效果圖
占地:150平方米
2026新款四層樓房設計圖,占地120平方米左右,客廳中空
占地:120平方米
200平方米農村二層中式四合院設計圖,含外觀圖片
占地:200平方米
2026新中式農村三層別墅圖,外觀漂亮,看一眼就愛上
占地:240平方米
三層帶地下室+旋轉樓梯別墅設計圖紙,復式挑空客廳
占地:多種戶型
農村15萬元二層小樓圖,經濟實用小別墅設計圖
占地:105平方米
160平方農村三層別墅CAD設計圖紙,含外觀圖片效果圖
占地:156平方米
300平四層別墅房屋設計圖,含外觀效果圖,大面積、多臥室
占地:261平方米
135平方米新農村三層別墅設計圖紙,外觀效果圖很漂亮
占地:134平方米
農村三層自建房子圖紙設計方案,開間11米左右
占地:151.96平方米
新農村兄弟合建三層雙拼房屋設計方案圖,開間18米有全套圖紙
占地:237.21平方米
農村二層半別墅設計圖,簡單實用,造價低
占地:140平方米
農村二層半樓房效果圖及全套設計圖紙,自建房簡單實用
占地:121平方米
鄉村一層房屋設計圖,養老還是一層好,多臥室的設計
占地:195平方米
大開間小進深的一層別墅設計圖,進深僅8.7米,獨立餐廚照樣美觀
占地:130.32平方米
農村二層小洋樓設計圖,帶外觀效果圖,外觀新穎,漂亮
占地:130平方米
時尚創意型二層小別墅設計圖,占地面積110平方米,外觀清新典雅
占地:110平方米
推薦:10套新農村自建房設計圖,2026年最新設計
閱讀次數:4825737次
100套鄉村別墅圖片大全,2026年最新設計
閱讀次數:2492203次
6款農村蓋一層平房的設計圖,10萬元就能建起來
閱讀次數:1852637次
這11個一層農村自建房別墅火爆了朋友圈!我最喜歡戶型十!你呢
閱讀次數:750268次
農村6萬元建一層小別墅圖,你敢相信嗎
閱讀次數:567686次
農村5萬塊就能自建房,6套普通房子設計圖分享,你沒看錯!
閱讀次數:419410次
8套農村漂亮三間平房圖片,非常適合在農村修建!
閱讀次數:411197次
農村自建房化糞池怎么做?附方案及施工過程
閱讀次數:391783次
農村一層三間平房設計圖,告別土氣養老房,讓人忍不住點贊
閱讀次數:350581次
新農村二層樓房圖片造價12萬,挑一套回家建房吧!
閱讀次數:349126次
