
|
農村宅基地的面積有小型化的趨勢,面寬小進深大,尤其是臨街的農村別墅。而且這種情況,不光出現在南方農村,東南亞國家也是一樣。這種情況下,只能多建幾層,才能滿足一家人的生活休息需要。就像今天這棟越南自建房屋設計,就是4米多一點寬,建了5層。但是追求品質的業主要求了挑空客廳,足夠的采光,也要求了電梯,具體布局見最下方平面圖。 房屋外景:
內部裝修-客廳:
內部裝修-一樓電梯和樓梯:
內部裝修-衣帽間:
內部裝修-餐廳和廚房:
內部裝修-樓梯細節:玻璃圍擋,懸空踏步,都是以為采光需求。
建筑信息如下,向建筑師,設計結構,攝影師致謝。Construction information:
平面圖: 一樓有停車位,電梯樓梯洗手間,以及最里側的客廳,或者叫做堂屋。在設計這種小面寬,大進深農村別墅的時候,有一個點需要注意。那就是樓梯最好沿進深方向單跑,而不是傳統的雙跑。而且如果有電梯,最好與樓梯相對,這樣能讓其他空間布局更加合理。
二樓為主樓層,挑空客廳。
三樓為挑空夾層,餐廳和廚房為主。
四樓及五樓為休息區,臥室為主,5樓有露臺。
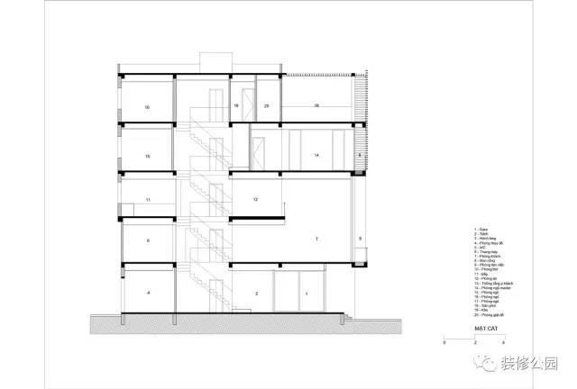
剖面圖:
圖紙之家-專注農村別墅/自建房設計18年,集合國內200余位經驗豐富的設計師,被評為口碑最好的農村建筑設計公司! |

110平方米農村三層自建房設計圖紙帶外觀圖
占地:110平方米
農村三層雙拼別墅設計圖,兄弟建房開間20米,單戶80平方
占地:160平方米
140平二層帶閣樓別墅設計方案圖,外觀圖片色彩明快
占地:140平方米
簡單時尚二層住宅設計圖紙,簡單的設計,不平凡的視覺感受
占地:110平方米
全網都在抄的二層別墅!爆款12米面寬設計戶型太實用
占地:139.51平方米
歐式小別墅設計圖紙帶效果圖,二層歐式小別墅設計方案展示
占地:166平方米
14米×10米農村二層小別墅自建房設計圖,外觀設計時尚美觀
占地:125平方米
15米面寬田園風一層別墅!戶型新穎太吸睛,看過都想建
占地:141.13平方米
二層農村房屋設計圖紙,帶效果圖和全套施工方案圖
占地:多種戶型
最新潮的90平方米三層房屋設計圖 ,古樸典雅又不失時尚
占地:90平方米
新中式高端豪宅三層別墅自建房設計圖,大戶型經典
占地:270平方米左右
最新款二層半別墅圖片,占地115平米左右,帶地下室,帶露臺
占地:115平方米
帶柴火房農村一層自建房設計圖,戶型布局接地氣
占地:126.29平方米
新款鄉村二層半別墅設計圖紙帶效果圖,三層別墅外觀圖片大全
占地:108.795平方米
小戶型現代新農村三層房屋設計建筑圖及效果圖
占地:108平方米
110平方米農村三層復式房屋施工圖,通透時尚,低調又奢華
占地:107.98平方米
高端二層新中式四合院別墅設計圖,含全套CAD施工圖
占地:217平方米
平屋頂二層自建房帶商鋪別墅設計圖紙及外觀圖
占地:225平方米
兄弟四間三層雙拼別墅設計圖,造價40萬左右
占地:210平方米
二層帶地下室樓房設計方案,效果圖+全套施工圖
占地:160平方米
推薦:10套新農村自建房設計圖,2026年最新設計
閱讀次數:4825737次
100套鄉村別墅圖片大全,2026年最新設計
閱讀次數:2492203次
6款農村蓋一層平房的設計圖,10萬元就能建起來
閱讀次數:1852637次
這11個一層農村自建房別墅火爆了朋友圈!我最喜歡戶型十!你呢
閱讀次數:750268次
農村6萬元建一層小別墅圖,你敢相信嗎
閱讀次數:567686次
農村5萬塊就能自建房,6套普通房子設計圖分享,你沒看錯!
閱讀次數:419410次
8套農村漂亮三間平房圖片,非常適合在農村修建!
閱讀次數:411197次
農村自建房化糞池怎么做?附方案及施工過程
閱讀次數:391783次
農村一層三間平房設計圖,告別土氣養老房,讓人忍不住點贊
閱讀次數:350581次
新農村二層樓房圖片造價12萬,挑一套回家建房吧!
閱讀次數:349126次
