
|
今天分享2款二層鄉村別墅設計圖,分別為歐式和新中式別墅戶型,歐式別墅和中式別墅在農村是比較受歡迎的房屋類型。下面這2套別墅都能體現現代農村房屋的變化,戶型非常漂亮時尚,你更喜歡哪一款呢? 歐式別墅戶型:
本戶型為二層歐式別墅,占地120平方米左右,戶型設計非常時尚漂亮,藍色屋面以及3種不同顏色裝飾外墻,色彩豐富但又不顯得冗余,搭配協調美觀。房屋左側的外走廊進去就是雜物間,便于走動,走廊處是孩子們玩耍的好地方。臥室窗戶為飄窗設計,使住戶擁有更多的使用空間。該自建房戶型非常適合現代農村新型房屋建造! 開間:12.3米,進深:10.5米,占地面積:122.29平方米,總建筑面積:238.54平方米,結構形式:磚混結構;主體造價:22-28萬元 平面圖展示:
一層平面圖 一層:門廳、客廳、餐廳、廚房、臥室(帶衛生間)、雜物房、走廊、衛生間。 二層:書房(附帶露臺)、主臥室(帶衣帽間、陽臺、內衛)、臥室、衛生間。 新中式別墅戶型:
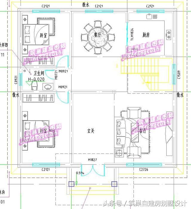
該戶型為新中式別墅,占地140平方米左右,帶有大露臺,平屋頂設計,可在屋頂上放置太陽能等設備。戶型為傳統與現代元素相結合設計,窗戶設計美觀,室內采光和通風極好。現代農村自建房的首選戶型! 開間:11.8米,進深:11.8米,占地面積:144.96,總建筑面積:264.16平方米,結構形式:磚混結構;主體造價:21-30萬元 平面圖展示:
一層平面圖 一層:玄關、客廳、餐廳、廚房、臥室x2、衛生間。 二層:臥室(附帶露臺)、臥室x3、小客廳、衛生間。 圖紙之家-專注農村別墅/自建房設計18年,集合國內200余位經驗豐富的設計師,被評為口碑最好的農村建筑設計公司! |

20萬左右農村雙拼別墅住宅設計圖,簡單小戶型設計
占地:120平方米
超實用超現代兩層自建小樓圖,純粹極簡風格
占地:184平方米左右
農村一層中式三合院別墅設計圖紙,外觀漂亮極了
占地:195平方米
帶架空層的三層農村別墅設計火了!雨季不怕返潮
占地:147.15平方米
320平方米高端農村帶車庫四合院別墅設計圖,徽派韻味十足
占地:320.89平方米
新農村三層房屋住宅設計圖紙大全(含效果圖)
占地:122平方米
140平方米新農村四層房屋設計圖紙,農村自建推薦
占地:140平方米
8×12米農村三層別墅自建房設計圖,小開間精選方案
占地:103平方米
二層別墅設計圖紙及效果圖,占地200平米,外觀精致優雅,小有情
占地:200平方米
新中式三層別墅,旋轉樓梯+挑空客廳,高級感拉滿
占地:125平方米
農村一層中式三合院別墅設計圖,戶型經典實用,19米乘15米
占地:243.21平方米
130平米左右三層農村小別墅,經典永不過時三層小洋樓
占地:130平方米
農村中式一層合院別墅設計圖,帶小院子規劃設計
占地:202平方米左右
面寬13米二層鄉村自建別墅戶型圖,帶堂屋和露臺
占地:135.47平方米
帶院子的一層農村別墅設計圖,造價不高,養老房首選!
占地:144.819平方米
13×10米現代簡約風格三層別墅圖,坡屋頂和平屋頂完美結合
占地:120平方米
獨棟三層樓房設計圖紙及效果圖,農村蓋房推薦
占地:125平方米
帶閣樓兩層半雙拼別墅房屋設計圖,帶外觀效果圖
占地:240平方米
120平方米帶地下室三層復式別墅戶型圖,現代風格
占地:120.78平方米左
農村三層復式自建樓房設計圖,外觀圖大氣
占地:130平方米
推薦:10套新農村自建房設計圖,2026年最新設計
閱讀次數:4825737次
100套鄉村別墅圖片大全,2026年最新設計
閱讀次數:2492203次
6款農村蓋一層平房的設計圖,10萬元就能建起來
閱讀次數:1852637次
這11個一層農村自建房別墅火爆了朋友圈!我最喜歡戶型十!你呢
閱讀次數:750268次
農村6萬元建一層小別墅圖,你敢相信嗎
閱讀次數:567686次
農村5萬塊就能自建房,6套普通房子設計圖分享,你沒看錯!
閱讀次數:419410次
8套農村漂亮三間平房圖片,非常適合在農村修建!
閱讀次數:411197次
農村自建房化糞池怎么做?附方案及施工過程
閱讀次數:391783次
農村一層三間平房設計圖,告別土氣養老房,讓人忍不住點贊
閱讀次數:350581次
新農村二層樓房圖片造價12萬,挑一套回家建房吧!
閱讀次數:349126次
