
|
今天分享1款最新設計占地100平方米左右的三層農村自建房別墅設計圖,帶有高清效果圖,房屋外觀采用分段式顏色裝飾外觀,層次分明,有線條感。一層外墻采用彩色瓷磚鋪貼,不顯得雜亂無章,反而增添了別墅的復古時尚美。內部布局緊湊合理,非常適合宅基地面積小的家庭。
別墅戶型基本信息 層數:三層 結構形式:磚混結構 主體造價:18-24萬 開間:9.6米 進深:9.8米 占地面積:96.14平方米 總建筑面積:243.54平方米 平面圖展示:
一 層:客廳、餐廳、廚房、臥室、衛生間
二 層:客廳(帶陽臺)、臥室×3、衛生間 三 層:臥室×2、衛生間、露臺 圖紙之家-專注農村別墅/自建房設計18年,集合國內200余位經驗豐富的設計師,被評為口碑最好的農村建筑設計公司! |

高端豪華三層別墅住宅設計方案圖,歐式外觀風格
占地:170平方米
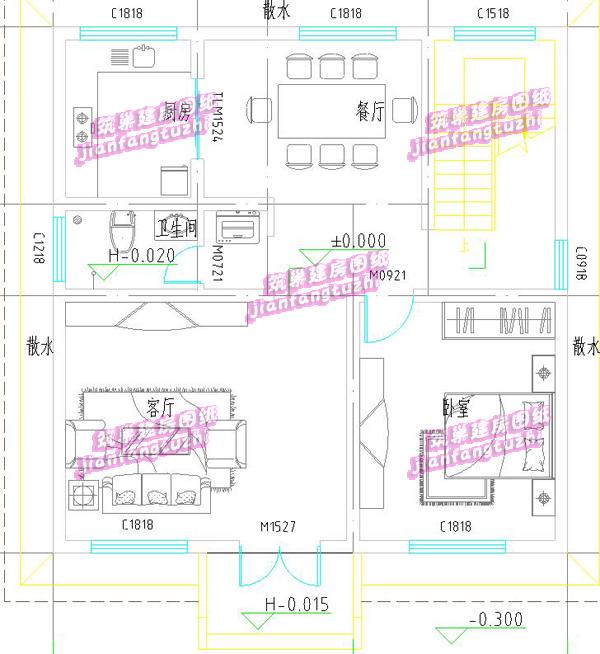
155平方米二層別墅房屋設計圖,帶獨立車庫
占地:155平方米
鄉村兄弟小戶型雙拼一層房屋設計圖,雙拼別墅格局精煉,實用性
占地:160平方米
豪華復式三層別墅設計圖紙,效果圖+建筑施工圖+結構施工圖
占地:126平方米
帶柴火房農村一層自建房設計圖,戶型布局接地氣
占地:126.29平方米
占地90平新中式經濟二層小別墅自建房設計圖,僅15萬
占地:89.3平方米
三層新農村別墅設計圖片及全套圖紙,外形對稱,帶露臺,這個戶
占地:160平方米
三層帶車庫農村別墅設計圖紙(含外觀效果圖)
占地:147.7平方米
農村一層7字型平房別墅設計圖,“L”自行戶型,外觀簡約低調
占地:213.39平方米
新中式風格二層住宅設計圖,農村自建房不土氣
占地:144.5平方米
新中式小戶型二層別墅效果圖及全套施工設計圖,造價經濟實惠
占地:108平方米
鄉村高檔四層別墅樓設計圖,二三層復式挑空客廳
占地:148.992平方米
16×12米二層歐式帶車庫農村小別墅,既舒適又美觀
占地:180平方米
2026帶車庫三層雙拼別墅房屋設計圖,配色淡雅低調
占地:224平方米
300平方二層別墅四合院設計圖紙方案(效果圖+施工圖)
占地:332平方米
三層奢華歐式別墅圖片及全套設計圖,帶地下室和車庫
占地:208平方米左右
30萬預算三層別墅設計圖紙及效果圖,新農村自建推薦
占地:110平方米
新中式120平米農村20萬元二層小樓圖,外觀柔和而雅致
占地:120平方米
農村一層大別墅施工圖,18米乘12米,讓生活充滿儀式感
占地:216平方米
小面寬大進深三層別墅圖紙設計,戶型非常實用經典
占地:171.39平方米
推薦:10套新農村自建房設計圖,2026年最新設計
閱讀次數:4825737次
100套鄉村別墅圖片大全,2026年最新設計
閱讀次數:2492203次
6款農村蓋一層平房的設計圖,10萬元就能建起來
閱讀次數:1852637次
這11個一層農村自建房別墅火爆了朋友圈!我最喜歡戶型十!你呢
閱讀次數:750268次
農村6萬元建一層小別墅圖,你敢相信嗎
閱讀次數:567686次
農村5萬塊就能自建房,6套普通房子設計圖分享,你沒看錯!
閱讀次數:419410次
8套農村漂亮三間平房圖片,非常適合在農村修建!
閱讀次數:411197次
農村自建房化糞池怎么做?附方案及施工過程
閱讀次數:391783次
農村一層三間平房設計圖,告別土氣養老房,讓人忍不住點贊
閱讀次數:350581次
新農村二層樓房圖片造價12萬,挑一套回家建房吧!
閱讀次數:349126次
