
|
這款40萬2廳7室12×13帶健身房+套房三層農村自建房全套設計圖外觀設計非常大氣,外墻采用黃色為主色調,溫馨亮眼,方形與弧形線條搭配得當,多面體結構設計也很特別,有門廊、陽臺、露臺、落地窗、健身房、主臥套間,整體布局流暢實用。
效果圖 圖紙詳細介紹 層數:三層 開間:11.7米 進深:12.9米 首層占地面積:145.89平方米 總建筑面積:395.47平方米 結構形式:框架結構 主體造價:40萬 設計功能
一層平面圖 一層:過廳、客廳、廚房、餐廳、公衛、臥室(帶主衛)、衣帽間、臥室、
二層平面圖 二層:起居室(帶陽臺)、臥室(帶衣帽間)、臥室(帶主衛、衣帽間)、臥室、公衛
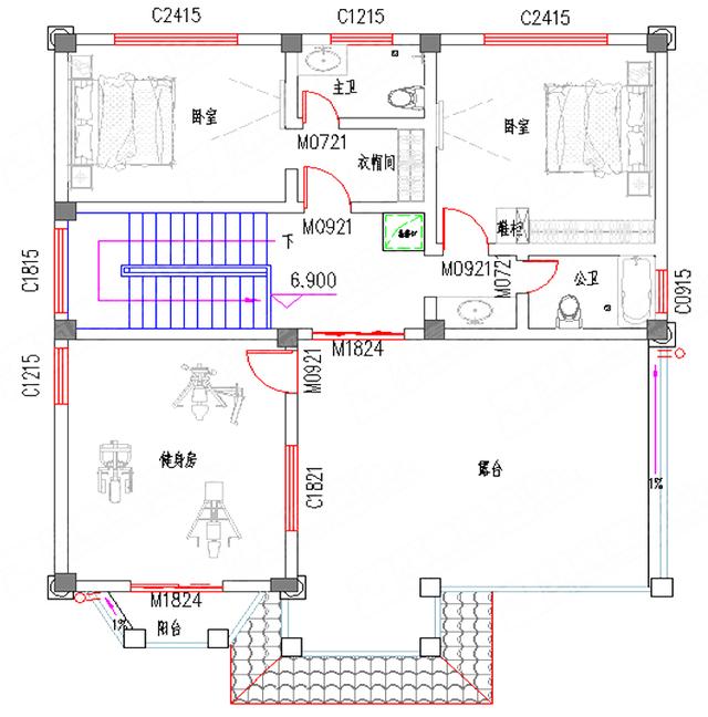
三層平面圖 三層:臥室(帶主衛、衣帽間)、臥室、健身房(陽臺)、公衛 其他別墅圖紙效果圖展示:
1
2
3
4
5 圖紙之家-專注農村別墅/自建房設計18年,集合國內200余位經驗豐富的設計師,被評為口碑最好的農村建筑設計公司! |

三層新農村住宅設計圖及效果圖,三層樓房設計圖展示
占地:140平方米
新農村三層豪華歐式別墅,復式高端自建房設計圖紙及效果圖
占地:多種戶型
農村一層平房設計圖,人字坡戶型簡單大方,養老自住都不錯
占地:139.2平方米
面寬不到8米的農村二層半別墅建筑圖紙及效果圖
占地:96平方米左右
二層新中式小別墅設計圖紙,舒適實用,16米乘12米
占地:189.88平方米
農村別墅220-240平米的雙拼自建房設計圖,屋頂帶老虎窗
占地:220平方米
110平米一層小別墅設計方案,布局四室兩廳一廚兩衛
占地:110.5平方米
三層兄弟雙拼別墅設計圖,外觀大氣漂亮,顏色搭配協調,一層為
占地:270平方米
適合小面寬宅基地的兩開間別墅設計圖,8.5米乘13.5米
占地:107.66平方米
歐式兩層別墅設計圖及歐式效果圖,造價25萬左右
占地:150平方米
三層帶地下室+旋轉樓梯別墅設計圖紙,復式挑空客廳
占地:多種戶型
180平方米農村二層別墅四合院建筑設計圖紙
占地:181平方米
獨棟兩層四開間房子施工設計圖紙及效果圖片,大氣時尚
占地:170平方米
經濟、不張揚!簡單二層別墅設計圖,農村建房直接抄作業
占地:198.58平方米
仿古中式三合院設計圖紙,帶堂屋,適合農村自建
占地:173平方米
170平米自建三層房屋別墅設計圖紙及效果圖
占地:170平米
全新農村簡歐風格三層房屋別墅效果圖,110和210兩個戶型,帶電梯
占地:多種戶型
進深14米的二層小別墅設計圖,農村自建房好方案
占地:144平方米左右
14x11米一層平房戶型設計圖,帶前后門設計,好看不貴還實用!
占地:143.59平方米
鄉村高檔四層豪華別墅自建房設計圖,一層不帶餐廳廚房戶型
占地:147平方米
推薦:10套新農村自建房設計圖,2026年最新設計
閱讀次數:4825737次
100套鄉村別墅圖片大全,2026年最新設計
閱讀次數:2492203次
6款農村蓋一層平房的設計圖,10萬元就能建起來
閱讀次數:1852637次
這11個一層農村自建房別墅火爆了朋友圈!我最喜歡戶型十!你呢
閱讀次數:750268次
農村6萬元建一層小別墅圖,你敢相信嗎
閱讀次數:567686次
農村5萬塊就能自建房,6套普通房子設計圖分享,你沒看錯!
閱讀次數:419410次
8套農村漂亮三間平房圖片,非常適合在農村修建!
閱讀次數:411197次
農村自建房化糞池怎么做?附方案及施工過程
閱讀次數:391783次
農村一層三間平房設計圖,告別土氣養老房,讓人忍不住點贊
閱讀次數:350581次
新農村二層樓房圖片造價12萬,挑一套回家建房吧!
閱讀次數:349126次
