
|
現在農村新建房屋,都想建得時尚、洋氣一些,而且現在農村房屋實行規劃建設,不再像以前那樣房屋東一幢、西一幢,顯得很凌亂;內部結構也不是千篇一律,中間是大堂屋,兩邊是對稱的房間,缺乏美觀和實用性。 很多人都希望自家的房屋能夠有不同于別人之處,可是光有想法,沒有設計圖,一切都是海市蜃樓 ,所以農村別墅設計是極為重要。 今天小編就分享一款經典又洋氣的農村自建別墅戶型,希望大家喜歡~
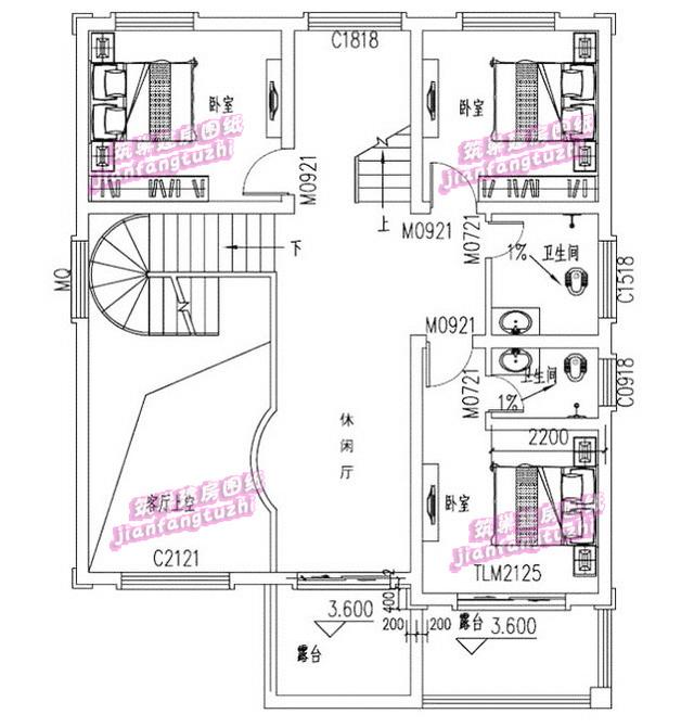
戶型信息介紹: 占地面積:10.16m*13.16m,一層占地130平左右 建筑層高:三層;建筑高度:12.60米(含屋頂); 平面圖展示:
一層:客廳、餐廳、廚房、臥室x2、衛生間、地面陽臺;
二層:客廳上空、休閑廳、主臥(帶衛生間)、臥室x2、衛生間、露臺x2;
三層:休閑廳、臥室x3、衛生間、大露臺;
圖紙之家-專注農村別墅/自建房設計18年,集合國內200余位經驗豐富的設計師,被評為口碑最好的農村建筑設計公司! |

新中式二層雙拼樓房設計圖,單戶面積100平米左右,實用美觀
占地:200平方米
210平左右三層(兩層半)雙拼新農村別墅設計圖紙及外觀效果圖
占地:206.712平方米
農村25萬別墅款式二層自建房設計圖,外觀圖時尚
占地:115平方米
農村蓋平房設計大全圖,鄉下建房一層戶型圖及效果圖
占地:160平方米
農村二層半雙拼別墅設計圖,客廳中空,帶大露臺
占地:270平方米
160-170平方米二層自建別墅設計CAD圖紙帶效果圖,田園風
占地:167平方米左右
南方新農村三層別墅設計圖紙,含效果圖,帶車庫
占地:120平方米
農村一層雙拼別墅設計方案,豐富的室內空間配置,滿足您的生活
占地:358.46平方米
小戶型三層別墅設計圖,戶型經典,外觀精致、美觀
占地:95平方米
最新12x9米一層平房別墅設計圖,好看不貴居住舒適!
占地:108平方米
農村最好看兩層小樓圖及全套CAD施工圖紙,新中式風格,簡潔大氣
占地:150平方米
雙拼豪華高端三層別墅設計圖,外觀效果圖大氣
占地:300平方米
農村二層住宅別墅設計圖,貼心實用,12.8米乘14.5米
占地:156.16平方米
2026新款新式農村50萬三層別墅圖片,帶地下室,美觀大氣
占地:130平方米左右
2026新款農村三層雙拼自建房設計圖,占地150平米左右
占地:150平方米
歐式兩層別墅設計圖及歐式效果圖,造價25萬左右
占地:150平方米
中式三層新農村房子別墅設計圖,看了那么久,還是中式最有韻味
占地:97.2平方米
鄉村最美三層別墅設計圖自建房戶型,外觀圖精致漂亮
占地:134平方米
時尚創意型二層小別墅設計圖,占地面積110平方米,外觀清新典雅
占地:110平方米
鄉村中式四合院二層別墅設計圖,中式韻味十足
占地:223平方米左右
推薦:10套新農村自建房設計圖,2026年最新設計
閱讀次數:4825737次
100套鄉村別墅圖片大全,2026年最新設計
閱讀次數:2492203次
6款農村蓋一層平房的設計圖,10萬元就能建起來
閱讀次數:1852637次
這11個一層農村自建房別墅火爆了朋友圈!我最喜歡戶型十!你呢
閱讀次數:750268次
農村6萬元建一層小別墅圖,你敢相信嗎
閱讀次數:567686次
農村5萬塊就能自建房,6套普通房子設計圖分享,你沒看錯!
閱讀次數:419410次
8套農村漂亮三間平房圖片,非常適合在農村修建!
閱讀次數:411197次
農村自建房化糞池怎么做?附方案及施工過程
閱讀次數:391783次
農村一層三間平房設計圖,告別土氣養老房,讓人忍不住點贊
閱讀次數:350581次
新農村二層樓房圖片造價12萬,挑一套回家建房吧!
閱讀次數:349126次
