
|
這套四層別墅設計圖占地約100㎡,主體造價40萬,共設有4廳6室,帶佛堂、休閑區等特色功能,整體設計簡約大方,適合農村建房。
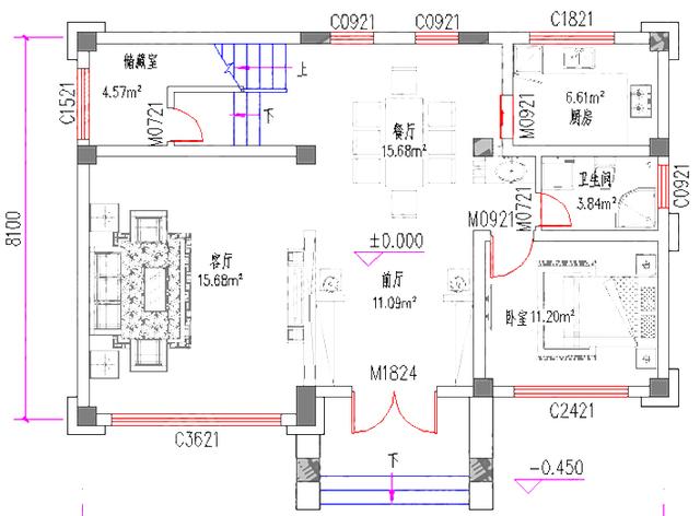
層數:四層 開間:12.3米 進深:8.1米 首層占地面積:100.08㎡ 總建筑面積:375.58㎡ 結構形式:框架結構 主體造價:40萬 功能設計
一層平面圖 一層:前廳、客廳、廚房、餐廳、臥室、公衛、儲藏室
二層平面圖 二層:小廳(帶陽臺)、休閑區、臥室×2、公衛
三層平面圖 三層:小廳、臥室×2、更衣室、公衛
四層平面圖 四層:休閑區、臥室(帶陽臺)、佛堂、露臺 圖紙之家-專注農村別墅/自建房設計18年,集合國內200余位經驗豐富的設計師,被評為口碑最好的農村建筑設計公司! |

農村二層半樓房效果圖及全套設計圖紙,自建房簡單實用
占地:121平方米
140-150平方米新農村別墅設計圖紙,帶外觀效果圖,復式戶型
占地:146平方米
農村一層帶小院房屋設計圖,帶院子一層自建房別墅戶型圖
占地:161.16平方米
新中式農村兄弟合建三層雙拼別墅全套設計圖紙,3款戶型方案
占地:多種戶型
50萬左右農村豪華二層別墅設計圖 ,大廳中空,外觀精美
占地:210平方米
歐式二層小別墅設計圖紙(含外觀效果圖)
占地:141平方米
新中式農村三層樓房設計圖,帶地下室,主體建筑面積110平米
占地:110平方米
復式200平米三層樓房設計圖紙,大露臺還有健身房和書房
占地:200平方米
占地70平方米的三層獨棟別墅設計圖,小戶型自建房屋效果圖
占地:70平方米左右
90平小戶型四層房屋設計圖,農村自建別墅推薦
占地:90平方米
三層新中式別墅建筑設計圖紙及圖片,11.66m*9.76m,典雅耐看
占地:114平方米
豪華歐式三層別墅住宅設計圖紙,占地面積150平方米
占地:150平方米
歐式三層雙拼別墅設計圖,精致大氣布局實用,兄弟建房上上之選
占地:234平方米
100平客廳挑高三層樓房設計圖,復式結構
占地:100平方米
20萬左右歐式二層小別墅設計圖,100平米和130兩個戶型
占地:多種戶型
造價25萬農村二層小別墅設計圖,外觀效果圖美觀、精致
占地:165平方米
經典一層帶閣樓三合院別墅設計圖,18米乘9.5米
占地:118.63平方米
建一棟就成了村里的門面擔當!三層歐式別墅,左右對稱太氣派
占地:173.67平方米
新農村三層別墅設計圖紙及效果圖,全套cad建筑圖
占地:119平方米
12米面寬一層農村別墅設計圖,實用又舒適
占地:110.41平方米
推薦:10套新農村自建房設計圖,2026年最新設計
閱讀次數:4825737次
100套鄉村別墅圖片大全,2026年最新設計
閱讀次數:2492203次
6款農村蓋一層平房的設計圖,10萬元就能建起來
閱讀次數:1852637次
這11個一層農村自建房別墅火爆了朋友圈!我最喜歡戶型十!你呢
閱讀次數:750268次
農村6萬元建一層小別墅圖,你敢相信嗎
閱讀次數:567686次
農村5萬塊就能自建房,6套普通房子設計圖分享,你沒看錯!
閱讀次數:419410次
8套農村漂亮三間平房圖片,非常適合在農村修建!
閱讀次數:411197次
農村自建房化糞池怎么做?附方案及施工過程
閱讀次數:391783次
農村一層三間平房設計圖,告別土氣養老房,讓人忍不住點贊
閱讀次數:350581次
新農村二層樓房圖片造價12萬,挑一套回家建房吧!
閱讀次數:349126次
