
|
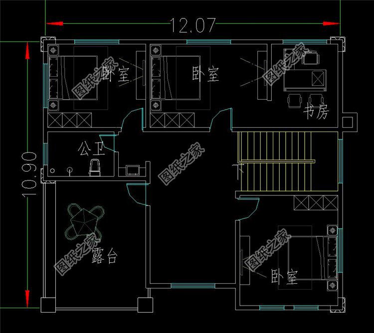
在城市奮斗多年,是否厭倦了城市的喧囂紛雜,在某一瞬間想要回到農村享受大自然,享受安靜的生活?相信不少朋友現在都想在農村老家建一棟小樓房,或現在居住,或建給父母居住。今天就給大家分享三款2021最火三層別墅設計圖,戶型不大不小,適合農村建造的好戶型,快來看看適不適合你家的宅基地吧。 款式一:農村現代三層別墅設計圖,占地108平米,小戶型設計圖紙介紹:本戶型占地108平米左右,小戶型設計,外觀米黃色真石漆搭配紅色琉璃瓦坡頂,前后多窗的設計,增加采光和通風的同時也更加時尚美觀,右側的弧形落地窗和三層的大露臺設計更增時尚氣息。門樓貫穿兩層,兩根羅馬柱彰顯大氣風范。 占地面積:9.0m*13.5m,108平方米; 建筑層高:二層; 建筑高度:11.98米(含屋頂); 設計功能: 一層戶型: 玄關,大廳,臥室(帶衣帽間),衛生間X2,廚房,餐廳; 二層戶型:休閑廳,臥室(帶衣帽間),衛生間X2,臥室X2; 三層戶型:露臺,臥室(帶衣帽間),衛生間X2,臥室X2; ![]() ![]() ![]() ![]() 款式二:農村三層別墅設計圖,占地133平米左右,造價不到30萬圖紙介紹:本戶型占地133平米左右,主體造價不到30萬,簡歐風格,室內布局挑高客廳和大露臺設計,整體比較平穩,室內帶8間臥室,非常適合人口多的大家庭。 占地面積:12.07m*10.90m,133.057平方米左右; 建筑層高:三層; 建筑高度:14.35米(含屋頂); 設計功能: 一層戶型:客廳、餐廳、廚房、臥室x2、衛生間; 二層戶型:客廳上空、小客廳、臥室(帶書房)、臥室x2、衛生間、陽臺; 三層戶型:娛樂區、臥室(帶書房)、臥室x2、衛生間、露臺; ![]() ![]() ![]() ![]() 款式三:農村三層別墅設計圖,占地160平米左右,外觀簡單大氣圖紙介紹:本戶型占地160平米左右,歐式風格,帶露臺設計。外觀美觀大方、端莊溫雅,大面積落地窗設計,讓陽光照進生活的每個角落。一層客廳面積不大不小,待客居家都很足夠;二層三層共設有5間臥室,每層分別還設有一間主臥,臥室帶有獨立衛生間居住私密性較好,另5間臥室則可以作為親戚朋友拜訪時作休息之用。 占地面積:13.15m*11.8m,156平方米; 建筑層高:三層; 建筑高度:14.17米(含屋頂); 設計功能: 一層戶型:廚房,餐廳,儲藏空間,衛生間,臥室(帶主衛),客廳; 二層戶型:臥室X3,衛生間,客廳,陽臺,臥室(帶主衛); 三層戶型:臥室X2,衛生間,臥室(帶主衛),露臺; ![]() ![]() ![]() ![]() 這三款戶型占地合適,而且布局非常符合農村生活習慣,喜歡的朋友下方留言。
圖紙之家-專注農村別墅/自建房設計18年,集合國內200余位經驗豐富的設計師,被評為口碑最好的農村建筑設計公司! |

仿古建筑中式祠堂設計圖紙及外觀效果圖
占地:546平方米
12×12米農村二層經濟型自建房設計圖,設計了6間臥室
占地:140平方米
爆火農村養老房設計:16 米面寬一層戶型,自住養老全拿捏
占地:169.87平方米
150平方米自建現代二層別墅施工設計圖帶外觀圖,15x10米
占地:多戶型可選
140平方米現代偏中式實用型三層房屋設計圖紙,新農村建房推薦
占地:142平方米
新款現代一層小別墅設計圖,農村自建平房推薦戶型
占地:多戶型可選
帶開放式車庫二層農村自建別墅設計方案,造價僅15萬
占地:89.412平方米
最好看的農村三層樓房設計圖,占地113平米,小平米大格局
占地:110平方米
二層新中式別墅設計施工圖,廚房在配房,占地140平米
占地:141平方米
豪華三層歐式雙拼別墅設計圖紙,雙拼歐式別墅如何設計看這款
占地:258.294平方米
320平方米高端農村帶車庫四合院別墅設計圖,徽派韻味十足
占地:320.89平方米
私人二層中式四合院別墅建筑設計圖,新農村經濟實用戶型
占地:145平方米
最接農村地氣的二層農村小別墅,造價30萬左右,經濟實用
占地:170平方米
實用型二層別墅設計方案,占地120平米簡單大方最耐看
占地:120平方米
100平米左右簡單實用的二層樓房設計圖,施工簡單造價低
占地:95平方米
經典三層別墅設計圖紙(全套施工圖+效果圖),新農村自建推薦
占地:123平方米
12.8乘10米一層平房別墅設計圖,四室二廳南北通透
占地:128.85平方米
120平米左右農村房屋設計圖占地面積適宜,外觀舒適大氣
占地:120平方米
?13.5x9米這尺寸火了!好多人家照著建這款二層別墅,簡單實用
占地:115.11平方米
居家養老一層別墅設計圖,面寬20米,農村建一棟不吃虧
占地:259.7平方米
推薦:10套新農村自建房設計圖,2026年最新設計
閱讀次數:4825737次
100套鄉村別墅圖片大全,2026年最新設計
閱讀次數:2492203次
6款農村蓋一層平房的設計圖,10萬元就能建起來
閱讀次數:1852637次
這11個一層農村自建房別墅火爆了朋友圈!我最喜歡戶型十!你呢
閱讀次數:750268次
農村6萬元建一層小別墅圖,你敢相信嗎
閱讀次數:567686次
農村5萬塊就能自建房,6套普通房子設計圖分享,你沒看錯!
閱讀次數:419410次
8套農村漂亮三間平房圖片,非常適合在農村修建!
閱讀次數:411197次
農村自建房化糞池怎么做?附方案及施工過程
閱讀次數:391783次
農村一層三間平房設計圖,告別土氣養老房,讓人忍不住點贊
閱讀次數:350581次
新農村二層樓房圖片造價12萬,挑一套回家建房吧!
閱讀次數:349126次
