
|
今天給大家分享的這款二層農村自建房設計圖,戶型方正,設計大氣漂亮,采用黃色為主,屋頂顏色偏粉色,淡雅俏皮。南北開設較多窗戶,室內采光通透,右側有汽車通道和平臺,可以停放愛車,室內的客廳挑高設計,寬敞明亮,每一功能布局都是經過精心設計的,盡最大可能滿足住戶的住房需求。
效果圖 本套二層農村自建房設計圖開間15米,進深15.3米,總建筑面積377㎡,采用磚混結構,主體造價預算35萬。 室內布局
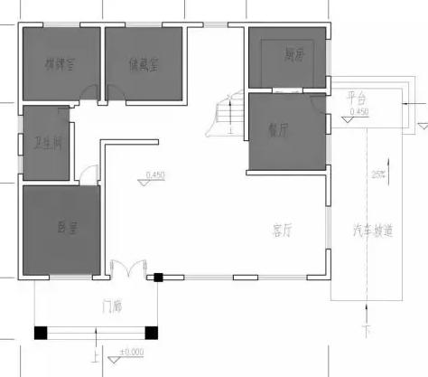
一層平面圖 一層:門廊、客廳(挑空)、廚房、餐廳、臥室、棋牌室、儲藏室、衛生間 一層設計架空門廊目的是為二層提供一個寬敞的陽臺,同時還能美化外立面的視覺效果圖,客廳的面積非常大,挑高設計,還對應有兩個超大拱形落地窗,可見采光效果圖極佳,臥室設在南面,棋牌室、儲藏室和廚房均設在北面,布局合理,流暢性不錯。
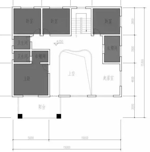
二層平面圖 二層:客廳上空、起居室、主臥(帶衛生間、衣帽間)、次臥×3、衛生間、衣帽間、陽臺 本層共設有4間臥室,一間主臥和三間次臥,主臥帶有獨立衛生間以及衣帽間,其他的次臥均布置在北面,陽臺由過道進去,陽臺的空間較大,是放松享受美景的好地方。 圖紙之家-專注農村別墅/自建房設計18年,集合國內200余位經驗豐富的設計師,被評為口碑最好的農村建筑設計公司! |

占地百平農村三層戶型方案,簡約實用,獨具特色,理想新居等你
占地:105.61平方米
鄉村三層簡單自建房子設計圖,全部建好34萬左右,外觀簡潔
占地:127.912平方米
占地90平米四層超現代風別墅設計圖,享受高品質生活
占地:3.76平方米
16×12米二層歐式帶車庫農村小別墅,既舒適又美觀
占地:180平方米
預算10萬左右新農村自建房屋設計圖紙,帶效果圖
占地:82平方米
小戶型經濟農村雙拼自建房別墅設計圖紙,二層簡約造價低
占地:138平方米
125平兩層別墅房屋設計圖,帶普通和復式兩個戶型
占地:125平方米
最新款二層半別墅圖片,占地115平米左右,帶地下室,帶露臺
占地:115平方米
鄉下建房一層平房設計圖紙及戶型圖,占地150平米左右
占地:150平方米
2026兩層半20多萬農村自建房圖,簡歐風格,美觀大氣
占地:120平方米
160平方米新農村三層半別墅設計圖11X16米65萬以內
占地:160平方米
90平-100平小戶型一層三間平房農村別墅設計圖方案戶型
占地:多戶型可選
新農村二層雙拼小別墅設計圖,開間22米的現代房屋圖紙設計
占地:230平方米
一層三間別墅設計圖,經濟實用 + 好看不貴,養老自住都適配
占地:119.31平方米
130平方米農村兩層別墅圖紙及效果圖12X11米
占地:133平方米
二層帶車庫歐式尊貴別墅圖,客廳中空,美觀,大氣,實用
占地:300平方米
120平帶車庫二層農村別墅施工圖,簡約時尚的外觀
占地:119.13平方米
小型農村二層自建樓房設計圖,面寬10米小占地經濟
占地:78.54平方米
一層中式仿古三合院設計圖,實用又大氣,百年不過時
占地:366.67平方米
農村平屋頂三層現代風別墅戶型圖,簡約實用經濟顏值高
占地:111.9平方米
推薦:10套新農村自建房設計圖,2026年最新設計
閱讀次數:4825737次
100套鄉村別墅圖片大全,2026年最新設計
閱讀次數:2492203次
6款農村蓋一層平房的設計圖,10萬元就能建起來
閱讀次數:1852637次
這11個一層農村自建房別墅火爆了朋友圈!我最喜歡戶型十!你呢
閱讀次數:750268次
農村6萬元建一層小別墅圖,你敢相信嗎
閱讀次數:567686次
農村5萬塊就能自建房,6套普通房子設計圖分享,你沒看錯!
閱讀次數:419410次
8套農村漂亮三間平房圖片,非常適合在農村修建!
閱讀次數:411197次
農村自建房化糞池怎么做?附方案及施工過程
閱讀次數:391783次
農村一層三間平房設計圖,告別土氣養老房,讓人忍不住點贊
閱讀次數:350581次
新農村二層樓房圖片造價12萬,挑一套回家建房吧!
閱讀次數:349126次
