
|
15萬二層平屋頂簡單農村自建房全套圖紙,100平方米1廳5臥 簡單的戶型設計是最受農村歡迎的,今天要給大家介紹的這款二層農村自建房圖紙,就是簡化設計,戶型簡約,外墻色彩簡單溫和,采用平屋頂,施工簡單,主體造價15萬左右,共設有1廳5臥,屬于實用型農村自建房設計圖。
效果圖 圖紙簡介 層數: 二層 結構形式: 磚混結構 主體造價:15萬 開間:9米 進深: 11.4米 占地面積:102平方米 總建筑面積: 173平方米 功能設計
一層平面圖 一 層: 客廳、餐廳、廚房、臥室×2、衛生間
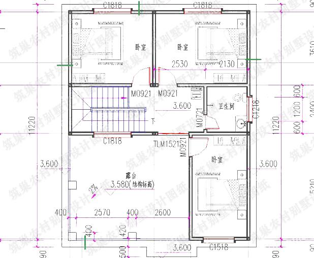
二層平面圖 二 層: 臥室×3、大露臺、衛生間 全套圖紙包含 建 筑 圖: 包含各層平面圖、各立面圖、剖面圖、樓梯大樣圖、門窗尺寸、各節點大樣等 結 構 圖: 包含地基、梁、柱、樓板詳細配筋及做法、節點配筋圖等 給排水圖: 包含每層給排水平面圖及大樣圖、說明等 電 氣 圖: 包含每層照明平面圖、插座平面圖、弱電平面圖及系統圖、說明等 圖紙之家-專注農村別墅/自建房設計18年,集合國內200余位經驗豐富的設計師,被評為口碑最好的農村建筑設計公司! |

泰式風格三層小別墅設計圖,帶車庫和大露臺
占地:120平方米
進深14米的二層小別墅設計圖,農村自建房好方案
占地:144平方米左右
占地90平新中式經濟二層小別墅自建房設計圖,僅15萬
占地:89.3平方米
最新款二層鄉下別墅設計圖,新中式風格,24萬建好主體
占地:150.94平方米
三層現代簡約農村雙拼小別墅圖,好看精致,開間17米
占地:187平方米
歐式三層小洋樓設計圖,外觀氣派,典雅、高貴
占地:145平方米
新農村兩層半小洋樓房設計圖,預算33萬左右
占地:多種戶型
新農村三拼別墅三戶連體別墅設計圖,設計新穎美觀
占地:380平方米
小戶型徽派建筑別墅設計方案大全,三層別墅設計圖推薦
占地:95平方米
二層復式農村豪宅別墅設計圖,挑空客廳旋轉樓梯高級感十足
占地:215.43平方米
歐式二層農村別墅設計圖,140平方米戶型方正的好方案
占地:142.51平方米
復式別墅新農村二層房屋設計圖紙,屋頂錯落有致
占地:多戶型可選
三層雙拼別墅效果圖及戶型設計圖,占地150平米
占地:154.8平方米
農村17萬元一層自建別墅設計圖,外觀簡潔,戶型方正
占地:163平方米
帶土灶房一層四開間別墅設計方案,溫馨舒適的雅舍
占地:164.34平方米
備受好評二層半歐式別墅設計圖,五開間對稱設計,布局合理又實
占地:192.48平方米
最新140平米三層自建房屋設計圖紙,本戶型帶小院
占地:140平米
2026新款農村15萬元二層小樓圖,占地90平米左右
占地:多種戶型
鄉下三層大氣房子設計圖,外觀挺高大上的,主體29萬多
占地:132.48平方米
150平方米的新農村自建三層小別墅設計施工圖紙及效果圖
占地:150平方米
推薦:10套新農村自建房設計圖,2026年最新設計
閱讀次數:4825737次
100套鄉村別墅圖片大全,2026年最新設計
閱讀次數:2492203次
6款農村蓋一層平房的設計圖,10萬元就能建起來
閱讀次數:1852637次
這11個一層農村自建房別墅火爆了朋友圈!我最喜歡戶型十!你呢
閱讀次數:750268次
農村6萬元建一層小別墅圖,你敢相信嗎
閱讀次數:567686次
農村5萬塊就能自建房,6套普通房子設計圖分享,你沒看錯!
閱讀次數:419410次
8套農村漂亮三間平房圖片,非常適合在農村修建!
閱讀次數:411197次
農村自建房化糞池怎么做?附方案及施工過程
閱讀次數:391783次
農村一層三間平房設計圖,告別土氣養老房,讓人忍不住點贊
閱讀次數:350581次
新農村二層樓房圖片造價12萬,挑一套回家建房吧!
閱讀次數:349126次
