
|
對于很多農村建房者來說,造價仍然是他們考慮的重要因素。想修建一棟三層別墅,造價讓人退縮,但如果一味削減預算,又擔心建出來的效果差強人意,外觀和實用性都會大打折扣。今天帶來的三層別墅,功能布局以生活需要為出發點,造型造價等都在人們的接受范圍之內。
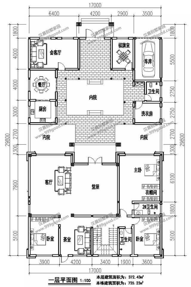
別墅設計說明: 安徽的陳先生非常喜歡中式四合院,但是宅地不夠大,只能蓋一棟三合院 新鮮出爐的農村中式別墅,17X29.8米!占地372平米,總建筑面積735平米。
房子的正面效果圖和背面效果圖,局部占有三層形式,院子宅地不是很大,看起來也是蠻大氣的。
室內效果一覽。
平面功能:戶型坐南朝北,入戶首先是內院,主要是對外接待的區域,有會客廳、儲藏室、車庫,洗衣房、廚房、餐廳等
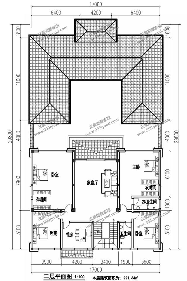
二層主要的休息層,主臥帶有衣帽間和衛生間,公用的書房處在中央的位置,防便家人共用。
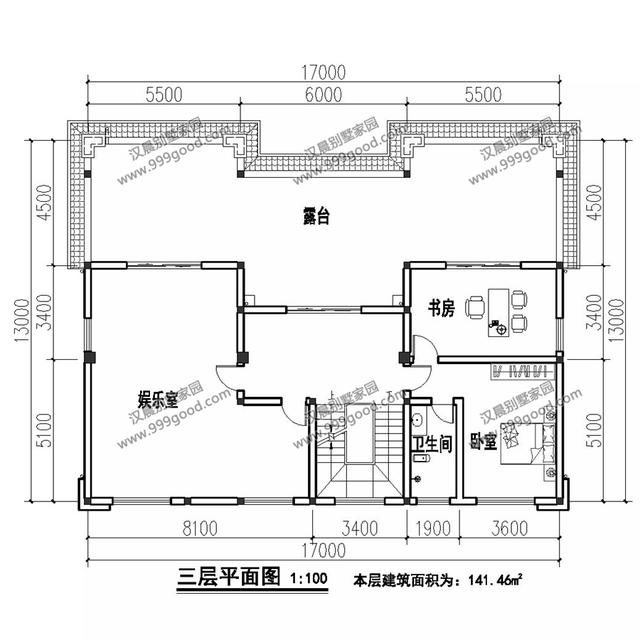
三層一個娛樂適合一間書房,還有臥室可供休息,也可用作備用的房間。 ![]() 圖紙之家-專注農村別墅/自建房設計18年,集合國內200余位經驗豐富的設計師,被評為口碑最好的農村建筑設計公司! |

農村自建一層房子設計圖,大開間小進深,20米x10米
占地:188平方米
私人別墅房屋cad施工設計圖,造型精致、美觀
占地:105平方米
農村二層帶閣樓四間別墅設計圖,外觀美觀,戶型實用
占地:175平方米
廚房在前,簡約歐式二層農村自建別墅設計圖,戶型個性
占地:143.69平方米
170平方米雙拼別墅戶型建筑設計圖紙及外觀效果圖,復式單戶85平
占地:170平方米
一層中式四合院別墅設計圖,符合國人審美,簡單大氣穩妥沉穩
占地:388平方米
歐式二層別墅cad施工圖紙,含效果圖,歐式別墅設計圖紙展示
占地:189平方米
時尚大氣的三層現代風別墅設計圖,露臺+挑空客廳
占地:321平方米
120平面三層鄉村樓房設計圖及效果圖,歐式風格
占地:120平方米
230平米歐式帶地下室三層自建別墅設計施工圖紙及效果圖
占地:230平米
帶車庫二層165平別墅房屋設計圖,含效果圖
占地:165平方米
100平方建房子設計圖及效果圖,簡單實用的戶型設計
占地:97.3平方米
帶閣樓的二層半別墅設計圖和效果圖,外飾簡單但不失奢華
占地:210平方米
經典中式三合院設計,一層空間實用大氣,輕松實現理想家園!
占地:160.53平方米
新款三層農村自建別墅設計圖,中式風復式客廳
占地:158.96平方米
110平方米農村兩層別墅設計效果圖及圖紙,12X12米
占地:110平方米
中式一層仿古自建平房設計圖,灰墻青瓦,外觀古香古色
占地:168.48平方米
帶車庫四層別墅外觀效果圖及設計圖紙,戶型方正通透
占地:115平方米
造價40萬內三層別墅房屋設計方案,設計圖+外觀效果圖
占地:150平方米
簡單時尚二層住宅設計圖紙,簡單的設計,不平凡的視覺感受
占地:110平方米
推薦:10套新農村自建房設計圖,2026年最新設計
閱讀次數:4825737次
100套鄉村別墅圖片大全,2026年最新設計
閱讀次數:2492203次
6款農村蓋一層平房的設計圖,10萬元就能建起來
閱讀次數:1852637次
這11個一層農村自建房別墅火爆了朋友圈!我最喜歡戶型十!你呢
閱讀次數:750268次
農村6萬元建一層小別墅圖,你敢相信嗎
閱讀次數:567686次
農村5萬塊就能自建房,6套普通房子設計圖分享,你沒看錯!
閱讀次數:419410次
8套農村漂亮三間平房圖片,非常適合在農村修建!
閱讀次數:411197次
農村自建房化糞池怎么做?附方案及施工過程
閱讀次數:391783次
農村一層三間平房設計圖,告別土氣養老房,讓人忍不住點贊
閱讀次數:350581次
新農村二層樓房圖片造價12萬,挑一套回家建房吧!
閱讀次數:349126次
