
|
11×10米2廳6臥30萬三層帶臥室套房私家別墅,復古文化石裝飾! 本套三層獨棟別墅一二層外墻采用文化石裝飾,復古有韻味,三層采用純白色外墻漆,與藍色坡屋頂搭配協調,與藍天白云相互映襯,有大陽臺和大露臺,大門采用歐式仿銅門,高端大氣,共設有2廳6臥,主體預算30萬左右。
效果圖 圖紙詳情 層數:三層 開間:11米 進深:10米 首層占地面積:109.52㎡ 總建筑面積:294.06㎡ 結構形式:框架結構 主體造價:30萬 功能布局
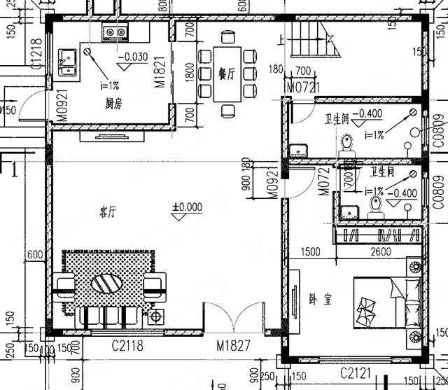
一層平面圖 一層:客廳、臥室(附衛生間)、廚房、餐廳、衛生間、樓梯間
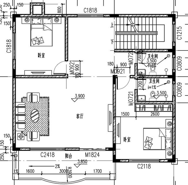
二層平面圖 二層:客廳(帶陽臺)、臥室(附衛生間)、臥室、衛生間
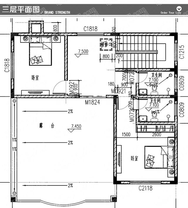
三層平面圖 三層:臥室(附衛生間)、臥室、衛生間、大露臺 圖紙之家-專注農村別墅/自建房設計18年,集合國內200余位經驗豐富的設計師,被評為口碑最好的農村建筑設計公司! |

農村兩層帶地下室別墅設計圖,還帶庭院規劃,適合農村建
占地:144.5平方米
漂亮實用三層自建別墅設計圖紙,超高的性價比
占地:160平方米
最新歐式三層別墅設計圖紙,超漂亮,預算30到40萬
占地:160平方米
80平方米鄉村一層半帶閣樓自建別墅設計圖,帶車庫
占地:80平方米
時尚大方的農村二層自建房屋設計圖紙,占地120平米左右
占地:120平米
經典中式三合院設計,一層空間實用大氣,輕松實現理想家園!
占地:160.53平方米
三層獨棟帶露臺房屋設計圖,含外觀圖片大全
占地:110平方米
新中式農村自建房三層設計圖,外觀布局均滿分
占地:142.18平方米
3款簡單舒適二層別墅設計圖,低調配色,造型簡單大氣
占地:多戶型可選
農村超級好看的現代風格兩層小樓圖,清新優雅
占地:多種戶型
二層歐式別墅設計圖,挑空客廳+柴火灶,12.5米乘12米
占地:131.25平方米
160平方米農村二層別墅設計效果圖帶CAD建筑圖
占地:160平方米
現代風格三層別墅設計圖紙和效果圖,農村自建精選
占地:129平方米
175平大客廳三層別墅房屋設計圖,含外觀造型現代,美觀
占地:175平方米
獨棟兩層歐式別墅設計圖紙(效果圖+建筑施工圖)
占地:125平方米
七字型一層平房別墅設計圖紙,15X16米
占地:177.9平方米
農村10萬元一層小別墅設計圖紙,戶型實用又合理
占地:130平方米
130平帶閣樓兩層半別墅房屋設計圖,含外觀效果圖
占地:130平方米
農村三層四合院別墅設計圖紙,自建房建這棟面子十足
占地:227.49平方米
230平方米豪華歐式二層別墅CAD設計圖紙帶外觀效果圖,21.6×15米
占地:236平方米
推薦:10套新農村自建房設計圖,2026年最新設計
閱讀次數:4825737次
100套鄉村別墅圖片大全,2026年最新設計
閱讀次數:2492203次
6款農村蓋一層平房的設計圖,10萬元就能建起來
閱讀次數:1852637次
這11個一層農村自建房別墅火爆了朋友圈!我最喜歡戶型十!你呢
閱讀次數:750268次
農村6萬元建一層小別墅圖,你敢相信嗎
閱讀次數:567686次
農村5萬塊就能自建房,6套普通房子設計圖分享,你沒看錯!
閱讀次數:419410次
8套農村漂亮三間平房圖片,非常適合在農村修建!
閱讀次數:411197次
農村自建房化糞池怎么做?附方案及施工過程
閱讀次數:391783次
農村一層三間平房設計圖,告別土氣養老房,讓人忍不住點贊
閱讀次數:350581次
新農村二層樓房圖片造價12萬,挑一套回家建房吧!
閱讀次數:349126次
