
|
農村傳統房屋一般都設有后門,自建房前后有門,這個門講的大門還是小門,農村房前面是大門,樓梯間在后面肯定在樓梯間做個小門,如果前后都做大門,這就看你的地理位置了,一般馬路后有河流,房子不能坐河而建,大門要朝河,講究坐山朝水,馬路就到屋后了。 今天分享的二層農村自建房,面寬為20米,帶前后門及車庫設計,外觀顏色搭配很素雅融合,淡黃色的瓷磚裝飾顯得高檔,構造柱的應用恰到好處,旋轉樓梯,復式客廳,面積極為寬敞 。 別墅效果圖:
戶型介紹 層數: 二層結構形式: 框架結構主體造價: 35-40萬 開間: 20米進深: 12.8米占地面積: 255平方米建筑面積: 472平方米
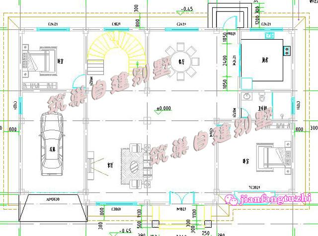
后門靠邊設計,而不是相對前門,如果大門與后門是直線相通,中間沒有任何事物阻擋的話,這就構成了所謂的“穿心煞”。這樣的風水會有泄氣泄財的不良影響。 平面圖展示:
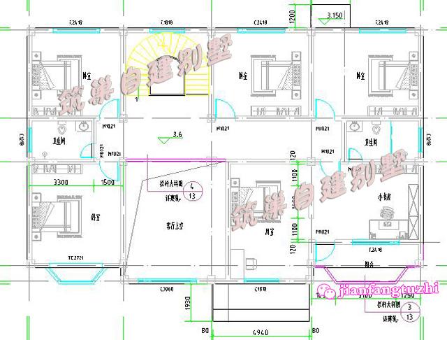
一層平面圖 設計功能 一 層: 客廳、2個臥室、廚房、餐廳、衛生間、車庫 二 層: 主臥(帶書房、陽臺、內衛)、客廳上空、4個次臥室、公用衛生間
二層平面圖 立面圖: 房屋四面開窗,南北通透,室內采光通風良好。
背立面圖
左立面圖
右立面圖 圖紙之家-專注農村別墅/自建房設計18年,集合國內200余位經驗豐富的設計師,被評為口碑最好的農村建筑設計公司! |

三層新農村住宅房屋設計圖,溫馨美觀的戶型
占地:180平方米
四開間一層自建房設計圖,四臥二廳+棋牌室+書房
占地:181.29平方米
農村一層養老別墅設計圖,兩個戶型方案可選
占地:多種戶型
新農村自建20萬二層小樓外觀圖及戶型圖,簡單大方,漂亮接地氣
占地:130平方米
160-170平方米二層自建別墅設計CAD圖紙帶效果圖,田園風
占地:167平方米左右
農村自建房鄉村超現代平屋頂二層別墅圖設計方案,造價低,施工
占地:142平方米
現代四合院別墅設計圖紙,二層戶型,外觀時尚漂亮
占地:287.97平方米
對稱型歐式別墅設計圖,穩重實用,開間18米,適合全國農村建
占地:228.2 平方米
210平米新農村自建二層施工圖紙,預留電梯位,美觀大氣舒適實用
占地:208.5平方米
120平方米帶地下室三層復式別墅戶型圖,現代風格
占地:120.78平方米左
復式三層別墅設計圖片及全套圖紙,客廳中空,外觀為歐式建筑的
占地:175平方米
新款農村三層雙拼聯體別墅戶型圖,客廳中空,單戶120平米左右
占地:240平方米
農村自建房別再做傳統客廳!“客廳+茶室”一體設計,寬敞明亮
占地:143.73平方米
新農村小洋樓三層別墅戶型設計圖,開間9米,造價25萬
占地:94平方米
大面寬一層別墅設計圖紙,新中式風格兩款戶型
占地:多戶型可選
190平方米新農村三層(二層半)雙拼房屋設計圖紙,兄弟合建
占地:192平方米左右
農村二層住宅別墅設計圖,貼心實用,12.8米乘14.5米
占地:156.16平方米
高端大氣三層別墅設計圖,建好就是村里最靚的
占地:120平方米
帶車庫簡約二層小別墅房屋設計圖紙,占地120平米,彎彎的樓梯打
占地:120平方米
農村17萬元一層自建別墅設計圖,外觀簡潔,戶型方正
占地:163平方米
推薦:10套新農村自建房設計圖,2026年最新設計
閱讀次數:4825737次
100套鄉村別墅圖片大全,2026年最新設計
閱讀次數:2492203次
6款農村蓋一層平房的設計圖,10萬元就能建起來
閱讀次數:1852637次
這11個一層農村自建房別墅火爆了朋友圈!我最喜歡戶型十!你呢
閱讀次數:750268次
農村6萬元建一層小別墅圖,你敢相信嗎
閱讀次數:567686次
農村5萬塊就能自建房,6套普通房子設計圖分享,你沒看錯!
閱讀次數:419410次
8套農村漂亮三間平房圖片,非常適合在農村修建!
閱讀次數:411197次
農村自建房化糞池怎么做?附方案及施工過程
閱讀次數:391783次
農村一層三間平房設計圖,告別土氣養老房,讓人忍不住點贊
閱讀次數:350581次
新農村二層樓房圖片造價12萬,挑一套回家建房吧!
閱讀次數:349126次
