
|
現在隨著經濟的不斷發展,人們收入日益增加,很多農民在城里已經買房了,但還是會在農村再蓋個房子,不管占地大小,不管樓層多少,不管豪華與否,也不管是什么風格,因為這里才是真正意義的家,比擁擠的狹小商品房溫馨舒適很多,如果蓋得豪華一點,也能讓家鄉的父母揚眉吐氣一把,你說是嗎?本期,我們推薦一套2018年比較受歡迎的三層自建房,6間臥室很實用。 外觀效果圖:
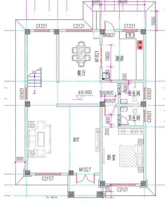
非常經典的建筑外形,顏色選取非常的傳統,雖然不是很個性,但是創意十足,建筑設計尺寸:開間9.8米,進深12.8米,建筑占地面積129.28平米,總建筑面積345.12平米; 平面布局圖:
建筑入戶就是客廳,左側是一間套房,另有廚房、餐廳和獨立衛生間;二層設計有客廳、三間臥室,其中一間是套房;三層設計有兩間臥室、活動室和室外大露臺;
![]() 圖紙之家-專注農村別墅/自建房設計18年,集合國內200余位經驗豐富的設計師,被評為口碑最好的農村建筑設計公司! |

新中式風格農村自建房二層設計圖,15.5米乘12米
占地:186平方米
320平方米高端農村帶車庫四合院別墅設計圖,徽派韻味十足
占地:320.89平方米
三層新農村140平方米房屋設計圖紙,全套施工圖及效果圖
占地:140平方米
農村帶地下室二層半自建房屋設計圖,樓中樓設計,歐式風格
占地:140平方米
兩層農村自建二層樓設計圖紙,面寬12米左右
占地:131.2平方米
帶閣樓的二層半別墅設計圖和效果圖,外飾簡單但不失奢華
占地:210平方米
二層農村小別墅設計圖,造價經濟實惠,參考價30萬以內
占地:140平方米
大戶型三層別墅設計圖,高貴大氣,占地面積將近300平
占地:273.33平方米
小開間三層新中式小別墅設計圖,外觀圖優雅大氣,讓人心動!
占地:103.18平方米
農村兄弟倆雙拼別墅房屋設計圖,外觀質樸
占地:195平方米
一層農村自建房設計圖,造型美觀大氣,占地150平
占地:153.415平方米
新中式農村自建房三層設計圖,外觀布局均滿分
占地:142.18平方米
新農村私人別墅建筑設計施工圖,全套別墅設計圖紙
占地:多種戶型
新農村中式一層三合院效果圖及全套設計圖,喜歡合院的有福了
占地:118平方米
造價便宜的二層雙拼自建房設計方圖案,一塊宅基地建兩戶
占地:224平方米
占地180平豪華三層農村別墅自建房設計圖,歐式與現代相融合
占地:183.706平方米
經濟、不張揚!簡單二層別墅設計圖,農村建房直接抄作業
占地:198.58平方米
160平方米二層平屋頂房屋設計圖紙及效果圖17x11米
占地:164平方米
新款中式二層四合院住宅設計圖,農村自建帶露臺設計
占地:223平方米
140平歐式二層半帶露臺的獨棟別墅圖片,含全套設計圖
占地:140平方米
推薦:10套新農村自建房設計圖,2026年最新設計
閱讀次數:4825737次
100套鄉村別墅圖片大全,2026年最新設計
閱讀次數:2492203次
6款農村蓋一層平房的設計圖,10萬元就能建起來
閱讀次數:1852637次
這11個一層農村自建房別墅火爆了朋友圈!我最喜歡戶型十!你呢
閱讀次數:750268次
農村6萬元建一層小別墅圖,你敢相信嗎
閱讀次數:567686次
農村5萬塊就能自建房,6套普通房子設計圖分享,你沒看錯!
閱讀次數:419410次
8套農村漂亮三間平房圖片,非常適合在農村修建!
閱讀次數:411197次
農村自建房化糞池怎么做?附方案及施工過程
閱讀次數:391783次
農村一層三間平房設計圖,告別土氣養老房,讓人忍不住點贊
閱讀次數:350581次
新農村二層樓房圖片造價12萬,挑一套回家建房吧!
閱讀次數:349126次
