
|
地基面積不夠大,又想要建出一套美觀大方又實用的戶型怎么辦,今天小編就給大家整理了幾套占地90平米的三層自建房設計方案,外觀大氣簡約,室內功能齊全,是小戶型的理想選擇;就算地基小,一樣可以建個美美的自建房,不用再羨慕別人了。 效果圖1:
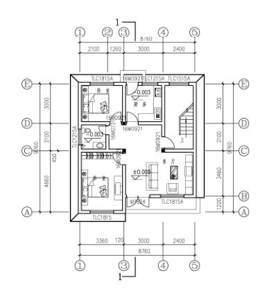
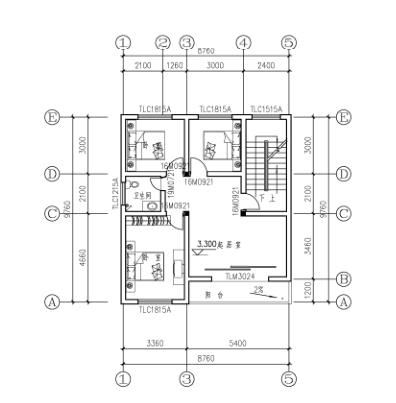
三層建筑,建筑基本信息,設計尺寸:開間8米,進深11.2米,建筑占地面積89.92平米,主體造價18萬—25萬,設計功能:一 層: 客廳、臥室、廚房、餐廳、衛生間、車庫;二 層: 臥室(附陽臺)、臥室(附衣帽間)、臥室、衛生間;三 層: 娛樂室、露臺;
效果圖2:
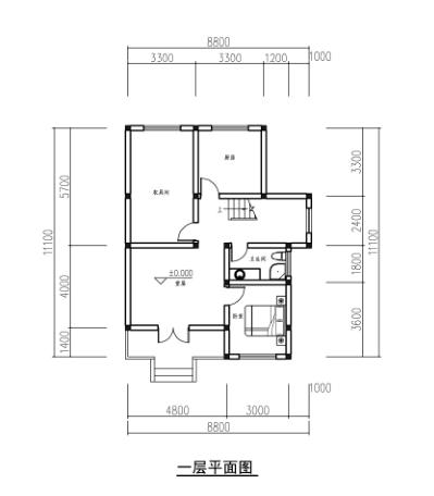
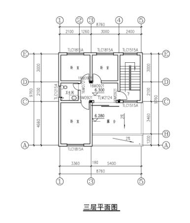
三層帶露臺建筑,建筑基本信息,設計尺寸:開間8.7米,進深9.7米,建筑占地面積90平米,主體造價18萬—25萬,設計功能:一 層: 客廳、臥室、廚房、餐廳、衛生間、;二 層: 臥室(附陽臺)、臥室(附衣帽間)、臥室、衛生間;三 層:臥室、 娛樂室、露臺;
效果圖3:
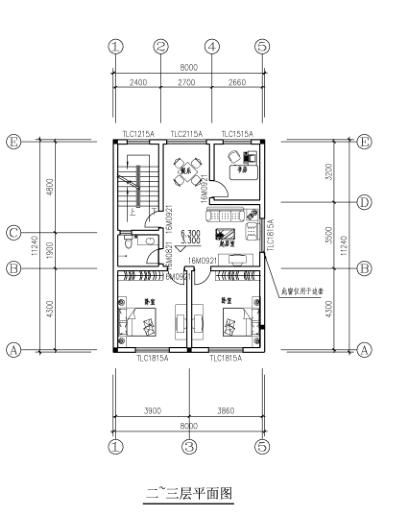
三層帶露臺建筑,建筑基本信息,設計尺寸:開間8.8米,進深11.1米,建筑占地面積89.57平米,主體造價18萬—25萬,設計功能:一 層: 客廳、臥室、廚房、餐廳、衛生間、;二 層: 臥室(附陽臺)、臥室(附衣帽間)、臥室、衛生間;三 層: 娛樂室、露臺;
![]() 圖紙之家-專注農村別墅/自建房設計18年,集合國內200余位經驗豐富的設計師,被評為口碑最好的農村建筑設計公司! |

165平方米三層雙拼農村房屋設計圖大全14x12
占地:168平方米
三層新農村140平方米房屋設計圖紙,全套施工圖及效果圖
占地:140平方米
140平米二層半帶露臺別墅圖片及圖紙,戶型極佳
占地:140平方米
120平農村三層房屋設計圖,含外觀圖片
占地:120平方米
歐式三層小洋樓設計圖,外觀氣派,典雅、高貴
占地:145平方米
二層簡歐風格自建房別墅戶型設計圖,造價26萬
占地:132.4平方米
五開間一層農村平房設計圖,200平米大戶型,五間臥房足夠用了
占地:200.7平方米
帶車庫的農村四合院別墅設計圖,富貴人家的象征,日子越過越興
占地:219.24平方米
一層4間自建平房別墅及全套戶型圖紙,占地160平左右,簡單實用
占地:162.13平方米
農村三層雙拼別墅戶型圖及全套施工圖紙,帶書房,帶衣帽間
占地:260平方米
150平米經典二層中式別墅設計圖 ,現代中式相結合
占地:154平方米左右
130平方米湖南二層復式自建房屋設計圖紙12x11米
占地:128平方米
好看又簡單二層仿古中式四合院樓房設計圖
占地:352平方米
帶車庫二層農村豪華別墅設計圖,主體25萬左右
占地:170平方米左右
平屋頂現代風格三層蓋別墅設計圖紙,面寬18米
占地:235.34平方米
農村三間一層別墅設計圖,經濟實用還好看
占地:139.56平方米
經濟實用二層樓房設計圖紙,功能布局多,12×11米
占地:130平方米
130平方米別墅設計圖紙(含外觀效果圖,)三層別墅設計方案
占地:135平方米
最新三層農村別墅設計圖紙,推薦農村自建
占地:106平方米
時尚一層別墅圖,一層這樣蓋房最漂亮
占地:160平方米
推薦:10套新農村自建房設計圖,2026年最新設計
閱讀次數:4825737次
100套鄉村別墅圖片大全,2026年最新設計
閱讀次數:2492203次
6款農村蓋一層平房的設計圖,10萬元就能建起來
閱讀次數:1852637次
這11個一層農村自建房別墅火爆了朋友圈!我最喜歡戶型十!你呢
閱讀次數:750268次
農村6萬元建一層小別墅圖,你敢相信嗎
閱讀次數:567686次
農村5萬塊就能自建房,6套普通房子設計圖分享,你沒看錯!
閱讀次數:419410次
8套農村漂亮三間平房圖片,非常適合在農村修建!
閱讀次數:411197次
農村自建房化糞池怎么做?附方案及施工過程
閱讀次數:391783次
農村一層三間平房設計圖,告別土氣養老房,讓人忍不住點贊
新農村二層樓房圖片造價12萬,挑一套回家建房吧!
閱讀次數:349126次
