
|
隨著現在的炒房熱,好多人在一起聊起房子時,那可真是津津樂道,永遠說不完的話題。對在城市買商品房和在農村建自建房,每個人的觀點都是不一樣的。其實小編覺得在農村自建房也是不錯的選擇,但好像大家都對城市的商品房都情有獨鐘,寧可背負著經濟壓力當個房奴也要在城市買房,而不太愿意在農村自建房。也不知道這是一種跟風還是攀比。難道說農村自建房比不是縣城那些商品房嗎?今天小編為大家介紹二款現流行的三層別墅,讓你來做個對比。 款式一 本戶型為三層獨棟歐式風格別墅,整體采集淡米色做裝飾,大門上的羅馬柱貫穿一二層,調高的落地窗做裝飾,整棟別墅顯得舒適美觀。樓層陽臺圍廊采用理石裝飾配上精美雕花,提升整體檔次。
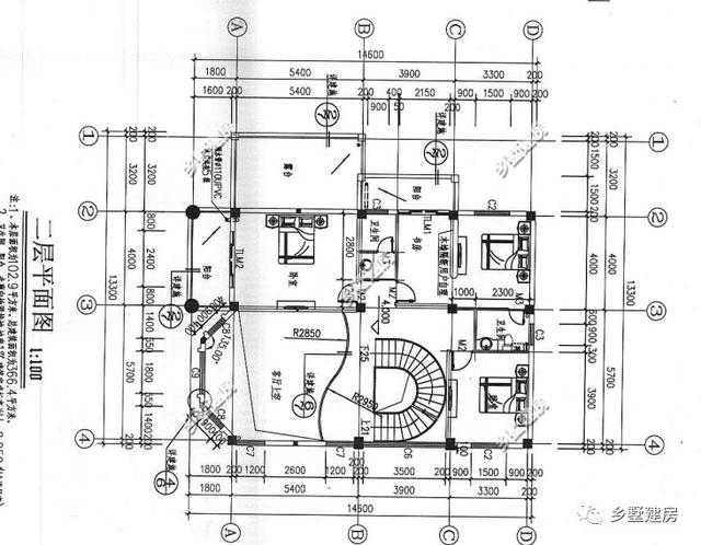
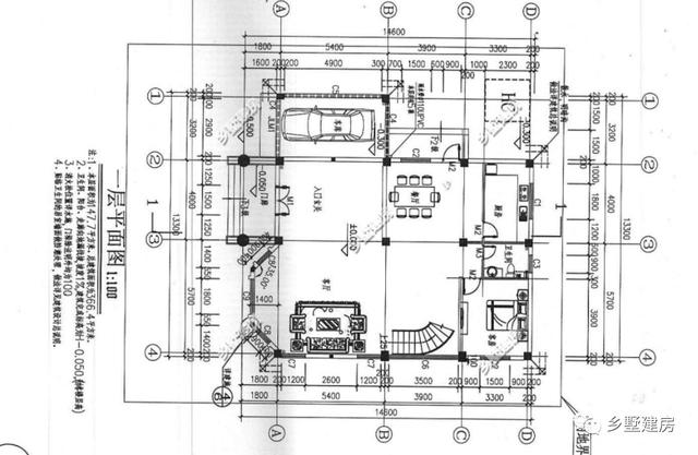
占地尺寸:13.3×14.6米;占地面積:182平方米;建筑面積:366.4平方米;建筑高度:11.1米;
一層設有入口玄關、客廳、臥室、衛生間、車庫、餐廳、廚房。獨立的車庫方便車子進出,客車內設有小門,可以通過小門直接進入生活區,合理的設計布局為生活帶來了便利。
二層設有三個臥室、2個衛生間、大陽臺、書房、客廳都是懸空的,螺旋式旋轉樓梯為室內提升了檔次,懸空的客廳讓一二層采光效果更好。
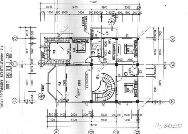
三層設有3個臥室、2個衛生間、書房、活動廳、2個大露臺。這層一般作為客房用來接待親朋好友起居使用,超大的露臺可以種些花草,營造個空中花園,平時朋友來,也可以在露臺上賞景暢聊。
款式二 這款戶型同樣也是歐式風格別墅,彩色的小瓷磚做裝飾,每層陽臺護欄上的大理石配上精致雕花,大門用4個羅馬柱做支撐,更加使別墅氣派壯觀。
占地面積:134.97平方米;建筑面積:384.93平方米;建筑高度:12.62平方米;結構類型:框架結構;
一層設有大堂,客廳,廚房,餐廳,娛樂室,臥室,2衛生間。整體空間寬敞,適合全家人起居。
二層設有3臥室,書房,衛生間,起居室,3陽臺,起居室與陽臺相鄰,采光效果好。
三層設有2臥室,書房,活動室,露臺,衛生間,陽臺。超大的露臺適合日常晾曬衣物等。
光看這外觀和內部布局,有沒有讓你心動嗎? 圖紙之家-專注農村別墅/自建房設計18年,集合國內200余位經驗豐富的設計師,被評為口碑最好的農村建筑設計公司! |

占地180平方米二層鄉村小洋樓設計戶型圖及圖紙,外觀華麗
占地:180平方米
大開間小進深的一層別墅設計圖,進深僅8.7米,獨立餐廚照樣美觀
占地:130.32平方米
三層新中式別墅建筑設計圖紙及圖片,11.66m*9.76m,典雅耐看
占地:114平方米
可以傳家的新中式二層別墅,經典耐看,再過幾十年也不過時
占地:146.81平方米
80平方米新農村二層房屋設計圖紙,造價15萬左右
占地:80平方米
一層農村房子設計圖,含外觀效果圖,自建推薦戶型
占地:200平方米
經濟實用二層樓房設計圖紙,功能布局多,12×11米
占地:130平方米
歐式小別墅設計圖紙帶效果圖,二層歐式小別墅設計方案展示
占地:166平方米
農村二層四合院設計圖,秒殺各種洋別墅
占地:220平方米
四間兩層農村別墅戶型圖,外觀時尚色調搭配和諧,占地超200平米
占地:212.95平方米
一層帶閣樓農村別墅設計圖,多得一層可變空間,太值了!
占地:165.89平方米
大二間三層別墅戶型圖,三層新農村自建房設計圖紙及效果圖
占地:116平方米
帶車庫農村二層樓房設計圖,外觀漂亮,精致
占地:154平方米
農村三合院設計圖及效果圖,自建三合院圖紙
占地:470平方米
適合農村建的二層別墅設計圖,簡約美觀,讓人心動不已
占地:153平方米
260平方米仿歐式二層別墅設計圖紙及效果圖,22X12米
占地:260平方米
帶車庫徽派風格三層別墅房屋設計圖,新農村住宅設計推薦
占地:140平方米
3層20萬農村自建房設計圖,占地110平米
占地:110平方米
背面不開窗二層別墅設計圖,對稱設計簡單好看,眾多建房者的選
占地:183.79平方米
140平中式徽派一層別墅設計圖,一層照樣建這樣漂亮
占地:140平方米
推薦:10套新農村自建房設計圖,2026年最新設計
閱讀次數:4825737次
100套鄉村別墅圖片大全,2026年最新設計
閱讀次數:2492203次
6款農村蓋一層平房的設計圖,10萬元就能建起來
閱讀次數:1852637次
這11個一層農村自建房別墅火爆了朋友圈!我最喜歡戶型十!你呢
閱讀次數:750268次
農村6萬元建一層小別墅圖,你敢相信嗎
閱讀次數:567686次
農村5萬塊就能自建房,6套普通房子設計圖分享,你沒看錯!
閱讀次數:419410次
8套農村漂亮三間平房圖片,非常適合在農村修建!
閱讀次數:411197次
農村自建房化糞池怎么做?附方案及施工過程
閱讀次數:391783次
農村一層三間平房設計圖,告別土氣養老房,讓人忍不住點贊
閱讀次數:350581次
新農村二層樓房圖片造價12萬,挑一套回家建房吧!
閱讀次數:349126次
