
|
豪華別墅一個功能性要人性化,全方面考慮到人的需求和享受,給人的感覺高端大氣上檔次,并不是復雜的房屋就一定是豪華大別墅。最基本的原則要遵循功能上要動靜區分 主次分明,干濕分區,套間設計,外觀造型優雅,層次分明,色彩協調。 今天小編就分享這套來自廣東湛江的15x11米四層抗震框架結構別墅戶型,相信你看了也會喜歡的~
本戶型為框架結構別墅,建筑物抗震烈度設計為7度,頂層設計有露臺花園,美觀別致。 別墅戶型介紹 層數: 四層 結構形式: 框架結構 主體造價: 35-42萬 開間: 15米 進深:11米 占地面積: 147.04平方米 建筑面積:470.70平方米 平面布局圖:
一層平面圖 一 層:臥室、客廳、門廳、廚房、餐廳、衛生間、車庫
二層平面圖 二 層:主臥(附衛生間、衣帽間、書房)、臥室(附陽臺)、家庭廳、陽臺、衛生間、露臺花園
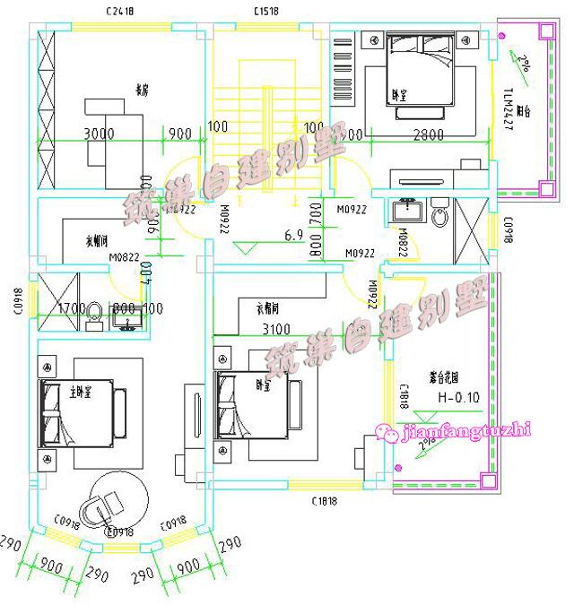
三層平面圖 三 層:主臥(附衛生間、衣帽間、書房)、臥室(附衣帽間、露臺花園)、臥室(附陽臺)、衛生間
四層平面圖 四 層:臥室(附陽臺)、臥室(附衣帽間)、衛生間、露臺花園 各立面圖展示:
正立面圖
右立面圖
左立面圖
背立面圖 圖紙之家-專注農村別墅/自建房設計18年,集合國內200余位經驗豐富的設計師,被評為口碑最好的農村建筑設計公司! |

新農村四層房屋設計圖紙,高端大氣,占地150平方米
占地:150平方米
農村最漂亮平頂三層別墅設計圖,10.5乘11.5米
占地:119.35平方米
帶地下室三層別墅設計圖紙(含外觀效果圖),別墅設計方案
占地:134平方米
歐式三層小洋樓設計圖,外觀氣派,典雅、高貴
占地:145平方米
60多平三層現代風格別墅設計圖,小戶型平屋頂
占地:66.4平方米
復式三層別墅設計圖片及全套圖紙,客廳中空,外觀為歐式建筑的
占地:175平方米
帶車庫農村二層雙拼別墅設計圖,外觀現代
占地:235平方米
農村兩層新中式自建房屋設計圖,受歡迎的帶小配房戶型
占地:多戶型可選
面寬20米農村自建房設計圖一層設計圖,五開間養老戶型
占地:194平方米
130平左右三層樓房設計圖,新農村住宅自建推薦
占地:128平方米
新農村三層房屋設計圖紙大全,新農村住宅圖紙
占地:108平方米
最新設計的三層農村別墅圖紙,帶車庫,帶露臺,占地150平米左右
占地:150平方米
蓋別墅圖紙新農村簡歐二層房屋設計圖,12米×12米左右
占地:128平方米左右
新農村三層房屋設計圖紙(含效果圖),農村小別墅圖紙推薦
占地:116.15平方米
一層中式四合院別墅設計方案圖,含外觀效果圖
占地:360平方米含院子
簡約L型一層平房自建房設計圖,經濟實用
占地:145.283平方米
90平方米農村二層房屋設計圖紙(施工圖+效果圖)
占地:90平方米
12x13米豪華三層農村別墅設計圖,宅基地上的貴族人生
占地:156平方米
一層農村房子設計圖,含外觀效果圖,自建推薦戶型
占地:200平方米
農村三層蓋房設計圖大全,最新的設計,最新的戶型
占地:150平方米
推薦:10套新農村自建房設計圖,2026年最新設計
閱讀次數:4825737次
100套鄉村別墅圖片大全,2026年最新設計
閱讀次數:2492203次
6款農村蓋一層平房的設計圖,10萬元就能建起來
閱讀次數:1852637次
這11個一層農村自建房別墅火爆了朋友圈!我最喜歡戶型十!你呢
閱讀次數:750268次
農村6萬元建一層小別墅圖,你敢相信嗎
閱讀次數:567686次
農村5萬塊就能自建房,6套普通房子設計圖分享,你沒看錯!
閱讀次數:419410次
8套農村漂亮三間平房圖片,非常適合在農村修建!
閱讀次數:411197次
農村自建房化糞池怎么做?附方案及施工過程
閱讀次數:391783次
農村一層三間平房設計圖,告別土氣養老房,讓人忍不住點贊
閱讀次數:350581次
新農村二層樓房圖片造價12萬,挑一套回家建房吧!
閱讀次數:349126次
