
|
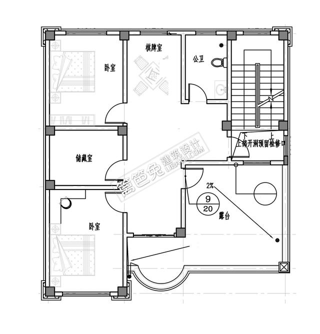
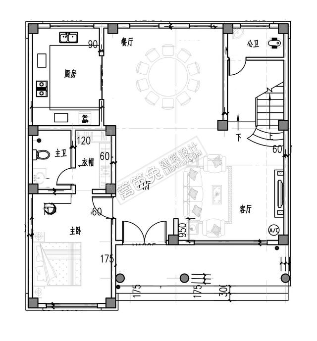
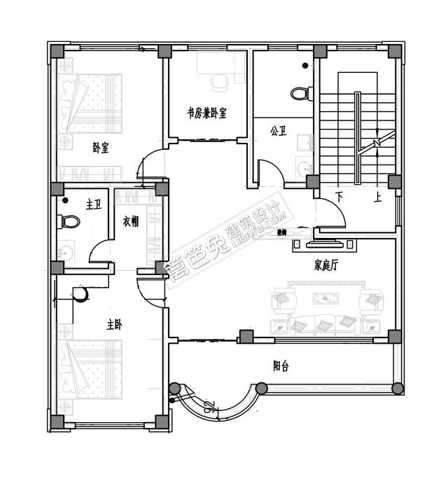
占地只有100平米的四層自建房別墅,三面采光也可以建得很大廈! 如今農村建房是管的越來越緊,很多地方都不但有面積限制還有層高限制,要想批得一塊理想的地基是很難的。下面來看看這款只有100平米占地的自建房; 開間10.46米,進深有11.46米; 一層面積106.7平米,總建筑面積一共是412平米; 每層都設計得有公衛和套房以及大陽臺,頂樓為大露臺
一層
二三層
四層 圖紙之家-專注農村別墅/自建房設計18年,集合國內200余位經驗豐富的設計師,被評為口碑最好的農村建筑設計公司! |

現代田園風格一層農村別墅設計圖效果圖,帶閣樓設計
占地:220平方米
五十萬二層半鄉村別墅,客廳挑空設計,占地200平米左右
占地:200平方米
200平方二層小別墅設計圖紙,含效果圖,歐式風格帶車庫
占地:197.6平方米
大戶型美觀一層平房自建房設計圖,面寬19米左右
占地:245.1平方米
農村三層帶車庫、帶露臺別墅設計圖,經典自建別墅設計方案
占地:160平方米
8.5×12米四層歐式房屋設計圖紙,占地100平,落地窗中嵌入了雕花
占地:100平方米
帶車庫現代三層房屋別墅設計圖,占地110平米左右,功能齊全
占地:110平米
帶地下室的農村自建三層半歐式別墅設計圖,看著真豪氣!
占地:142.45平方米
二層復式樓房設計圖,平實接地氣的平面布局
占地:180平方米
農村小戶型三層別墅設計圖,平屋頂,造價20萬左右
占地:80平方米
農村一層獨棟別墅設計圖,帶閣樓,設計感十足
占地:250平方米
農村兩層半樓房設計圖,平面功能分區明確,布置合理
占地:180平方米
適合兄弟自建的二層雙拼別墅設計方案,帶效果圖
占地:180平方米
經典三層小別墅設計圖紙(效果圖+全套cad建筑圖),新農村自建
占地:120平方米
帶開放式車庫二層農村自建別墅設計方案,造價僅15萬
占地:89.412平方米
200平農村二層別墅設計圖,外觀現代簡約
占地:204平方米
2026二層農村新款別墅新式二層樓房設計圖,非常時尚
占地:多種戶型
帶車庫的別墅設計圖紙,外觀效果圖二層半設計,全套建筑施工圖
占地:174平方米左右
小平米四層自建房屋設計圖紙,戶型簡單實用,占地80平方米
占地:80平方米
帶閣樓的二層半別墅設計圖和效果圖,外飾簡單但不失奢華
占地:210平方米
推薦:10套新農村自建房設計圖,2026年最新設計
閱讀次數:4825737次
100套鄉村別墅圖片大全,2026年最新設計
閱讀次數:2492203次
6款農村蓋一層平房的設計圖,10萬元就能建起來
閱讀次數:1852637次
這11個一層農村自建房別墅火爆了朋友圈!我最喜歡戶型十!你呢
閱讀次數:750268次
農村6萬元建一層小別墅圖,你敢相信嗎
閱讀次數:567686次
農村5萬塊就能自建房,6套普通房子設計圖分享,你沒看錯!
閱讀次數:419410次
8套農村漂亮三間平房圖片,非常適合在農村修建!
閱讀次數:411197次
農村自建房化糞池怎么做?附方案及施工過程
閱讀次數:391783次
農村一層三間平房設計圖,告別土氣養老房,讓人忍不住點贊
閱讀次數:350581次
新農村二層樓房圖片造價12萬,挑一套回家建房吧!
閱讀次數:349126次
