
|
這款二層別墅設計圖開間進深10.8×10.8米,首層占地124.17平方米,總建筑面積227平方米,采用磚混結構,主體造價大概20萬。一層設有2廳1臥1衛1車庫,二層設有1廳3臥1位1陽臺1書房。
效果圖 該戶型采用歐式風格設計,融入了很多時尚的元素,超大落地窗美觀而采光,外觀設計簡約優雅,采用黃色為主色調,溫馨自然。車庫的預留為住戶提供停車位,如果不需要車庫,可以將其作為其他功能使用,靈活性強。室內的客廳挑高樓板,開闊明亮,分區合理,功能齊全。 設計功能 及平面圖展示
一層平面圖 一 層功能設計:車庫、堂屋、挑空客廳、廚房、餐廳、臥室、衛生間
二層平面圖 二 層功能設計: 小客廳(帶陽臺)、臥室x2、臥室(帶書房)、衛生間 圖紙之家-專注農村別墅/自建房設計18年,集合國內200余位經驗豐富的設計師,被評為口碑最好的農村建筑設計公司! |

140平方米三層半新農村房屋別墅設計圖,帶車庫
占地:140平方米
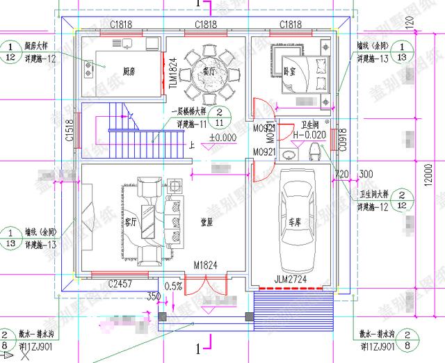
新農村二層歐式別墅設計圖,外觀漂亮,主體18萬起建
占地:115.2平方米
最實用一層小別墅設計方案,造價不高顏值高,家家都喜歡!
占地:143.48平方米
旋轉樓梯挑空獨棟二層簡歐小別墅設計圖,大氣時尚
占地:189.26平方米
農村120平米兩層樓的房子設計圖,外觀新穎
占地:120平方米
面寬15米的農村三層房屋設計圖,帶別墅效果圖
占地:137平方米左右
歐式新農村三層復式樓自建房別墅圖紙,旋轉樓梯設計
占地:128平方米
3款簡單舒適二層別墅設計圖,低調配色,造型簡單大氣
占地:多戶型可選
私人二層中式四合院別墅建筑設計圖,新農村經濟實用戶型
占地:145平方米
15萬左右一層農村自建房設計圖,一家住剛剛好
占地:131.33平方米
豪華三層別墅設計圖紙,全套施工方案帶效果圖
占地:130平方米
新農村現代簡約別墅建筑設計圖紙(含外觀效果圖),28萬左右
占地:107平方米
簡約大氣四開間二層自建房設計圖,16x10米,經典耐看高顏值
占地:160平方米
農村一層小別墅設計圖,經濟大氣,16米乘9米
占地:124.12平方米
170平方米新農村實用的三層雙拼設計圖紙,帶公用堂屋!
占地:173.62平方米
爆款農村一層別墅圖紙設計,看過的都說漂亮實用
占地:144.91平方米
農村簡單雙拼小戶型,簡單適用,客廳中空,總占地210平方米
占地:210平方米
面寬18米二層農村大別墅設計圖,可帶電梯,舒適又實用
占地:138.29平方米
150平方米二層別墅設計及效果圖展示下載,17X10米
占地:150平方米
農村4間2層樓房設計圖,帶車庫,外觀時尚,帶屋頂花園
占地:210平方米
推薦:10套新農村自建房設計圖,2026年最新設計
閱讀次數:4825737次
100套鄉村別墅圖片大全,2026年最新設計
閱讀次數:2492203次
6款農村蓋一層平房的設計圖,10萬元就能建起來
閱讀次數:1852637次
這11個一層農村自建房別墅火爆了朋友圈!我最喜歡戶型十!你呢
閱讀次數:750268次
農村6萬元建一層小別墅圖,你敢相信嗎
閱讀次數:567686次
農村5萬塊就能自建房,6套普通房子設計圖分享,你沒看錯!
閱讀次數:419410次
8套農村漂亮三間平房圖片,非常適合在農村修建!
閱讀次數:411197次
農村自建房化糞池怎么做?附方案及施工過程
閱讀次數:391783次
農村一層三間平房設計圖,告別土氣養老房,讓人忍不住點贊
閱讀次數:350581次
新農村二層樓房圖片造價12萬,挑一套回家建房吧!
閱讀次數:349126次
