
|
農村環境清幽,空氣質量好,山清水秀,藍天白云,夜晚繁星滿天,微風輕拂,最適合養生養老,在農村蓋一棟小別墅,有簡約的時尚,有舒適的布局,由內而外,至上而下都是經過自己把關設計,晚年生活也會過得美滋滋,下面給大家分享2款25萬經濟實用易建造二層平屋頂農村自建房(全套)施工效果圖。 【戶型1】
【戶型2】
![]() 圖紙之家-專注農村別墅/自建房設計18年,集合國內200余位經驗豐富的設計師,被評為口碑最好的農村建筑設計公司! |

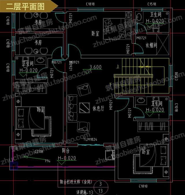
進深14米的二層小別墅設計圖,農村自建房好方案
占地:144平方米左右
帶地下車庫的三層別墅設計圖,160平復式戶型
占地:159.03平方米
高端三層豪宅別墅設計方案圖,帶地下室,過悠然愜意生活
占地:127.06平方米
面寬10米高品質二層別墅設計方案,造價不高顏值很高,非常適合
占地:137.63平方米
230平方農村雙拼別墅設計圖,26x11米自建房屋戶型
占地:230平方米
農村120平方房子設計圖,三層房屋設計圖精選
占地:120平方米
雅致的鄉下二層蓋別墅設計圖紙,造價35萬左右
占地:178平方米
一層半帶閣樓別墅設計圖,悠閑舒適,養老度假皆可
占地:161.94平方米
11.5米乘 11.5米自建房:兩層設計 + 戶型方正,誰看誰心動
占地:128.77平方米
帶架空層車庫/地下室自建一層別墅設計圖,隔潮又能儲物
占地:91.32平方米
一層雙拼別墅獨立入戶+共用墻,兄弟合建,施工隊直呼太省料
占地:269.43平方米
120多平米三層農村別墅設計圖,把實用做到極致,造價適中
占地:126.85平方米
二層現代風格雙拼別墅設計圖,平屋頂,帶地下室設計
占地:192.47平方米
120平方米新農村二層自建房屋設計圖紙大全14x9米
占地:120平方米
210平左右三層(兩層半)雙拼新農村別墅設計圖紙及外觀效果圖
占地:206.712平方米
農村二層帶閣樓四間別墅設計圖,外觀美觀,戶型實用
占地:175平方米
帶小院七字形一層自建房戶型設計圖,平屋頂圖紙
占地:201.08平方米
140-150平方米新農村別墅設計圖紙,帶外觀效果圖,復式戶型
占地:146平方米
高端四間五間兩層別墅設計圖紙,開間20米自建房效果圖
占地:265平方米
農村一層獨棟別墅設計圖,帶閣樓,設計感十足
占地:250平方米
推薦:10套新農村自建房設計圖,2026年最新設計
閱讀次數:4825737次
100套鄉村別墅圖片大全,2026年最新設計
閱讀次數:2492203次
6款農村蓋一層平房的設計圖,10萬元就能建起來
閱讀次數:1852637次
這11個一層農村自建房別墅火爆了朋友圈!我最喜歡戶型十!你呢
閱讀次數:750268次
農村6萬元建一層小別墅圖,你敢相信嗎
閱讀次數:567686次
農村5萬塊就能自建房,6套普通房子設計圖分享,你沒看錯!
閱讀次數:419410次
8套農村漂亮三間平房圖片,非常適合在農村修建!
閱讀次數:411197次
農村自建房化糞池怎么做?附方案及施工過程
閱讀次數:391783次
農村一層三間平房設計圖,告別土氣養老房,讓人忍不住點贊
閱讀次數:350581次
新農村二層樓房圖片造價12萬,挑一套回家建房吧!
閱讀次數:349126次
