
|
在農村房屋設計中,室內的功能實用性是整個戶型考慮的重點,但是隨著人們生活水平的提高,老百姓的審美也大大提高,所以現在農村人建別墅不僅要求室內功能布局合理實用,房屋的外觀也要設計得漂亮,有自己的特色,這樣在村的里面眾多別墅中才能夠與眾不同! 別墅外觀,其實只要搭配好了外裝,無論是用真石漆還是外墻磚等,只要按照自己喜歡的圖紙樣式弄,都是很漂亮的,在當地一定是道靚麗的風景線。 今天小編就分享一款三層別墅設計案例,有多個建成案例實景圖,大家更喜歡哪一套的外觀設計呢? 原別墅設計效果圖:
這套戶型是簡約歐式風格的建筑,內部整體的空間規劃相對緊湊大方,大露臺有最大化的觀景視覺效果,營造了一個簡單溫馨舒適的家。 戶型信息 編號:zcC154 層數:三層 結構形式:框架結構 主體造價:18-22萬 開間:11.4米 進深:10.4米 占地面積:118.19平方米 建筑面積:267.92平方米 平面圖展示:
一層平面圖 一 層:玄關、客廳、餐廳、廚房、衛生間、臥
二層平面圖 二 層:臥室(帶衛生間、帶陽臺)、臥室、起居室(帶陽臺)、衛生間
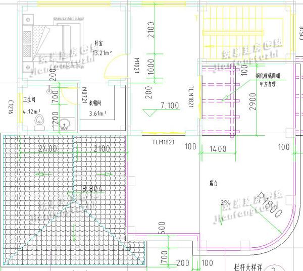
三層平面圖 三 層:臥室(帶衣帽間、帶衛生間)、露臺 別墅建成案例實景圖: 實拍圖1:
該戶型外觀以桔色屋頂 米黃色瓷磚二層外墻 棕褐色文化石一層外墻的搭配而成,顯得沉穩典雅,紅木質的窗框提高了整棟別墅的時尚氣息,在房屋外圍種上一些樹木,優化周圍的環境,隨時可以呼吸著新鮮的空氣,這樣的住房環境也是非常令人羨慕的! 實拍圖2:
該戶型咖啡色以及磚紅色外墻,第一個實拍圖相比,別墅的外觀顏色就顯得更加鮮明艷麗,整棟房屋外觀有紋理,有質感,時尚霸氣,能夠刺激人的眼球,給人留下深刻印象! 實拍圖3:
該戶型與前面兩個戶型的外觀比起來,該別墅外觀就顯得更加淡雅溫和低調,給人一種輕松舒適的心情,院子足夠大,晾曬糧食、種上果樹以及花花草草的等,打造一個溫馨、綠草如茵的農家小院! 實拍圖4:
該戶型外墻以黃褐色文化磚搭配乳色墻漆裝飾而成,簡單大氣,施工方便。 不同的別墅外觀也能夠體現出戶主的性格,有些比較低調的,就喜歡選擇比較簡約淡雅的裝飾,反之! 看了上面的4套別墅案例實拍,大家更喜歡哪一套戶型的外觀裝飾風格? 圖紙之家-專注農村別墅/自建房設計18年,集合國內200余位經驗豐富的設計師,被評為口碑最好的農村建筑設計公司! |

100平方米左右新農村二層房屋設計建筑CAD圖紙帶外觀效果圖
占地:多戶型可選
110平方米農村三層自建房設計圖紙帶外觀圖
占地:110平方米
12x9米自建一層小別墅設計圖,占地不大造價低,簡單舒適人人夸
占地:108.36平方米
農村小戶型三層別墅設計圖,平屋頂,造價20萬左右
占地:80平方米
大戶型美觀一層平房自建房設計圖,面寬19米左右
占地:245.1平方米
30萬農村小別墅設計圖片,30萬別墅設計戶型推薦
占地:130平方米
帶獨立堂屋的農村自建房設計,二層別墅設計方案圖
占地:109平方米左右
高端三層別墅設計圖紙,客廳中空,帶地下室,設置多個套間
占地:220平方米
二層中式四合院別墅設計圖,經典、漂亮(全套施工圖)
占地:350平方米
農村二層住宅設計圖,大窗戶客廳,一起享受大面積采光的溫暖
占地:220平方米
180平高端歐式三層別墅圖紙設計,大戶型復式客廳
占地:182.016
110平方米新農村二層別墅設計圖及效果圖,12.36x9.36米
占地:115平方米
農村兩層新中式別墅圖紙設計圖,外觀圖片大氣,21萬左右
占地:108平方米
新中式農村自建二層別墅設計圖,占地160平米左右,客廳中空
占地:160平方米
歐式獨棟二層小別墅設計圖,客廳中空,占地126平米
占地:120平方米
2026年新款別墅外觀圖,新中式風格,比簡歐大氣,時尚
占地:135平方米
面寬13米二層鄉村自建別墅戶型圖,帶堂屋和露臺
占地:135.47平方米
一層共用,二層兄弟雙拼的二層別墅設計圖
占地:182.48平方米
鄉下建房一層半戶型圖,占地160平米,帶閣樓
占地:多種戶型
帶屋頂平臺的一層農村小別墅圖,有閣樓有露臺
占地:152平方米
推薦:10套新農村自建房設計圖,2026年最新設計
閱讀次數:4825737次
100套鄉村別墅圖片大全,2026年最新設計
閱讀次數:2492203次
6款農村蓋一層平房的設計圖,10萬元就能建起來
閱讀次數:1852637次
這11個一層農村自建房別墅火爆了朋友圈!我最喜歡戶型十!你呢
閱讀次數:750268次
農村6萬元建一層小別墅圖,你敢相信嗎
閱讀次數:567686次
農村5萬塊就能自建房,6套普通房子設計圖分享,你沒看錯!
閱讀次數:419410次
8套農村漂亮三間平房圖片,非常適合在農村修建!
閱讀次數:411197次
農村自建房化糞池怎么做?附方案及施工過程
閱讀次數:391783次
農村一層三間平房設計圖,告別土氣養老房,讓人忍不住點贊
閱讀次數:350581次
新農村二層樓房圖片造價12萬,挑一套回家建房吧!
閱讀次數:349126次
