
|
為何很多人都不在農村生活了,但是還是要在老家花幾十萬建棟房子,我想最主要的原因就是即便我們走的再遠,故鄉也是牽住我們的那根線,如果沒有了根,我們就只能隨處飄蕩無處棲息。建房子選歐式風格的還是最多的,下面是4棟建在農村的歐式別墅,建第二棟的肯定是村里頂有錢的人。 第一棟使用了浮雕裝飾的外墻面,配色看上去也是格外舒服,建房尺寸為13.68×12.18米。
平面布局說明:一層一室兩廳一廚兩衛,入戶是被隔斷的玄關還能擺放神位,二層有四室一廳兩衛一書房,還配有陽臺一個,兩邊是小羅馬柱裝飾構件,三層有三室一衛,另配有休閑茶室、娛樂廳、涼亭和露臺。
第二棟是個豪華別墅戶型,建這棟別墅的肯定是村里面出名的有錢人了,建房尺寸為12.48×18.82米。
平面布局說明:前后通透的設計,一層有一室兩廳一廚兩衛,還有一次臥室(儲物間或娛樂間),二層有兩室一廳兩衛,有單獨的衣帽間和書房,主臥不僅有主衛,還有自帶的觀景陽臺;三層有四間臥室設計,豪華主臥更是有主衛,有衣帽間,有露臺。
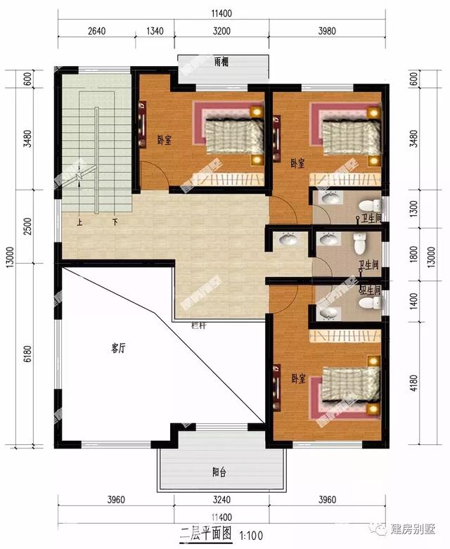
第三棟是純歐式外觀的戶型,這樣的房子建在農村肯定能引來很多的注意,建房尺寸為11.4×13米。
平面布局說明:與第二棟一樣也是前后通透型,一層有一室兩廳一廚兩衛,除了客廳,在另一側更有中空的茶室;二層有三個房間三個衛生間,三層同樣的三個房間三個衛生間,還配有一個書房和休閑露臺。
第四棟別墅是一個造型比較不一般的戶型,屋頂預留了生活平臺,建房尺寸為11.6×14.3米。
平面布局說明:一層有兩室兩廳一廚兩衛,老人房不僅有主衛還有小陽臺,另外有個娛樂室配備,客廳為了采光好使用了多邊形采光窗;二層有四室兩廳一衛,主臥室有內書房和外陽臺,三層有四室一廳一層,該層的室外休閑空間比較多。
這四棟別墅都是一個比一個好,一棟比一棟豪華,造價最高的肯定是第二棟了,其他三棟差價相差不會很大。 圖紙之家-專注農村別墅/自建房設計18年,集合國內200余位經驗豐富的設計師,被評為口碑最好的農村建筑設計公司! |

35萬左右的農村小別墅設計圖及效果圖,新中式風格
占地:137平方米
歐式三層樓房設計圖,客廳中空,旋轉樓梯,帶土灶房
占地:206平方米
240平方米新農村漂亮的兄弟雙拼別墅設計圖紙,單戶120平
占地:239平方米
最美農村一層合院設計圖紙,自建一棟火遍十里八鄉
占地:190平方米左右
110平方米農村三層復式房屋施工圖,通透時尚,低調又奢華
占地:107.98平方米
2026最美三層別墅設計圖紙及效果圖,十佳最美農村別墅
占地:151平方米
小戶型現代新農村三層房屋設計建筑圖及效果圖
占地:108平方米
80多平米二層小型自建房設計圖,經濟舒適別具一格
占地:84.48平方米
最美二層樓別墅圖片大全及全套建筑設計圖紙,20萬左右
占地:140平方米
占地105平實用三層樓房別墅設計圖紙,造型方正簡單大氣
占地:105平方米
160平方米歐式一層半別墅施工設計圖紙13X13米
占地:160平方米
一層半復式帶閣樓別墅設計圖,含外觀圖片
占地:150平方米
簡歐漂亮農村二層別墅設計方案圖紙,12米乘9米
占地:多戶型可選
面寬22米的高端三層自建房別墅設計圖,功能齊全
占地:222.47平方米
四開間一層自建房設計圖,四臥二廳+棋牌室+書房
占地:181.29平方米
農村一層平房別墅設計圖紙,130平米左右,主體十幾萬
占地:130平方米左右
新式帶挑空客廳三層鄉村別墅設計圖,占地170平左右
占地:170平方米
歐式大氣新農村三層別墅豪宅設計圖,外觀高端,對稱設計
占地:225平方米左右
140平方米三層別墅設計圖紙,歐式帶外觀效果圖
占地:140平方米
帶堂屋設計一層5間平房新農村自建別墅效果圖全套施工圖
占地:198.41平方米
推薦:10套新農村自建房設計圖,2026年最新設計
閱讀次數:4825737次
100套鄉村別墅圖片大全,2026年最新設計
閱讀次數:2492203次
6款農村蓋一層平房的設計圖,10萬元就能建起來
閱讀次數:1852637次
這11個一層農村自建房別墅火爆了朋友圈!我最喜歡戶型十!你呢
閱讀次數:750268次
農村6萬元建一層小別墅圖,你敢相信嗎
閱讀次數:567686次
農村5萬塊就能自建房,6套普通房子設計圖分享,你沒看錯!
閱讀次數:419410次
8套農村漂亮三間平房圖片,非常適合在農村修建!
閱讀次數:411197次
農村自建房化糞池怎么做?附方案及施工過程
閱讀次數:391783次
農村一層三間平房設計圖,告別土氣養老房,讓人忍不住點贊
閱讀次數:350581次
新農村二層樓房圖片造價12萬,挑一套回家建房吧!
閱讀次數:349126次
