
|
農村的孩子對農村的柴火灶都有著很深的情節,和父母家人圍著柴火灶吃飯的時候特別香。現在農村都建起了別墅,想念柴火飯的香味,又想擁有一棟高端大氣的別墅,但是擔心燒柴火時候的煙會影響到自己,還會使別墅不美觀,怎么辦?其實,柴火灶也可以讓別墅更具有輕奢感。9款帶柴火灶的農村別墅,讓你魚與熊掌兼得。 戶型一
樓層:一層 開間:12.6米 進深:10.2米 占地面積:135.11平方米 建筑面積:170.21平方米 結構形式:磚混
這是一款比較傳統的一樓別墅設計,帶有3個臥室,餐廳與客廳相連,廚房設計成柴火灶,簡約的風格設計,帶給你舒適體驗。 戶型二
樓層:一層 開間:13.2米 進深:13.1米 占地面積:166.97平方米 建筑面積:186.97平方米 結構形式:磚混
浪漫的設計,擁有一個主臥和兩個臥室,主臥帶有私衛和衣帽間,并且,主臥窗口是落地窗風格,視野開闊,廚房可設計成柴火灶,當浪漫和美食邂逅,將帶給你幸福和美好。 戶型三
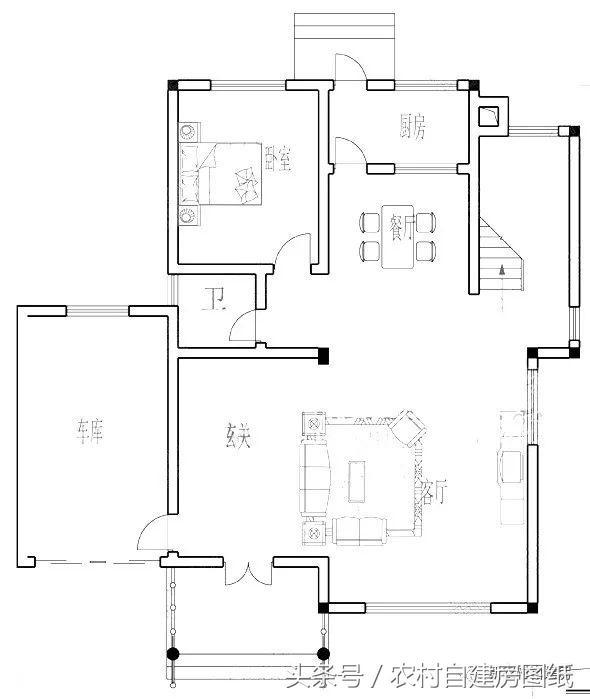
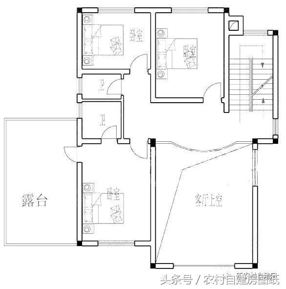
樓層:兩層 開間:13米 進深:10米 占地面積:142.24平方米 建筑面積:339.66平方米 結構形式:磚混
一樓為活動區,二樓為起居區,在一樓又帶有老人房,并配有私衛,方便老人,廚房設計為柴火灶,入門即可看見的餐廳,一家人可以坐在一起,給人一種家和萬事興的感覺。 戶型四
樓層:兩層 開間:15.5米 進深:10.2米 占地面積:154.38平方米 建筑面積:368.75平方米 結構形式:磚混
采用多客廳設計,每層具有一個客廳,并且具有會客區以及娛樂室,還帶有許多舒適的客房,家里親朋好友再多都不怕,能容納多人,并且給人賓至如歸的感覺,如果你屬于熱情好客,并且家里親朋好友多的可以考慮這一套設計。 戶型五
樓層:兩層 開間:11.6米 進深:10.8米 占地面積:123.83平方米 建筑面積:245.81平方米 結構形式:磚混
喜歡典雅設計又想擁有柴火灶,那么這款很適合你,復式設計的客廳,加上推拉門式的獨立廚房,并且擁有三個帶有主衛的臥室,凸顯典雅氣質。 戶型六
樓層:兩層 開間:11.8米 進深:10.6米 占地面積:133.79平方米 建筑面積:305.26平方米 結構形式:磚混
現代風設計的兩層別墅,看上去寬敞舒適,具有很好的采光,并且擁有具有柴火灶的獨立廚房,是一款現代與傳統碰撞的別墅設計。 戶型七
樓層:三層 開間:12.2米 進深:12.5米 占地面積:135.75平方米 建筑面積:350.77平方米 結構形式:框架
歐式建筑風格,帶有車庫和復式客廳,車庫與屋內相連,方便進出,復式客廳加大窗設計,提高了屋內的采光,讓鄉村的田園風光盡在眼前。天然巖石紋理,凸顯了主人的沉穩氣質。 戶型八
樓層:三層 開間:14.2米 進深:12.8米 占地面積:153.11平方米 建筑面積:364.44平方米 結構形式:磚混
傳統紅磚外層設計,一樓客廳餐廳廚房和臥室對分,二樓多以弧形窗設計,簡約大氣,加上復式設計的客廳,最突出的是它的錯層式設計,其不同使用功能不在同一平面層上,形成多個不同標高平面的使用空間和變化的視覺效果。住宅室內環境錯落有致,極富韻律感。同一單元相鄰之間兩套住宅層面高度為分別錯開半層高度,使原來每跑樓梯平臺兩戶改為每跑樓梯平臺一戶,既為住戶提供方便,又增加了住戶的私密性。在功能與感覺上均展現出新的特色。 戶型九
樓層:二層 開間:24米 進深:13.35米 占地面積:135.75平方米 建筑面積:350.77平方米 結構形式:磚混
適用于兄弟雙方的設計,別墅呈對稱形式,并且在每一邊的一樓都有老人房,方便老人生活起居,由于其空間大,可變動性強,并配有柴火灶設計,左右對稱但兩邊其實互不相通,可以使雙方和諧生活還保留了私密感。 圖紙之家-專注農村別墅/自建房設計18年,集合國內200余位經驗豐富的設計師,被評為口碑最好的農村建筑設計公司! |

農村三層兄弟雙拼別墅設計圖及效果圖片,14X12米自建戶型
占地:154平方米
12.5乘12米大氣優雅二層自建房設計圖,精美舒適布局實用
占地:149.27平方米
高端大氣三層別墅設計圖,建好就是村里最靚的
占地:120平方米
南方新農村三層樓房設計圖紙,帶房屋效果圖
占地:110平方米
五間兩層農村自建房設計圖,大門居中真氣派,空間寬敞生活質量
占地:219.94平方米
小占地三層現代時尚風別墅設計圖,平屋頂占地不足100平
占地:98.35平方米
二層中式四合院別墅設計圖,經典、漂亮(全套施工圖)
占地:350平方米
120平方三層房子設計圖,漂亮實用農村自建小別墅設計圖
占地:120平方米
爆款二層自建房別墅設計圖,不追求奢華,建個溫馨實用的家
占地:100平方米
一層自建別墅設計圖,占地70平不大功能很齊全,非常適合農村養
占地:69.61平方米
160平方米新農村三層半別墅設計圖11X16米65萬以內
占地:160平方米
小戶型農村三層房屋設計圖,占地120平米,布局非常合理,外表典
占地:120平方米
雙戶168平方米小戶型新農村雙拼樓房設計建筑圖紙帶外觀圖
占地:168平方米
帶地下車庫的三層別墅設計圖,160平復式戶型
占地:159.03平方米
農村三間三層半別墅設計圖,舒適寬敞時尚經濟,居住生活方便舒
占地:168.29平方米
農村20萬左右三層住房設計圖,小宅基地首選
占地:95平方米
125平方米新農村二層房屋施工設計CAD圖紙加效果圖
占地:125平方米
兩層三間農村房屋設計圖,新農村住宅方案推薦
占地:155平方米
背面不開窗二層別墅設計圖,對稱設計簡單好看,眾多建房者的選
占地:183.79平方米
三層新農村別墅設計圖片及全套圖紙,外形對稱,帶露臺,這個戶
占地:160平方米
推薦:10套新農村自建房設計圖,2026年最新設計
閱讀次數:4825737次
100套鄉村別墅圖片大全,2026年最新設計
閱讀次數:2492203次
6款農村蓋一層平房的設計圖,10萬元就能建起來
閱讀次數:1852637次
這11個一層農村自建房別墅火爆了朋友圈!我最喜歡戶型十!你呢
閱讀次數:750268次
農村6萬元建一層小別墅圖,你敢相信嗎
閱讀次數:567686次
農村5萬塊就能自建房,6套普通房子設計圖分享,你沒看錯!
閱讀次數:419410次
8套農村漂亮三間平房圖片,非常適合在農村修建!
閱讀次數:411197次
農村自建房化糞池怎么做?附方案及施工過程
閱讀次數:391783次
農村一層三間平房設計圖,告別土氣養老房,讓人忍不住點贊
閱讀次數:350581次
新農村二層樓房圖片造價12萬,挑一套回家建房吧!
閱讀次數:349126次
