
|
我發現,現在小編在網上經常可以看到關于農村自建房的新聞,有介紹圖紙的,有分享建房案例的。還會看到很多業主點贊之類的。 但是如果你家真想建房,你會不會感到迷茫?因為網上千篇一律的圖紙太多了,款式多到挑花眼,根本不知道什么才是最適合自己的,而且現在建房外觀不僅要好看,更注重生活的舒適性。 小編說的這話并不是有感而發,而是今天要分享的業主段大哥的真是實例。段大哥在年初的時候找到我們,說因為網上圖紙太多,不知道什么才是適合自己的,而且段大哥知道好的圖紙,不僅省時,省力,還會省錢,小編建議說可以根據自身情況去定做一套圖紙,定做圖紙不僅可以根據自家的地形尺寸,還有自身戶型要求,還會根據土壤等詳細情況去使用鋼筋建材。段大哥聽后果斷定制了一款三層別墅圖紙,一起來看看段大哥定做的設計圖與段大哥建好的實拍圖吧。 設計師做好的效果圖:
圖紙詳情信息:本戶型為115平旋轉樓梯三層復式別墅房屋設計圖,含外觀效果圖,外觀時尚、漂亮、經典,戶型合理,功能齊全。 占地面積:10.5m*11.0m,115平方米左右;建筑高度:12.33米(含屋頂);
段大哥發來自家小別墅的實拍圖: 航拍圖: 從無人機鏡頭遠遠望去,這棟別墅就已吸引了全部視線。 咱們一起仔細看一下外觀: 外墻色彩搭配多變化非常搶眼;采用了大面積的玻璃窗以及時尚大氣的落地窗,極大地改善采光同時外觀看起來更大氣、精美,最后就是陽臺露臺更多同時也非常實用。 段大哥說這棟別墅蓋好之后,整個村里都轟動了,幾百年村里從來沒有這么洋氣的別墅。 段大哥還說蓋好效果杠杠的,比效果圖都要好看,漂亮的多,而且是全村最漂亮的。 大家細看一下外觀細節,是不是很精致,看到這里小編想到一句話,細節決定品質,別管在多偏的山村,只要有恒心,不怕達不到目的! 具段大哥分享,主體+窗戶+外裝,花費了28萬左右。大家看到這個報價是不是很驚訝,小編也一樣。但是后來聽段大哥說它們哪里的人工費很低,同時材料也要比其它地區偏低一些,小編就相信了。如果你也有28萬,想不想也在農村建這么一棟呢? 圖紙之家-專注農村別墅/自建房設計18年,集合國內200余位經驗豐富的設計師,被評為口碑最好的農村建筑設計公司! |

帶車庫農村二層樓房設計圖,外觀漂亮,精致
占地:154平方米
泰式風格三層小別墅設計圖,帶車庫和大露臺
占地:120平方米
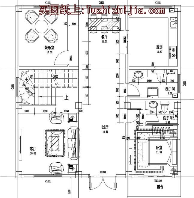
復式、旋轉樓梯三層別墅設計方案圖,戶型合理、實用
占地:138平方米
12×11米兩層農村建房圖紙,農村建房最佳戶型,簡單的風格
占地:140平方米
好評不斷二層簡歐房屋設計圖,占地150平,農村建房就選它
占地:150平方米左右
125平兩層別墅房屋設計圖,帶普通和復式兩個戶型
占地:125平方米
新款私人定制四層歐式獨棟住宅別墅設計圖紙,含外觀效果圖
占地:138平方米左右
大戶型帶車庫的兩層農村自建房設計圖,施工簡單,戶型方正
占地:236平方米
雙拼豪華高端三層別墅設計圖,外觀效果圖大氣
占地:300平方米
二層自建房子最新款設計圖,平屋頂簡約經濟,美觀不失大方。
占地:115.64平方米
背面不開窗二層別墅設計圖,對稱設計簡單好看,眾多建房者的選
占地:183.79平方米
農村三層自建房子圖紙設計方案,開間11米左右
占地:151.96平方米
簡單實用的二層雙拼別墅設計圖,總占地150平米左右,雙拼房屋
占地:150平方米MB
最好看的農村三層樓房設計圖,占地113平米,小平米大格局
占地:110平方米
農村一層平房設計圖及效果圖,一層房屋設計方案推薦
占地:270平方米
兩層平屋頂帶地下室別墅設計方案(全套自建房施工圖+效果圖)
占地:152.55平方米
三層別墅設計施工圖紙(含外觀效果圖)帶大露臺
占地:160平方米
一層帶地下室雙拼別墅設計圖,理想鄉村生活的標配
占地:416平方米
150平方米的新農村自建三層小別墅設計施工圖紙及效果圖
占地:150平方米
簡單實用的四層農村自建房屋設計圖,占地100平米左右
占地:100平方米
推薦:10套新農村自建房設計圖,2026年最新設計
閱讀次數:4825737次
100套鄉村別墅圖片大全,2026年最新設計
閱讀次數:2492203次
6款農村蓋一層平房的設計圖,10萬元就能建起來
閱讀次數:1852637次
這11個一層農村自建房別墅火爆了朋友圈!我最喜歡戶型十!你呢
閱讀次數:750268次
農村6萬元建一層小別墅圖,你敢相信嗎
閱讀次數:567686次
農村5萬塊就能自建房,6套普通房子設計圖分享,你沒看錯!
閱讀次數:419410次
8套農村漂亮三間平房圖片,非常適合在農村修建!
閱讀次數:411197次
農村自建房化糞池怎么做?附方案及施工過程
閱讀次數:391783次
農村一層三間平房設計圖,告別土氣養老房,讓人忍不住點贊
閱讀次數:350581次
新農村二層樓房圖片造價12萬,挑一套回家建房吧!
閱讀次數:349126次
