
|
現在農村建房很多都是當地的施工隊,當地施工隊一般是根據經驗施工,所以圖紙此時就尤為重要。擁有專業的施工圖紙,有利于施工隊從前期的規劃設計中,根據當地的圖紙情況、氣候情況結合整體情況建造,在防水、現澆,砌墻等需要注意的地方也會引起重視。所以建房的戶型最好選擇施工簡單、造價經濟的,今天推薦的這5套別墅圖紙在農村地區都能建起來。 01
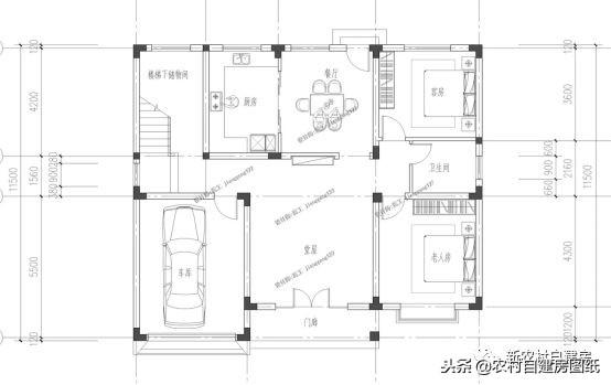
這棟二層別墅屬于框架結構,13.53X11.5米,占地面積150.3平米,總建筑總面積280.3平米。
左側是車庫,方便平時出行,車庫有一個后門和室內連通。屋前有門廊,可以擺放一些花草,增加美觀度。進門是堂屋,可以擺放神龕,紅白喜事也可以再次進行。樓梯間設計了儲物間,充分利用室內空間。二層又3臥室、1客廳、1書房、1露臺、1陽臺,露臺上有一個涼亭設計。 02
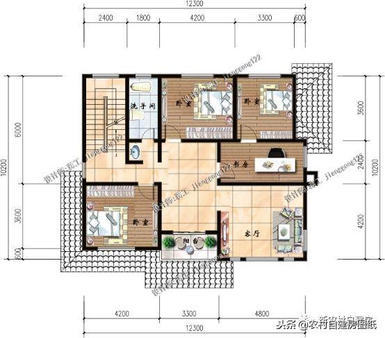
這是一棟經典的田園風別墅,同樣是框架結構建筑。13.7X10.2米,占地131.03平米,總建筑面積291.61平米。
一層洗手間設計在樓梯下,不會浪費活動區面積,并且設計了洗漱間,干濕分離。娛樂室平時可以休閑娛樂,讓農村生活不再單調。二樓有安靜的書房提供學習、工作的場所,客廳的設計方便招待客人。 03
這棟清新秀雅風格的二層別墅屬于磚混結構,12.6X10.1米,占地面積116.3平米,總建筑面積253平米。
一樓有一個門廊和小陽臺的設計,在農村這樣的設計比較少見。客廳方正大氣,主人家的品味不言而喻。二樓3間臥室空間都比較寬敞,而且相對獨立,讓家人之間彼此不被打擾。 04
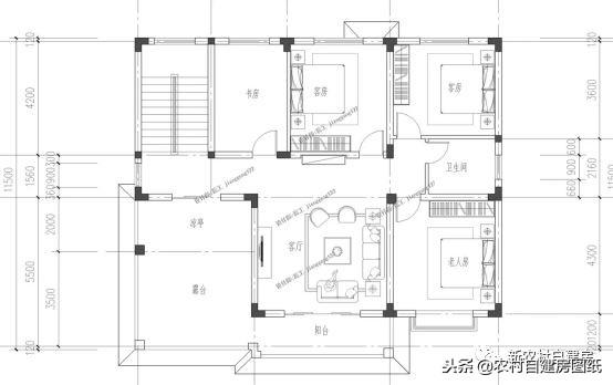
本戶型屬于磚混結構建筑,比較方正的戶型設計。12.3X11.2米,占地面積141.5平米,總建筑面積344平米。
這樣的戶型設計側重于居住品質的提高,一層朝南的臥室帶有內衛,適合家中的老人居住,二樓朝南的臥室一共3間,兩間帶有內衛,一間帶有陽臺,配置奢華讓人羨慕。 05
樸素典雅的三層別墅,整體采用瓷磚裝飾,易于建造。14.5X12.5米,占地面積157.59平米,總建筑面積436.65平米。
又是一款側重居住品質的別墅,一層除了基本的功能區,還設計了大氣的挑空客廳和旋轉樓梯,以及影音室和娛樂室,不需要也可以改建成臥室。二樓設計了2臥室、1書房、1休閑廳、1衛生間、1陽臺 。三層布局和二層布局類似,只是客廳設計成了衣帽間,多了一個大露臺和有收納功能的儲藏室。 現在很多農村人建房為了攀比,不僅要建的棋牌,還會使用很多復雜的歐式構件,室內空間布局根本不貼合農村實際。農村施工隊雖然有不少施工經理,但是技術知識和建房規范仍然匱乏。所以建房子首先一定要把圖紙弄明白,再考慮其它方面。 圖紙之家-專注農村別墅/自建房設計18年,集合國內200余位經驗豐富的設計師,被評為口碑最好的農村建筑設計公司! |

歐式三層農村別墅設計圖,占地130平方米自建房,低調又奢華鄉村
占地:129.8平方米
17X12米三層雙拼別墅自建房設計圖,歐式風格,戶型方正
占地:190平方米
二層自建房子最新款設計圖,平屋頂簡約經濟,美觀不失大方。
占地:115.64平方米
140平方米清新別致新農村兩層房屋設計圖紙大全12x13米
占地:140平方米
農村大氣四層樓房圖片及全套設計圖紙,復式客廳旋轉樓梯
占地:143平方米
農村四間兩層樓房設計圖,帶車庫,時尚經濟,最適合農村施工的
占地:180平方米
170平方米新農村實用的三層雙拼設計圖紙,帶公用堂屋!
占地:173.62平方米
帶柴火房農村一層自建房設計圖,戶型布局接地氣
占地:126.29平方米
130平方米復式三層別墅房屋設計圖,含外觀效果圖
占地:130平方米
一層雙拼別墅獨立入戶+共用墻,兄弟合建,施工隊直呼太省料
占地:269.43平方米
小戶型三層別墅房屋設計圖紙,占地80多平米,麻雀雖小五臟俱全
占地:80平方米
140平方米三層豪華新中式別墅設計圖紙帶外觀效果圖
占地:141.35平方米
網紅中式一層三合院別墅設計圖,白墻黛瓦古典大氣,讓人心曠神
占地:248.82平方米
全新農村簡歐風格三層房屋別墅效果圖,110和210兩個戶型,帶電梯
占地:多種戶型
二層歐式小別墅設計方案,全套建筑設計圖紙+外觀效果圖
占地:146平方米
最實用一層小別墅設計方案,造價不高顏值高,家家都喜歡!
占地:143.48平方米
帶車庫簡約二層小別墅房屋設計圖紙,占地120平米,彎彎的樓梯打
占地:120平方米
歐式二層別墅cad施工圖紙,含效果圖,歐式別墅設計圖紙展示
占地:189平方米
經典三層雙拼樓房設計圖,經典外觀,經典戶型
占地:225平方米
最新款二層鄉下別墅設計圖,新中式風格,24萬建好主體
占地:150.94平方米
推薦:10套新農村自建房設計圖,2026年最新設計
閱讀次數:4825737次
100套鄉村別墅圖片大全,2026年最新設計
閱讀次數:2492203次
6款農村蓋一層平房的設計圖,10萬元就能建起來
閱讀次數:1852637次
這11個一層農村自建房別墅火爆了朋友圈!我最喜歡戶型十!你呢
閱讀次數:750268次
農村6萬元建一層小別墅圖,你敢相信嗎
閱讀次數:567686次
農村5萬塊就能自建房,6套普通房子設計圖分享,你沒看錯!
閱讀次數:419410次
8套農村漂亮三間平房圖片,非常適合在農村修建!
閱讀次數:411197次
農村自建房化糞池怎么做?附方案及施工過程
閱讀次數:391783次
農村一層三間平房設計圖,告別土氣養老房,讓人忍不住點贊
閱讀次數:350581次
新農村二層樓房圖片造價12萬,挑一套回家建房吧!
閱讀次數:349126次
