
|
農村小別墅自開春開始就如雨后春筍般冒出,到現在7月底大部分的都已經初具雛形了,爭奇斗艷好不熱鬧,而什么樣的別墅才能得到大多數人的認可呢,這也是很多人好奇的,今天我就精選3款2018年大熱二層別墅,超受歡迎,在農村遍地開花,經典大氣建成20年不過時,一起來跟我看看吧! 第一款
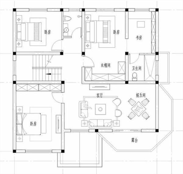
第一款相信農村建房的朋友不陌生吧,爆款中的爆款,外形極具個人特色,不落俗套,文化石與真石漆的完美搭配,顯得生動活潑增加了貴氣的感覺。開間:12.6米,進深:11.6米,占地面積:139.29平方米,建筑面積:278.59平方米,結構類型:磚混結構。
室內布局合理明晰,挑空客廳是一大亮點,已入戶就能感覺到大氣的豪宅感覺,5室的設計在二層別墅里算多的,滿足一般家庭不在話下,很實用的別墅! 第二款
又是一款特色別墅,個性十足,八角窗的設計既增加了室內采光又美觀時尚,入戶還帶階梯很有儀式感,氣質別墅非他莫屬。開間:13米,進深:12.5米,占地面積:153.4平方米,建筑面積:286.2平方米
第三款
精致美觀一看就喜歡,線條感很強,像一個藝術品,放在城市中都是不容忽視的存在,建成秒殺周圍別墅,二層又如何,照樣能雍容大氣,開間:12.6米,進深:11.4米,占地面積:138.95平方米,建筑面積:248.81平方米
三款別墅你喜歡哪一款呢? 圖紙之家-專注農村別墅/自建房設計18年,集合國內200余位經驗豐富的設計師,被評為口碑最好的農村建筑設計公司! |

人字坡紅磚一層別墅設計圖,簡約低調超實用,這樣的房子人人能
占地:136.51平方米
150平農村三層歐式別墅設計圖紙,盡顯豪華與精致,讓人羨慕不已
占地:147.62平方米
新農村中式一層三合院效果圖及全套設計圖,喜歡合院的有福了
占地:118平方米
一層農村自建房別墅設計圖,簡潔時尚的設計,給父母建養老房
占地:144平方米
3層20萬農村自建房設計圖,占地110平米
占地:110平方米
自建一層三合院別墅圖,雅致鄉村居造價經濟,南北通透更宜居!
占地:176.36平方米
精致農村別墅圖,150平米一層三合院設計,四臥二廳舒適宜居
占地:149.43平方米
兩戶190平方米新農村雙拼別墅全套設計方案及效果圖
占地:191平方米
面寬20米四開間二層別墅,火爆全村的戶型,美好生活的起點
占地:245.73平方米
100平方米自建房二層設計圖紙及效果圖,12x9米
占地:100平方米
最新潮的90平方米三層房屋設計圖 ,古樸典雅又不失時尚
占地:90平方米
高端大氣三層半別墅客廳挑空設計,豪華農村自建房圖
占地:179.52平方米
30萬預算三層別墅設計圖紙及效果圖,新農村自建推薦
占地:110平方米
青瓦仿古中式大型三層別墅設計圖,韻味十足復古大氣
占地:300平方米
12.5乘12米大氣優雅二層自建房設計圖,精美舒適布局實用
占地:149.27平方米
180平方米新農村三層別墅設計圖紙,效果圖+全套cad施工圖
占地:180平方米
小戶型三層現代風別墅設計圖,可別再說農村不適合現代風了
占地:92.34平方米
簡單的二層樓房圖片及設計方案,自建樓房必看
占地:140平方米
130平米左右三層農村小別墅,經典永不過時三層小洋樓
占地:130平方米
125平方米新中式農村自建三層別墅建筑設計圖紙及效果圖
占地:124平方米
推薦:10套新農村自建房設計圖,2026年最新設計
閱讀次數:4825737次
100套鄉村別墅圖片大全,2026年最新設計
閱讀次數:2492203次
6款農村蓋一層平房的設計圖,10萬元就能建起來
閱讀次數:1852637次
這11個一層農村自建房別墅火爆了朋友圈!我最喜歡戶型十!你呢
閱讀次數:750268次
農村6萬元建一層小別墅圖,你敢相信嗎
閱讀次數:567686次
農村5萬塊就能自建房,6套普通房子設計圖分享,你沒看錯!
閱讀次數:419410次
8套農村漂亮三間平房圖片,非常適合在農村修建!
閱讀次數:411197次
農村自建房化糞池怎么做?附方案及施工過程
閱讀次數:391783次
農村一層三間平房設計圖,告別土氣養老房,讓人忍不住點贊
閱讀次數:350581次
新農村二層樓房圖片造價12萬,挑一套回家建房吧!
閱讀次數:349126次
