
|
許多人在建房是,喜歡設計花園和后院,這三款帶走廊的歐式建筑,不僅是房屋動線更多,還使得房屋更加宏偉,美輪美奐,并且走廊的設計還會與風水有關,一個好的走廊設計可以帶來的不單單是美觀,還有對生活的享受。 戶型一
開間:12.9米 進深:11.6米 占地面積:128.43平方米 建筑面積:310平方米 結構形式:磚混 別墅設計精致,花紋大氣美觀,圓型石柱增添尊貴氣質,配色明亮,充滿陽光和活力,帶個人飽滿的精氣神。
一樓沒有設計臥室,入戶便是接待室,加上三面采光的寬敞客廳,廚房設計有后門,方便處理生活中產生的雜物,樓梯為Z型樓梯,將下部設置為儲藏室,充分利用空間并且方便存放,休息廳可以提供娛樂,與親朋好友在此可以聊天交談,無聊還可以從側門到花園散步,休閑舒適,依然自得。
設計為休憩區,二三樓共設計有五間臥室,滿足一家人的生活需求,陽臺不大但是風景很好,清晨時從臥室起來遠眺初升的太陽,帶給你一天好心情。 戶型二
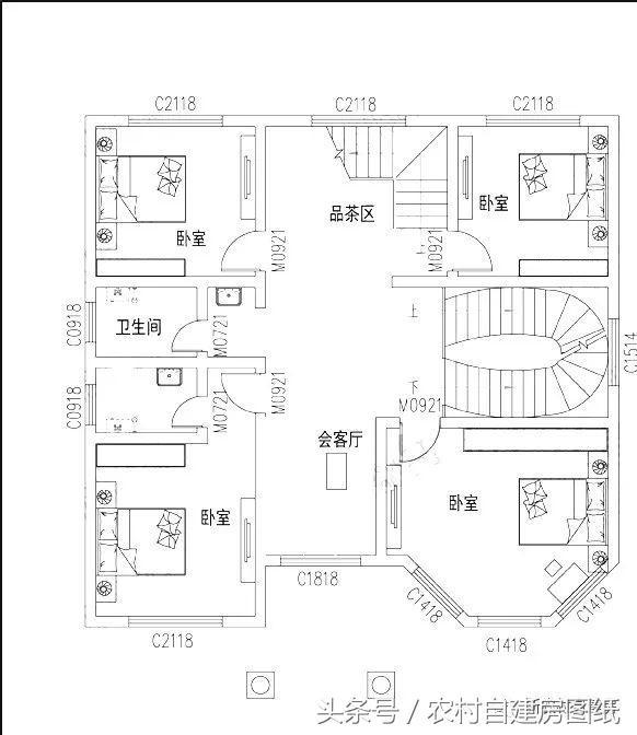
開間:11.7米 進深:11.2米 占地面積:140.44平方米 建筑面積:402.88平方米 結構形式:框架 藍色屋頂,充滿夢幻的色彩,始終保持清澈、浪漫的感覺,加上整體淡色的基調,淳樸整潔,花瓶護欄以及羅馬圓柱,相得益彰,陽臺封頂設計,突顯美觀和大氣。
錯層式設計,加上三面采光,給人視野開闊之感,空間安排縝密,動線合理,安排有老人房,體現了尊老愛幼的中華傳統美德,體現了兒女的孝敬,旋轉樓梯設計,高端奢華。
設計有會客廳和品茶區,和人商榷重要事務時,可以在此交談,又設計有四間臥室。
帶有娛樂室,可以在閑暇時間與朋友玩樂,露臺封頂設計,可以在這和家人促膝暢談,或者和摯友飲酒作樂,生活美好而又充實。 戶型三
開間:12.8米 進深:13.2米 占地面積:173.81平方米 建筑面積:496.04平方米 結構形式:框架 別墅整體給人一種滿滿的英格蘭風情,藍色屋頂紅木以及原石,無不表現出對大自然的美的向往。
擁有傳統堂屋設計,并配有老人房,方便老人生活起居,客廳為復式挑空設計,視野開闊并且配上典雅的旋轉樓梯設計,高端大氣。
除了三間臥室,還帶有一間書房,閑暇時看看書,熏陶下自己,擴展下自己的知識面,何樂不為。
對于二樓的擴展,帶有娛樂室和露臺,房屋分布和二樓很相似,減低了施工難度。 圖紙之家-專注農村別墅/自建房設計18年,集合國內200余位經驗豐富的設計師,被評為口碑最好的農村建筑設計公司! |

復式別墅農村四層霸氣豪宅設計圖紙,建好你就是村里第一
占地:136.356平方米
小占地二層徽派別墅設計圖,白墻黛瓦韻味十足,太氣派了
占地:89.6平方米
樓中樓客廳挑高二層別墅設計圖,復式別墅方案推薦
占地:122平方米
歐式三層樓中樓別墅設計圖紙帶車庫(含外觀效果圖)
占地:130平方米
80-90平米自建樓房設計圖,農村小別墅經典戶型圖
占地:86平方米
超好看的現代簡約別墅設計圖,占地100平米,城里一套房都不換
占地:102.21平方米
160平米三層別墅設計圖,功能齊全,外觀漂亮,適合和父母同住
占地:160平方米
高端三層獨棟歐式別墅效果圖,帶大衛生間,CAD全套施工設計圖
占地:158平方米
獨棟兩層四開間房子施工設計圖紙及效果圖片,大氣時尚
占地:170平方米
新中式農村兄弟合建三層雙拼別墅全套設計圖紙,3款戶型方案
占地:多種戶型
最美中式合院別墅圖,這才是中國農村該建的房子,如此精美絕倫
占地:380平方米
簡單實用二層自建房子設計圖,主體造價僅17萬
占地:106.387平方米
110平方米新農村二層別墅設計圖及效果圖,12.36x9.36米
占地:115平方米
實用型二層別墅設計圖,簡單大方最耐看,16.5米乘11米
占地:150.94平方米
簡單的二層樓房圖片及設計方案,自建樓房必看
占地:140平方米
單棟多戶三層別墅設計圖,適合兩三家一起住
占地:125平米
平頂三層別墅設計方案,簡潔舒適大氣通透,12乘9米,打造理想住
占地:98.21平方米
300平大戶型豪華三層別墅設計圖,帶總統套房
占地:300平方米
150平農村三層歐式別墅設計圖紙,盡顯豪華與精致,讓人羨慕不已
占地:147.62平方米
現代簡約時尚二層帶超大露臺農村別墅戶型,既可以休閑又可晾曬
占地:100.06平方米
推薦:10套新農村自建房設計圖,2026年最新設計
閱讀次數:4825737次
100套鄉村別墅圖片大全,2026年最新設計
閱讀次數:2492203次
6款農村蓋一層平房的設計圖,10萬元就能建起來
閱讀次數:1852637次
這11個一層農村自建房別墅火爆了朋友圈!我最喜歡戶型十!你呢
閱讀次數:750268次
農村6萬元建一層小別墅圖,你敢相信嗎
閱讀次數:567686次
農村5萬塊就能自建房,6套普通房子設計圖分享,你沒看錯!
閱讀次數:419410次
8套農村漂亮三間平房圖片,非常適合在農村修建!
閱讀次數:411197次
農村自建房化糞池怎么做?附方案及施工過程
閱讀次數:391783次
農村一層三間平房設計圖,告別土氣養老房,讓人忍不住點贊
閱讀次數:350581次
新農村二層樓房圖片造價12萬,挑一套回家建房吧!
閱讀次數:349126次
