
|
導語:現在很多農村建房的地都很小,想要建一個大洋房,自然會應為面積受到限制。既然無法將占地面積擴大,那么就可以將高度提高。下面來介紹幾款占地面積不足85平米的大洋房吧。 戶型一
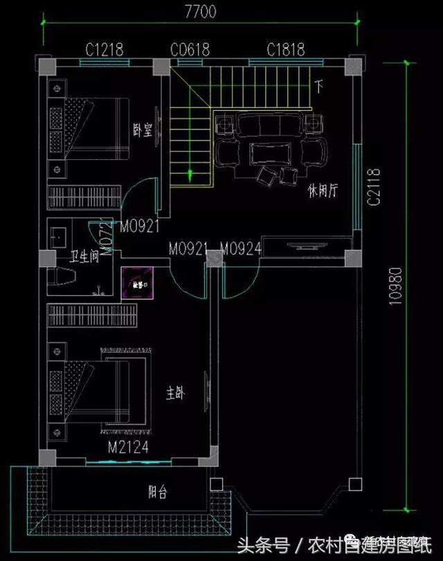
開間:7.54米 進深:11.74米 結構形式:磚混結構 占地面積:84.28平方米 建筑面積:322.30平方米 主體造價:26萬
方柱設計,外墻則由外墻磚和真石漆組成,白色的花瓶柱扶手欄桿加上窗檐上的鏤空金色花紋,高雅尊貴,獨特的整體造型設計,標新立異,特別但不特殊,二樓設為娛樂活動區,提供了閑暇時間小憩的場所,每個樓層的衛生間設計在同一地方,利于建造,也能更加便捷。 戶型二
開間:10.94米 進深:7.6米 結構形式:框架結構 占地面積:82.19平方米 建筑面積:239.52平方米 主體造價:28萬
戶型描述:八面式大窗設計加上瓷磚外墻設計,八面式大窗和羅馬石柱連接到二樓,又利用羅馬石柱設計了一個二樓陽臺,占地小卻充分的利用所有空間,屋內將樓梯下的區域設計成儲藏室,保留了客廳的寬敞舒適,也將房屋內動靜分離。 戶型三
開間:6.76米 進深:11.76米 結構形式:磚混結構 占地面積:81.07平方米 建筑面積:225.14平方米 主體造價:18萬
戶型描述:和上個戶型類似,擁有八面式大窗以及利用羅馬石柱搭建的陽臺,但與之不同的是這套設計將動線合理,并且在內部采用了錯層設計,增大了空間利用,并設計有老人房,方便老人生活起居,多個臥室也方便接待親朋好友,樓頂有較大的陽臺,利用其曬衣物或農物都是不錯的選擇。 戶型四
開間:9.80米 進深:9.20米 結構形式:框架結構 占地面積:85.04平方米 建筑面積:291.92平方米 主體造價:33萬
戶型描述:與上面幾種戶型不同,這套設計屬于現代風格,而現代風格建筑本就講究空間的利用,利用有限的空間,給人展現出寬敞開闊的感覺,首先,這套設計采用了玻璃扶手欄桿,美觀但卻簡約,框架外墻則以文化石鋪墊,有合理的動線布局,并且充分利用了現代建筑采光好的特點,增加房屋舒適度。 圖紙之家-專注農村別墅/自建房設計18年,集合國內200余位經驗豐富的設計師,被評為口碑最好的農村建筑設計公司! |

100來平復式旋轉樓梯二層簡歐別墅設計圖,戶型實用
占地:101.523平方米
新農村自建二層小樓圖,時尚大方,外型精美,室內布局也很贊
占地:137平方米
農村二間二層小別墅設計方案,精而美的經典樣式不容錯過
占地:115.32平方米
130多平方米新農村三層別墅建筑設計圖及效果圖
占地:133平方米左右
帶地下車庫的三層別墅設計圖,160平復式戶型
占地:159.03平方米
帶堂屋設計一層三合院設計圖,白墻黛瓦古韻悠悠,比高層舒服接
占地:179.37平方米
農村2開間三層經濟別墅設計圖,9.6米面寬,實用布局
占地:127.68平方米
南方新農村三層房屋設計圖大全,預算30萬內
占地:145平方米
200平方米農村二層中式四合院設計圖,含外觀圖片
占地:200平方米
新中式農村50萬三層別墅款式圖,占地面積160平米左右
占地:150平方米
美觀大氣二層歐式別墅設計圖,外觀效果圖高端上檔次
占地:189.8平方米
農村四層樓房設計圖,占地120平方米,歐式風格,高端大氣
占地:120平方米
最接農村地氣的二層農村小別墅,造價30萬左右,經濟實用
占地:170平方米
私人別墅房屋cad施工設計圖,造型精致、美觀
占地:105平方米
四層簡單新農村房屋設計圖紙,造價低,適合農村自建
占地:多種戶型
帶大套間新農村二層別墅自建房設計圖紙帶效果圖
占地:185平方米
客廳中空復式二層別墅設計圖,歐式風格外觀
占地:180平方米
最耐看的二層別墅設計圖,15米寬12米深,方正大氣經濟美觀!
占地:180平方米
新款漂亮農村三層別墅建筑設計圖紙帶效果圖片,3種戶型
占地:125平方米
最新小別墅設計圖,復式三層,外觀非常漂亮
占地:158平方米
推薦:10套新農村自建房設計圖,2026年最新設計
閱讀次數:4825737次
100套鄉村別墅圖片大全,2026年最新設計
閱讀次數:2492203次
6款農村蓋一層平房的設計圖,10萬元就能建起來
閱讀次數:1852637次
這11個一層農村自建房別墅火爆了朋友圈!我最喜歡戶型十!你呢
閱讀次數:750268次
農村6萬元建一層小別墅圖,你敢相信嗎
閱讀次數:567686次
農村5萬塊就能自建房,6套普通房子設計圖分享,你沒看錯!
閱讀次數:419410次
8套農村漂亮三間平房圖片,非常適合在農村修建!
閱讀次數:411197次
農村自建房化糞池怎么做?附方案及施工過程
閱讀次數:391783次
農村一層三間平房設計圖,告別土氣養老房,讓人忍不住點贊
閱讀次數:350581次
新農村二層樓房圖片造價12萬,挑一套回家建房吧!
閱讀次數:349126次
