
|
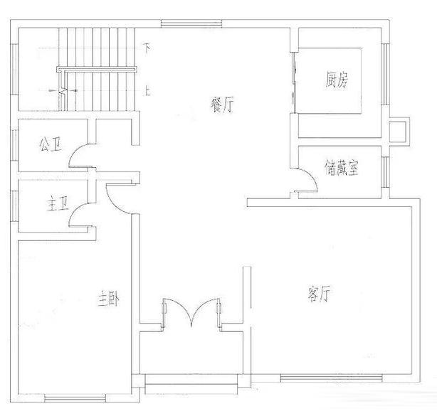
生活在這快節奏的社會里,我們往往會希望自己活得體面,住得房子舒適大氣,但壓力大的時候又想回歸自然,過上休閑的鄉村生活,歐式田園風格的建筑或許能滿足人們的這種需求,歐式田園建筑既擁有歐式的奢華大氣,又擁有淳樸的自然風情,今天小編帶來一款11×11米歐式田園風格二層別墅設計圖,一起來欣賞。 這款二層別墅設計圖開間進深11.6米×10.8米,采用磚混結構,首層占地面積123.83㎡,總建筑面積245.81㎡,主體造價25萬左右,一層設有3廳1臥2衛1儲藏室1廚,二層設有3臥2衛1廳1露臺。
典雅自然的外觀設計,純純的淡黃色暖入人心,紅色屋頂吸引人的目光,還有高出屋頂的柱形設計,歐式風格中夾帶淳樸的田園風,清爽別致。一層客廳中空設計,提高室內格局檔次,主臥室均帶有獨立衛生間,既方便又舒適。 建筑平面圖展示
一層:門廳、挑空客廳、主臥(帶主衛)、廚房、餐廳、儲藏室、公衛 入戶門廳,慣有的房屋設計,農村白天大門敞開,避免室外直視室內,保護室內隱私。 玄關右邊是客廳,客廳處利用超大玻璃窗戶增加采光,挑高樓板設計讓室內更明亮寬敞。 主臥室設在南面,擁有獨立的衛生間。 儲藏室設在廚房旁邊,作為收納雜物使用。
二層:起居室、主臥(帶主衛、露臺)、臥室(帶衛生間)、臥室、公衛 二樓共設有3間臥室,主臥室布局在南面,帶有主衛和露臺,露臺延伸臥室空間,同時為主人提供休閑場所。 2間次臥中,有一間也帶有衛生間,方便家人。 圖紙之家-專注農村別墅/自建房設計18年,集合國內200余位經驗豐富的設計師,被評為口碑最好的農村建筑設計公司! |

二層樓房圖片及施工圖紙,占地160平米左右,帶車庫
占地:160平方米
新中式三層別墅設計圖紙(含效果圖),110平農村自建房施工圖推
占地:110平方米
造價33萬左右超漂亮的三層別墅圖紙設計圖,旋轉樓梯戶型設計
占地:121.59平方米
帶商鋪挑高的三層別墅房屋設計圖,商鋪挑高,層高比較高
占地:118平方米
帶地下室+挑空客廳,農村三層洋樓別墅誰家圖在
占地:97.74平方米
2026農村漂亮的一層平房圖片平面圖與全套施工圖紙,戶型周正
占地:150平方米
復式挑空二層別墅設計圖,占地175平米,建好住著很舒適
占地:175.44平方米
帶配房的二層農村小別墅設計圖,大方適用,耐看經濟
占地:152.28平方米
農村20萬元二層小樓房設計圖,經典新農村自建房戶型
占地:120平方米
開間9到10米簡約別墅設計圖紙帶效果圖,全套別墅設計方案
占地:122平方米
105平一層簡單農村別墅設計圖,造價8萬左右
占地:105平方米
帶地下室三層復式別墅設計方案,全套設計圖+效果圖
占地:168平方米
新農村三層房屋設計圖紙(含效果圖),農村小別墅圖紙推薦
占地:116.15平方米
簡約現代的二層別墅自建房設計圖,13米乘9米
占地:124平方米
堂屋共用的三層雙拼別墅設計圖,總占地面積245平米
占地:245平方米
農村18萬元二層小樓圖紙,漂亮實用的農村二層樓房設計圖
占地:140平方米
農村蓋房設計大全一層房子的設計圖紙,色調清新靚麗
占地:220平方米
農村7字形漂亮房子設計圖及外觀效果圖
占地:189.3平方米
新農村兄弟合建三層雙拼房屋設計方案圖,開間18米有全套圖紙
占地:237.21平方米
現代簡約時尚二層帶超大露臺農村別墅戶型,既可以休閑又可晾曬
占地:100.06平方米
推薦:10套新農村自建房設計圖,2026年最新設計
閱讀次數:4825737次
100套鄉村別墅圖片大全,2026年最新設計
閱讀次數:2492203次
6款農村蓋一層平房的設計圖,10萬元就能建起來
閱讀次數:1852637次
這11個一層農村自建房別墅火爆了朋友圈!我最喜歡戶型十!你呢
閱讀次數:750268次
農村6萬元建一層小別墅圖,你敢相信嗎
閱讀次數:567686次
農村5萬塊就能自建房,6套普通房子設計圖分享,你沒看錯!
閱讀次數:419410次
8套農村漂亮三間平房圖片,非常適合在農村修建!
閱讀次數:411197次
農村自建房化糞池怎么做?附方案及施工過程
閱讀次數:391783次
農村一層三間平房設計圖,告別土氣養老房,讓人忍不住點贊
閱讀次數:350581次
新農村二層樓房圖片造價12萬,挑一套回家建房吧!
閱讀次數:349126次
