
|
拿出20萬,你在城市買房付首付連一個指頭都不夠,我卻可以在農村自建一棟別墅,這就是選擇的差距!用20萬在農村蓋的不僅僅是一棟別墅而已,別墅好看惹眾人羨慕,家人也有面子,房子舒適,家人住的舒心,農村發展越來越好,只要你抓住了機會,說不定就成為了全村第一富!
這款三層別墅,建筑外觀為莊重大氣的法式格調墅,精致的線條,恰當的比例,考究的外墻干掛大理石,無不體現著,這棟別墅的品質感,多窗戶和大落地窗設計,大氣時尚,體現主人的品味和時尚感。 占地尺寸:11.3X9.9米 占地面積:111.87平方米 建筑面積:263平方 結構:磚混結構
別墅側面透視圖
一層平面圖,門廊,老人臥室,門廳,會客廳,餐廳,廚房,洗衣房,門廊作為入室緩沖,老人臥室通風采光好,進出方便,客廳挑空,富有氣勢,門廳和客廳相連,擴大了活動空間。
二層平面圖,三室一廳,小廳,露臺,居住休閑于一體,大氣舒適。
三層平面圖,三室一廳,兩臥室,一茶室,大露臺,空間分布合理,茶室和露臺用于休閑和陶冶情操,讓生活更有趣味。 下面這款別墅也是三層,好看的很,不得不推薦給你們!
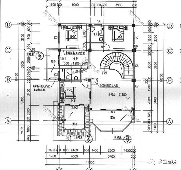
別墅效果圖 外觀造型高低錯落,天藍色波型瓦別致大方,色彩明快,采光通風良好,房間尺度設計適宜,空間利用率高。 結 構:框架結構 占地尺寸:13.3×14.6米 占地面積:182平方米 建筑面積:366.4平方米 建筑高度:11.1米
一層設有入口玄關、客廳、臥室、衛生間、車庫、餐廳、廚房
二層設有三個臥室、2個衛生間、大陽臺、書房、客廳都是懸空的
三層設有3個臥室、2個衛生間、書房、活動廳、2個大露臺 這樣的別墅建成了一定羨煞旁人! 每日分享
![]() 圖紙之家-專注農村別墅/自建房設計18年,集合國內200余位經驗豐富的設計師,被評為口碑最好的農村建筑設計公司! |

農村自建三間三層樓房設計圖,帶露臺,經典實用
占地:135平方米
自建三層小洋樓設計圖紙,含效果圖,帶車庫
占地:121平方米
大戶型美觀一層平房自建房設計圖,面寬19米左右
占地:245.1平方米
回農村建養老房,還是一層平頂戶型最合適,不單單只是省錢
占地:102.24平方米
110平方米二層自建小別墅設計CAD施工圖紙帶效果圖,12x13米
占地:110平方米
造型新穎漂亮的農村二層現代風別墅設計圖,老少皆宜的外觀
占地:144.54平方米
經典中式三合院設計,一層空間實用大氣,輕松實現理想家園!
占地:160.53平方米
150平方米的新農村自建三層小別墅設計施工圖紙及效果圖
占地:150平方米
二層帶架空層的農村別墅設計圖,功能齊全,超越十里八村
占地:130平方米
140平方米農村三層復式房屋設計施工圖,開放式廚房
占地:143平方米
高端農村三層歐式房屋設計圖紙,帶車庫,帶露臺
占地:163平方米
140平方米三層半新農村房屋別墅設計圖,帶車庫
占地:140平方米
二層農村房屋設計圖紙,帶效果圖和全套施工方案圖
占地:多種戶型
10×12米三層別墅戶型,挑空大客廳設計,圈粉無數的爆款方案
占地:120平方米
單棟多戶三層別墅設計圖,適合兩三家一起住
占地:125平米
130平方米新農村三層房屋設計圖紙,外觀簡單大方
占地:130平方米
農村一層中式三合院別墅設計圖紙,外觀漂亮極了
占地:195平方米
二層現代風格雙拼別墅設計圖,平屋頂,帶地下室設計
占地:192.47平方米
兩層半樓房設計圖及效果圖,農村二層房屋設計圖推薦
占地:135平方米
經典一層帶閣樓三合院別墅設計圖,18米乘9.5米
占地:118.63平方米
推薦:10套新農村自建房設計圖,2026年最新設計
閱讀次數:4825737次
100套鄉村別墅圖片大全,2026年最新設計
閱讀次數:2492203次
6款農村蓋一層平房的設計圖,10萬元就能建起來
閱讀次數:1852637次
這11個一層農村自建房別墅火爆了朋友圈!我最喜歡戶型十!你呢
閱讀次數:750268次
農村6萬元建一層小別墅圖,你敢相信嗎
閱讀次數:567686次
農村5萬塊就能自建房,6套普通房子設計圖分享,你沒看錯!
閱讀次數:419410次
8套農村漂亮三間平房圖片,非常適合在農村修建!
閱讀次數:411197次
農村自建房化糞池怎么做?附方案及施工過程
閱讀次數:391783次
農村一層三間平房設計圖,告別土氣養老房,讓人忍不住點贊
閱讀次數:350581次
新農村二層樓房圖片造價12萬,挑一套回家建房吧!
閱讀次數:349126次
